Bénéficiez des services de nos partenaires locaux soigneusement sélectionnés
pour vous accompagner dans votre parcours d'achat immobilier

Villeurbanne à deux pas de montchat - magnifique t3 avec 2 balcons dans résidence récente

— Lyon-3e 69003 —
275 000 €
62 m²
3 pièces
parkingbalcon/terrasseascenseur

Nos partenaires locaux
Nouvelle EXCLUSIVITÉ Victoire Immobilier
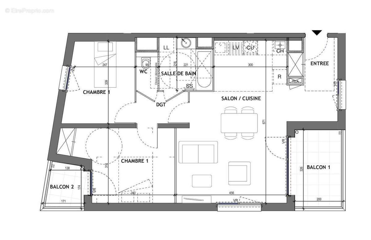
Villeurbanne – Aux portes du très prisé quartier de Montchat, à 3 min de la Place Ronde!

Dans une petite rue vraiment calme, à quelques pas seulement des Tram T3/T6 et de tous les commerces, venez découvrir un véritable bijou, rare sur le secteur : un superbe T3 niché dans une résidence de standing, avec ascenseur, très récente (2020) et parfaitement entretenue.

Les atouts de ce T3 sont légions:
- Une triple exposition (SUD, OUEST et EST),
- Une lumière naturelle à profusion,
- Deux balcons, dont un sur jardin,
- Un cadre et une ambiance inspirant le calme et la détente.

La pièce de vie est un vrai coup de cœur : un séjour chaleureux (de près de 27m²) ouvert sur une cuisine US entièrement équipée, baigné de soleil grâce à son orientation Sud et Est, et prolongé par un grand balcon (de près de 8m²), donnant sur jardin, idéal pour profiter des beaux jours.

Le coin nuit, parfaitement séparé, propose deux chambres (dont une de 12m² avec balcon privatif), une salle de bain moderne et de belle taille (près de 5m²) ainsi que des WC séparés.

Côté "prestations", rien ne manque: local à vélo accessible directement depuis la rue, fibre et prises RJ45, visiophone, climatisation Toshiba dans le séjour, moustiquaires, porte d'entrée renforcée 5 points avec système antidégondage, alarme, double sas d'entrée avec code et badge Vigik, faience tout hauteur dans la salle de bains, cuisine CUISINELLA, volets électriques, huisseries double vitrage (...) le tout dans un immeuble qui bénéficie encore de 5 ans de garantie décénale et dans lequel vous pouvez acquérir, en sus, un grand garage de 19 m² au prix de 24 000 €.

Un bien rare, lumineux, avec 2 extérieurs, récent et très bien situé… Ne laissez pas passer cette opportunité !

Contactez-nous vite au [Coordonnées masquées] car les premiers à le faire seront les premiers à visiter.
Référence agence : 2987
Voir plus

Référence: 8U0K-97N-M93
Bien en copropriété. Nombre de lots : 79. Charges de copropriété : 279 €.
Honoraires à la charge du vendeur.
DPE
A
B
C
D
E
F
G
GES
A
B
C
D
E
F
G

Prêt immobilier

Vous souhaitez connaître votre capacité d’emprunt et trouver le meilleur crédit immobilier ?
Réaliser une simulation gratuite

Appartement à LYON-3E
Appartement à LYON-3E
Appartement à LYON-3E
Appartement à LYON-3E
Appartement à LYON-3E
Appartement à LYON-3E
Appartement à LYON-3E
Appartement à LYON-3E
Appartement à LYON-3E
Appartement à LYON-3E
Appartement à LYON-3E
Appartement à LYON-3E
Ce site est protégé par reCAPTCHA la Politique de confidentialité et les Conditions d’utilisation de Google s’appliquent.
Obtenir un prêt immobilier au meilleur taux ?

En poursuivant votre navigation sans modifier vos paramètres, vous acceptez l'utilisation de cookies susceptibles de réaliser des statistiques de visite. Cliquez ici pour plus d'informations