Bénéficiez des services de nos partenaires locaux soigneusement sélectionnés
pour vous accompagner dans votre parcours d'achat immobilier

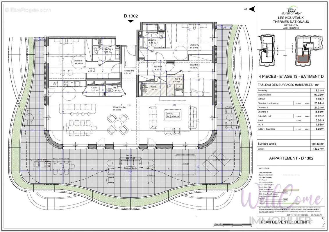
Appartement t4 de 196m² en attique - résidence 'les nouveaux thermes'

— Annecy 74000 —
2 699 000 €
196 m²
4 pièces
parkingbalcon/terrasseascenseur

Nos partenaires locaux
Sur la commune d'Aix-les-Bains à seulement 30 minutes d'Annecy, au cur de la prestigieuse résidence « Les Nouveaux Thermes », découvrez cet appartement 4 pièces dexception de 196,69 m² situé en attique au 13ème étage du bâtiment D et bénéficiant dune triple exposition est-OUEST-sud. Cet appartement rare séduit par une distribution intérieure remarquable : un séjour cuisine de 97,32 m² baignée de lumière grâce à de larges baies vitrées ouvrant sur un extérieur plein ciel à lOuest. Le balcon filant de 139,37 m², véritable espace de vie supplémentaire avec des vues dégagées sur les massifs environnants et lac. Lespace nuit se compose de 3 chambres (dont une suite parentale avec dressing/salle de bains et wc, une suite parentale avec salle deau et wc, une suite parentale avec salle deau). Une buanderie, un cellier, un WC indépendant supplémentaire et de nombreux rangements complètent cet ensemble. Vendu avec un garage au sous-sol sécurisé. Ce bien dexception sintègre dans une résidence aux prestations haut de gamme et à la conception environnementale exemplaire : façades végétalisées, toitures vertes, récupération des eaux pluviales, géothermie par plancher chauffant/rafraîchissant Un appartement unique alliant volumes spectaculaires, extérieur remarquable et équipements premium au sein dune résidence davant-garde. Contactez votre agence WellCome Immobilier pour découvrir et réserver cet appartement exclusif parmi les premiers lots disponibles ! Frais de notaire réduits Programme certifié RE2020 seuil 2022 & NF Habitat HQE Livraison prévue : 1er trimestre 2029
Voir plus

Référence: 73028791
Barème des honoraires

Prêt immobilier

Vous souhaitez connaître votre capacité d’emprunt et trouver le meilleur crédit immobilier ?
Réaliser une simulation gratuite

Appartement à ANNECY
Appartement à ANNECY
Appartement à ANNECY
Appartement à ANNECY
Appartement à ANNECY
Appartement à ANNECY
Appartement à ANNECY
Appartement à ANNECY
Ce site est protégé par reCAPTCHA la Politique de confidentialité et les Conditions d’utilisation de Google s’appliquent.
Obtenir un prêt immobilier au meilleur taux ?

En poursuivant votre navigation sans modifier vos paramètres, vous acceptez l'utilisation de cookies susceptibles de réaliser des statistiques de visite. Cliquez ici pour plus d'informations