Bénéficiez des services de nos partenaires locaux soigneusement sélectionnés
pour vous accompagner dans votre parcours d'achat immobilier

Lumineux et climatisé

— Asnieres-Sur-Seine 92600 —
1 751 000 €
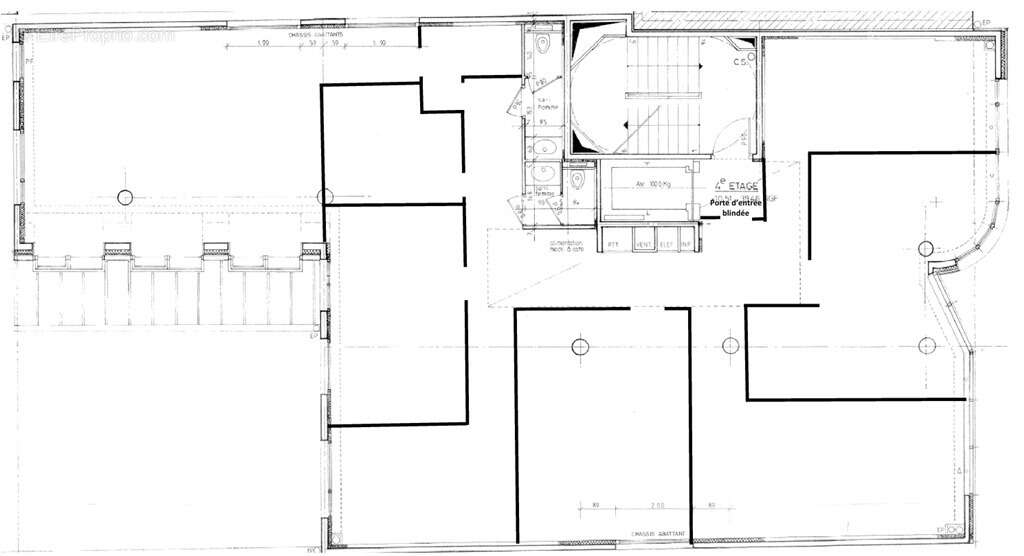
483 m²

Nos partenaires locaux
M° Gabriel Péri, dans un immeuble moderne,  Consult'im vous propose en exclusivité, à vendre au 3 ème étage et 4ème étage  une surface de bureaux de 483m²  divisibles

  

CARACTERISTIQUES DE L'OFFRE 

Bureaux actuellement cloisonnés 

Climatisation réversible

Salle de réunion

Sanitaires H/F

Espace cuisine

Immeuble très sécurisé

Salle serveur

6 Parking en sous sol

Local vélo

LIEN : DETAIL DE L OFFRE ICI 

CONDITIONS FINANCIERES 

Prix net vendeur : 1 751 000 € HD 

Parking : 10 500 € /U soit 63 000  € HD 

Honoraires : 5% HT du prix net vendeur HD 
Voir plus

Référence: 10317212

Prêt immobilier

Vous souhaitez connaître votre capacité d’emprunt et trouver le meilleur crédit immobilier ?
Réaliser une simulation gratuite

Commerce à ASNIERES-SUR-SEINE
Commerce à ASNIERES-SUR-SEINE
Commerce à ASNIERES-SUR-SEINE
Commerce à ASNIERES-SUR-SEINE
Commerce à ASNIERES-SUR-SEINE
Commerce à ASNIERES-SUR-SEINE
Commerce à ASNIERES-SUR-SEINE
Commerce à ASNIERES-SUR-SEINE
Commerce à ASNIERES-SUR-SEINE
Ce site est protégé par reCAPTCHA la Politique de confidentialité et les Conditions d’utilisation de Google s’appliquent.
Obtenir un prêt immobilier au meilleur taux ?

En poursuivant votre navigation sans modifier vos paramètres, vous acceptez l'utilisation de cookies susceptibles de réaliser des statistiques de visite. Cliquez ici pour plus d'informations