Bénéficiez des services de nos partenaires locaux soigneusement sélectionnés
pour vous accompagner dans votre parcours d'achat immobilier

Lumineux et climatisé

— Asnieres-Sur-Seine 92600 —
843 500 €
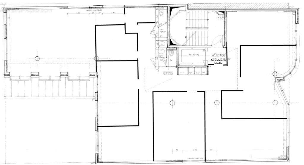
241 m²

Nos partenaires locaux
Métro Gabriel Péri, dans un immeuble moderne,  Belle Opportunité, Consult'im vous propose, à vendre au 4ème étage  une surface de bureaux de 241m² 

  

CARACTERISTIQUES DE L'OFFRE 

Bureaux actuellement cloisonnés 

Facilité d'aménagement, entièrement décloisonable 

Climatisation réversible

Sanitaires H/F

Immeuble très sécurisé

Salle serveur

Parking en sous sol (3)

1 cave

Local vélo

CONDITIONS FINANCIERES 

Prix net vendeur :  843 500 € HD 

Parking : 10 500€ /U soit 31 500 € HD

Honoraire : 5% HT du prix net vendeur HD 
Voir plus

Référence: 10317019

Prêt immobilier

Vous souhaitez connaître votre capacité d’emprunt et trouver le meilleur crédit immobilier ?
Réaliser une simulation gratuite

Commerce à ASNIERES-SUR-SEINE
Commerce à ASNIERES-SUR-SEINE
Commerce à ASNIERES-SUR-SEINE
Commerce à ASNIERES-SUR-SEINE
Commerce à ASNIERES-SUR-SEINE
Commerce à ASNIERES-SUR-SEINE
Commerce à ASNIERES-SUR-SEINE
Commerce à ASNIERES-SUR-SEINE
Commerce à ASNIERES-SUR-SEINE
Ce site est protégé par reCAPTCHA la Politique de confidentialité et les Conditions d’utilisation de Google s’appliquent.
Obtenir un prêt immobilier au meilleur taux ?

En poursuivant votre navigation sans modifier vos paramètres, vous acceptez l'utilisation de cookies susceptibles de réaliser des statistiques de visite. Cliquez ici pour plus d'informations