Bénéficiez des services de nos partenaires locaux soigneusement sélectionnés
pour vous accompagner dans votre parcours d'achat immobilier

Récent t3 de 57 m2 avec grande terrasse de 19 m2 et garage

— Givors 69700 —
175 000 €
57 m²
3 pièces
parkingbalcon/terrasse

Nos partenaires locaux
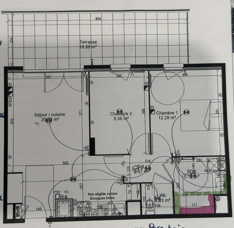
L’agence Espaces et Lieux a le plaisir de vous présenter ce très bel et récent appartement de plus de 57 m2 avec sa grande terrasse de 19 m2 situé, côté et vue sur jardin, dans une résidence sécurisée de 2023.
Idéalement placé à proximité des commerces, écoles et toutes commodités, ce bien offre un cadre de vie confortable, moderne et fonctionnel, parfait pour une résidence principale ou un investissement.
L'appartement se compose d’une cuisine aménagée ouverte sur un spacieux et lumineux salon de 26 m2, de deux grandes chambres (10 m2 et 12 m2), d’une grande salle de bains et d’une terrasse orientée Ouest de 19 m2 sans vis-à-vis.
Un garage complète ce bien.
L'appartement bénéficie d'un jardin partagé ainsi que des garanties décennales.
Les informations sur les risques auxquels ce bien est exposé sont disponibles sur le site Géorisques : www.georisques.gouv.fr Nous sommes là pour vous ! Le stress associé à la recherche ou à la vente de votre logement est grandement diminué car nous gérons votre projet à 100 [percent] et mettons à votre service notre connaissance de l’immobilier. Espaces et Lieux est là pour faire de cette aventure une expérience résolument réussie et inoubliable, en mettant tout en œuvre pour votre confort, avec de nombreux services, comme une conciergerie, la visite virtuel à 360o en vidéo conférence, un interlocuteur unique, découvrez tous nos services sur www.espacesetlieux.fr
Voir plus

Référence: 230
Bien en copropriété. Nombre de lots : 91.
Barème des honoraires
DPE
A
B
C
D
E
F
G
GES
A
B
C
D
E
F
G

Prêt immobilier

Vous souhaitez connaître votre capacité d’emprunt et trouver le meilleur crédit immobilier ?
Réaliser une simulation gratuite

Appartement à GIVORS
Appartement à GIVORS
Appartement à GIVORS
Appartement à GIVORS
Appartement à GIVORS
Appartement à GIVORS
Appartement à GIVORS
Appartement à GIVORS
Appartement à GIVORS
Appartement à GIVORS
Appartement à GIVORS
Appartement à GIVORS
Appartement à GIVORS
Appartement à GIVORS
Appartement à GIVORS
Ce site est protégé par reCAPTCHA la Politique de confidentialité et les Conditions d’utilisation de Google s’appliquent.
Obtenir un prêt immobilier au meilleur taux ?

En poursuivant votre navigation sans modifier vos paramètres, vous acceptez l'utilisation de cookies susceptibles de réaliser des statistiques de visite. Cliquez ici pour plus d'informations