Bénéficiez des services de nos partenaires locaux soigneusement sélectionnés
pour vous accompagner dans votre parcours d'achat immobilier

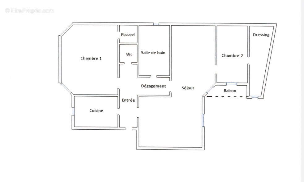
Appartement t3 carmes saint etienne - balcon

— Toulouse 31000 —
479 000 €
83 m²
3 pièces
balcon/terrasse

Nos partenaires locaux
TOULOUSE CARMES SAINT-ETIENNE EXCLUSIVITÉ

Situé en plein centre, tout en restant préservé de l’effervescence urbaine, ce quartier au charme feutré compte parmi les plus appréciés des Toulousains, avec ses placettes intimistes, ses ruelles pittoresques et ses hôtels particuliers d’exception.

Dans l’une des rues les plus prisées du secteur, découvrez ce T3 traversant, particulièrement calme et baigné de lumière.

La cuisine séparée, entièrement équipée, accompagne une vaste pièce de vie regroupant salon et salle à manger.

Deux chambres dont une dotée d’un dressing ainsi qu’une salle d’eau rénovée viennent parfaire l’ensemble.

Le balcon dinatoire offre, quant à lui, une vue dégagée sur les toits toulousains.

La copropriété bénéficie d’un entretien irréprochable.

surface Loi Carrez 82,52 m2 - surface au sol totale 86,67 m2

Les informations sur les risques auxquels ce bien est exposé sont disponibles sur le site Géorisques : www.georisques.gouv.fr
Voir plus

Référence: 2468
Bien en copropriété. Nombre de lots : 94. Charges de copropriété : 1260 €.
Honoraires d'agence de 4.49% à la charge de l'acquéreur
DPE
A
B
C
D
E
F
G
GES
A
B
C
D
E
F
G

Prêt immobilier

Vous souhaitez connaître votre capacité d’emprunt et trouver le meilleur crédit immobilier ?
Réaliser une simulation gratuite

Appartement à TOULOUSE
Appartement à TOULOUSE
Appartement à TOULOUSE
Appartement à TOULOUSE
Appartement à TOULOUSE
Appartement à TOULOUSE
Appartement à TOULOUSE
Appartement à TOULOUSE
Appartement à TOULOUSE
Appartement à TOULOUSE
Appartement à TOULOUSE
Ce site est protégé par reCAPTCHA la Politique de confidentialité et les Conditions d’utilisation de Google s’appliquent.
Obtenir un prêt immobilier au meilleur taux ?

En poursuivant votre navigation sans modifier vos paramètres, vous acceptez l'utilisation de cookies susceptibles de réaliser des statistiques de visite. Cliquez ici pour plus d'informations