À vendre - appartement 53 m² en plein centre-ville d'avranches

— Avranches 50300 —
144 500 €
53 m²
2 pièces
parkingascenseur

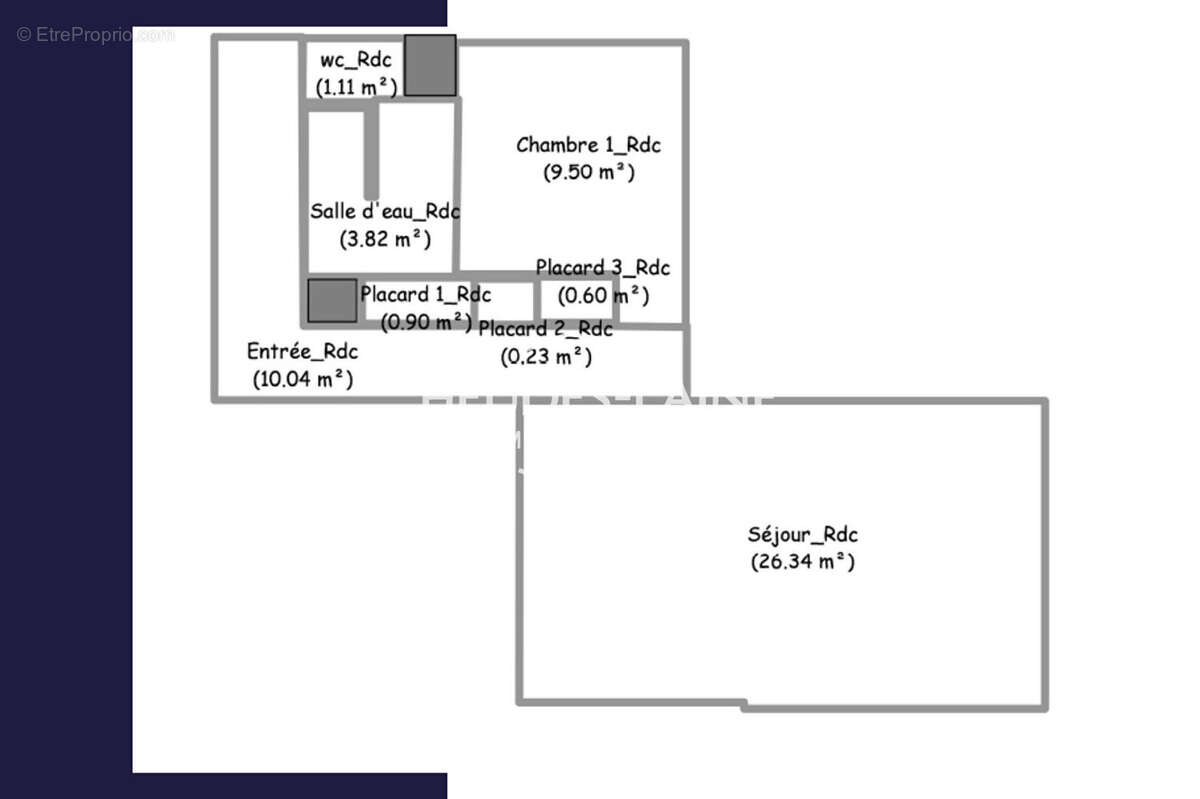
EXCLUSIVITÉ ! Situé en plein coeur d'Avranches, au rez-de-chaussée d'une résidence calme et entretenue, cet appartement de 52 m² offre un cadre de vie agréable grâce à ses beaux volumes et à son charme unique. Il se compose de : Un salon-séjour lumineux avec toit cathédrale et cuisine ouverte, Une chambre avec salle d'eau attenante, Un WC séparé, Un couloir avec placard intégré. Vous disposerez également d'une place de parking en sous-sol. Chauffage électrique individuel. Idéal en résidence principale, pied-à-terre ou investissement locatif. Commodités accessibles à pied : commerces, services, restaurants, marché, transports et centre-ville à 1 minute seulement. Libre de toute occupation en janvier 2026. Pour plus d'informations ou pour organiser une visite, contactez-nous dès maintenant ! Les informations sur les risques auxquels ce bien est exposé sont disponibles sur le site Géorisques : www.georisques.gouv.fr Copropriété de 59 lots - dont 17 lots habitation. (Pas de procédure en cours). Charges annuelles : 800 euros.
Voir plus

Référence: 7981
Bien en copropriété. Nombre de lots : 59. Charges de copropriété : 800 €.
Honoraires à la charge du vendeur.
Barème des honoraires
DPE
A
B
C
D
E
F
G
GES
A
B
C
D
E
F
G

Prêt immobilier

Vous souhaitez connaître votre capacité d’emprunt et trouver le meilleur crédit immobilier ?
Réaliser une simulation gratuite

Appartement à AVRANCHES
Appartement à AVRANCHES
Appartement à AVRANCHES
Appartement à AVRANCHES
Appartement à AVRANCHES
Appartement à AVRANCHES
Appartement à AVRANCHES
Appartement à AVRANCHES
Appartement à AVRANCHES
Appartement à AVRANCHES
Appartement à AVRANCHES
Appartement à AVRANCHES
Ce site est protégé par reCAPTCHA la Politique de confidentialité et les Conditions d’utilisation de Google s’appliquent.
Obtenir un prêt immobilier au meilleur taux ?

En poursuivant votre navigation sans modifier vos paramètres, vous acceptez l'utilisation de cookies susceptibles de réaliser des statistiques de visite. Cliquez ici pour plus d'informations