Bénéficiez des services de nos partenaires locaux soigneusement sélectionnés
pour vous accompagner dans votre parcours d'achat immobilier

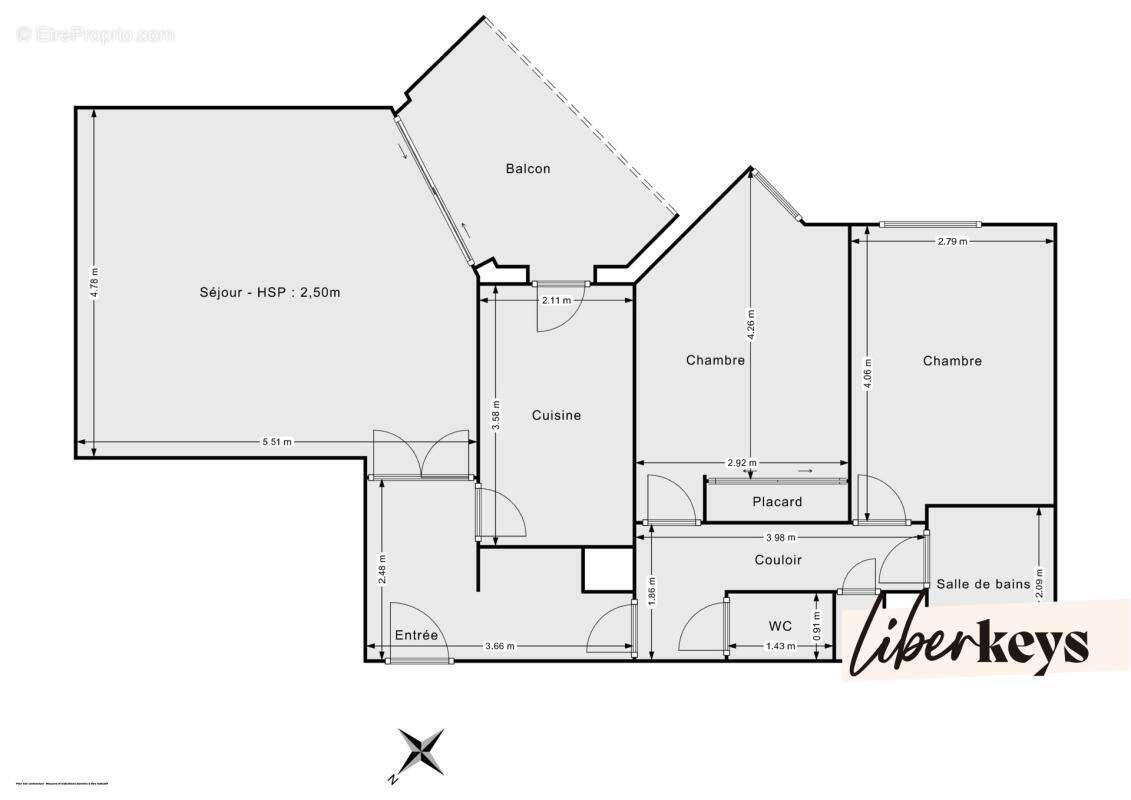
Appartement t3 de 71.65m² avec balcon - lyon 6 place de l’europe – face aux halles

— Lyon-6e 69006 —
405 000 €
71 m²
3 pièces
parkingbalcon/terrasseascenseur

Nos partenaires locaux
En exclusivité, Liberkeys vous propose ce charmant T3 de 71,65m² se trouvant au 3ème étage d'un immeuble entretenu avec ascenseur (construction 1989) dont les façades ont été refaites il y a 2 ans.
Ce bien est situé place de l'Europe, au cœur du très recherché 6ème arrondissement et face aux Halles de Lyon – Paul Bocuse.

L'appartement, libre de toute occupation, offre :

-Un séjour calme et très lumineux avec un sol en marbre
-Balcon côté espaces verts de la copropriété
-Deux chambres lumineuses,
-Une cuisine séparée
-Une salle de bain fonctionnelle (à rafraîchir)
-Un DPE classé C

Localisation :
-Un environnement calme et très bien desservi
-4 minutes à pied des Halles
-5 minutes à pied du centre commercial la Part-Dieu.
-7 minutes à pied des Brotteaux
-8 minutes à pied du métro B

Charges de copropriété : 130€ (eau froide, entretien des espaces verts et des parties communes, ascenseur)
Taxe foncière : 1 200 €

En option, un garage fermé en sous-sol de 18m² est proposé en sus du prix à 50 000€ (rare dans le secteur).

Ce bien vous plaît ? Contactez rapidement l'agent Asmik KASARIAN au zéro six 49 05 13 87 (numéro RSAC : 951404953) pour échanger sur ce bien. Liberkeys, votre agence immobilière en mieux. Humaine, transparente et réactive pour les vendeurs et acheteurs.

Les informations sur les risques auxquels ce bien est exposé sont disponibles sur le site Géorisques : https://www.georisques.gouv.fr
Voir plus

Référence: DOM21950
Honoraires à la charge du vendeur.
DPE
A
B
C
D
E
F
G
GES
A
B
C
D
E
F
G

Prêt immobilier

Vous souhaitez connaître votre capacité d’emprunt et trouver le meilleur crédit immobilier ?
Réaliser une simulation gratuite

Appartement à LYON-6E
Appartement à LYON-6E
Appartement à LYON-6E
Appartement à LYON-6E
Appartement à LYON-6E
Appartement à LYON-6E
Appartement à LYON-6E
Appartement à LYON-6E
Appartement à LYON-6E
Appartement à LYON-6E
Appartement à LYON-6E
Appartement à LYON-6E
Ce site est protégé par reCAPTCHA la Politique de confidentialité et les Conditions d’utilisation de Google s’appliquent.
Obtenir un prêt immobilier au meilleur taux ?

En poursuivant votre navigation sans modifier vos paramètres, vous acceptez l'utilisation de cookies susceptibles de réaliser des statistiques de visite. Cliquez ici pour plus d'informations