Bénéficiez des services de nos partenaires locaux soigneusement sélectionnés
pour vous accompagner dans votre parcours d'achat immobilier

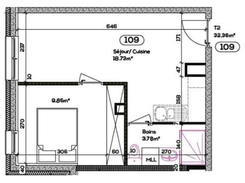
Appartement de 32,36 m² à vendre, 2 pièces à seyssel (01) à 45 mns d'annecy et de genève

— Seyssel 01420 —
119 700 €
32 m²
2 pièces

Nos partenaires locaux
Appartement de 32,36 m² composé d'un séjour, d'une chambre, d'une salle de douche avec WC.

Des prestations de qualité pour un confort optimal : triple vitrage, isolation par l'extérieur et chauffage au sol via pompe à chaleur collective.

Possibilité d'acheter en plus un garage et/ou place de parking.

Un emplacement stratégique à 3 minutes de la gare, permettant de rejoindre Lyon en 1 heure et Genève en 43 minutes.

Une offre locative très limitée sur le secteur, garantissant une forte demande.

La proximité des commerces et un environnement résidentiel de qualité.

A votre écoute et disposition pour en discuter et vous apporter un complément d'information.

Les informations sur les risques auxquels ce bien est exposé sont disponibles sur le site Géorisques : www. georisques. gouv. fr.

Réseau Immobilier CAPIFRANCE - Votre agent commercial (RSAC N°851 001 537 - Greffe de CHAMBERY) Flora ULMSCHNEIDER Entrepreneur Individuel [Coordonnées masquées] - Réf.304121
Voir plus

Référence: 340937325063
Honoraires à la charge du vendeur.

Prêt immobilier

Vous souhaitez connaître votre capacité d’emprunt et trouver le meilleur crédit immobilier ?
Réaliser une simulation gratuite

Appartement à SEYSSEL
Appartement à SEYSSEL
Appartement à SEYSSEL
Appartement à SEYSSEL
Appartement à SEYSSEL
Ce site est protégé par reCAPTCHA la Politique de confidentialité et les Conditions d’utilisation de Google s’appliquent.
Obtenir un prêt immobilier au meilleur taux ?

En poursuivant votre navigation sans modifier vos paramètres, vous acceptez l'utilisation de cookies susceptibles de réaliser des statistiques de visite. Cliquez ici pour plus d'informations