Bénéficiez des services de nos partenaires locaux soigneusement sélectionnés
pour vous accompagner dans votre parcours d'achat immobilier

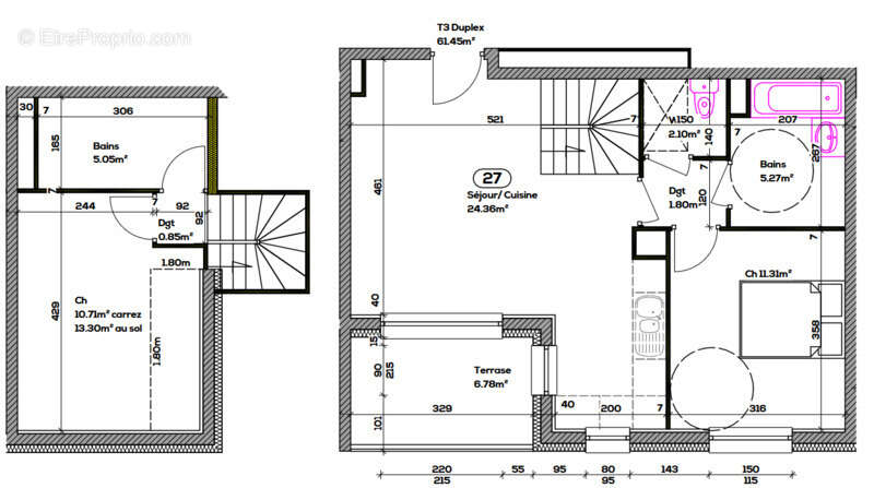
Appartement t3 de 61,45 m² en duplex à vendre à seyssel (01), avec terrasse à 45 mns d'annecy et de genève

— Seyssel 01420 —
213 800 €
61 m²
3 pièces
parkingbalcon/terrasse

Nos partenaires locaux
Ce charmant duplex de 61,45 m², situé proche du Rhône à SEYSSEL, est à seulement 45 mns de Genève et d'Annecy. Il est au deuxième étage avec ascenseur.

Vous profiterez d'une belle pièce de vie composée d'un séjour lumineux et d'une cuisine ouverte, parfaite pour des moments conviviaux. Une chambre spacieuse, une salle de bain et un WC indépendant complètent ce niveau.

À l'étage, une seconde chambre vous attend, accompagnée d'une salle d'eau, offrant confort et intimité.

Pour vos moments de détente, une terrasse privative vous permettra de profiter des beaux jours.

Une place de parking et un garage peuvent être acquis en supplément.

Idéal pour une résidence principale ou un investissement locatif, ce bien est une opportunité à ne pas manquer.

Ensemble immobilier prévu pour le 4ème trimestre 2026.

A env. 45 mns d'Annecy et de Genève.

Pour toute information, n'hésitez pas à m'appeler. A bientôt.

Les informations sur les risques auxquels ce bien est exposé sont disponibles sur le site Géorisques : www. georisques. gouv. fr.

Réseau Immobilier CAPIFRANCE - Votre agent commercial (RSAC N°851 001 537 - Greffe de CHAMBERY) Flora ULMSCHNEIDER Entrepreneur Individuel [Coordonnées masquées] - Réf.304121
Voir plus

Référence: 340936584340
Bien en copropriété.
Honoraires à la charge du vendeur.

Prêt immobilier

Vous souhaitez connaître votre capacité d’emprunt et trouver le meilleur crédit immobilier ?
Réaliser une simulation gratuite

Appartement à SEYSSEL
Appartement à SEYSSEL
Appartement à SEYSSEL
Appartement à SEYSSEL
Ce site est protégé par reCAPTCHA la Politique de confidentialité et les Conditions d’utilisation de Google s’appliquent.
Obtenir un prêt immobilier au meilleur taux ?

En poursuivant votre navigation sans modifier vos paramètres, vous acceptez l'utilisation de cookies susceptibles de réaliser des statistiques de visite. Cliquez ici pour plus d'informations