Bénéficiez des services de nos partenaires locaux soigneusement sélectionnés
pour vous accompagner dans votre parcours d'achat immobilier

Vente t2 plage nord vue port

— Le Grau-Du-Roi 30240 —
346 000 €
48 m²
2 pièces
parkingbalcon/terrasse

Nos partenaires locaux
PORT CAMARGUE - SECTEUR PLAGE NORD
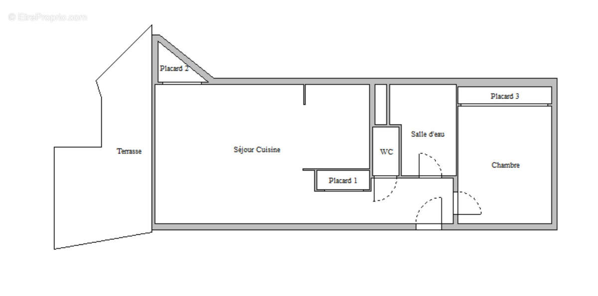
Dans une superbe résidence a quelques pas des commerces et à 200 m de la plage.
Appartement de type 2 pièces traversant entièrement rénové comprenant un séjour avec cuisine ouverte, une salle d'eau, un WC séparé et un chambre.
Une terrasse de 13.14 m2 exposée SUD-OUEST offrant une magnifique VUE PORT.
La surface carrez retenue est de 47.97 m2 mais les placards ne sont pas comptabilisés dans la surface carrez, en tenant compte de cet élement la surface au sol est de 51. 77m2.
Vendu avec un parking privé et un cellier privé en sous-sol mesurant 3.61 m2.
Double vitrage, store banne électrique.
Bien soumis au statut juridique de la copropriété.
Nombre de lots : 89 à usage d'habitation false
Voir plus

Référence: 5215
Bien en copropriété. Nombre de lots : 89.
Honoraires d'agence de 3.59% à la charge de l'acquéreur
Barème des honoraires

Prêt immobilier

Vous souhaitez connaître votre capacité d’emprunt et trouver le meilleur crédit immobilier ?
Réaliser une simulation gratuite

Appartement à LE GRAU-DU-ROI
Appartement à LE GRAU-DU-ROI
Appartement à LE GRAU-DU-ROI
Appartement à LE GRAU-DU-ROI
Appartement à LE GRAU-DU-ROI
Appartement à LE GRAU-DU-ROI
Appartement à LE GRAU-DU-ROI
Appartement à LE GRAU-DU-ROI
Appartement à LE GRAU-DU-ROI
Appartement à LE GRAU-DU-ROI
Appartement à LE GRAU-DU-ROI
Appartement à LE GRAU-DU-ROI
Appartement à LE GRAU-DU-ROI
Appartement à LE GRAU-DU-ROI
Appartement à LE GRAU-DU-ROI
Appartement à LE GRAU-DU-ROI
Appartement à LE GRAU-DU-ROI
Ce site est protégé par reCAPTCHA la Politique de confidentialité et les Conditions d’utilisation de Google s’appliquent.
Obtenir un prêt immobilier au meilleur taux ?

En poursuivant votre navigation sans modifier vos paramètres, vous acceptez l'utilisation de cookies susceptibles de réaliser des statistiques de visite. Cliquez ici pour plus d'informations