Bénéficiez des services de nos partenaires locaux soigneusement sélectionnés
pour vous accompagner dans votre parcours d'achat immobilier

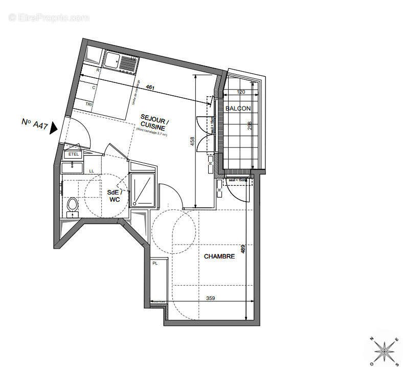
Appartement 2p - le-plessis-robinson

— Le Plessis-Robinson 92350 —
302 500 €
41 m²
2 pièces
parkingbalcon/terrasse

Nos partenaires locaux
Située à l’entrée du quartier Joliot-Curie, la résidence Allée Robert Debré profite d’un cadre paisible et verdoyant, tout en restant à deux pas du centre-ville et de ses commodités essentielles. Marché réputé, commerces, restaurants, établissements scolaires et équipements sportifs se trouvent à proximité immédiate, offrant un quotidien pratique et agréable. Parfaitement connectée, l’adresse bénéficie de la présence du tramway T10 à seulement 500 mètres, des lignes de bus et du RER B, facilitant les déplacements vers Paris et les communes voisines.
Conçue dans un style architectural classique et harmonieux, la résidence s’intègre élégamment dans son environnement et propose un vaste cœur d’îlot paysager propice à la détente. Les appartements, tous prolongés par un espace extérieur et assortis d’une place de stationnement, offrent confort et modernité dans une résidence sécurisée et conforme aux exigences de la RE2020. Avec ses prestations soignées, ses cheminements piétons et l’arrivée prochaine d’une école Montessori, cette adresse réunit qualité de vie, sérénité et praticité au quotidien.
Un emplacement de stationnement vient compléter le bien.
Voir plus

Bien en copropriété. Nombre de lots : 1000.
Barème des honoraires

Prêt immobilier

Vous souhaitez connaître votre capacité d’emprunt et trouver le meilleur crédit immobilier ?
Réaliser une simulation gratuite

Appartement à LE PLESSIS-ROBINSON
Appartement à LE PLESSIS-ROBINSON
Appartement à LE PLESSIS-ROBINSON
Appartement à LE PLESSIS-ROBINSON
Appartement à LE PLESSIS-ROBINSON
Ce site est protégé par reCAPTCHA la Politique de confidentialité et les Conditions d’utilisation de Google s’appliquent.
Obtenir un prêt immobilier au meilleur taux ?

En poursuivant votre navigation sans modifier vos paramètres, vous acceptez l'utilisation de cookies susceptibles de réaliser des statistiques de visite. Cliquez ici pour plus d'informations