Bénéficiez des services de nos partenaires locaux soigneusement sélectionnés
pour vous accompagner dans votre parcours d'achat immobilier

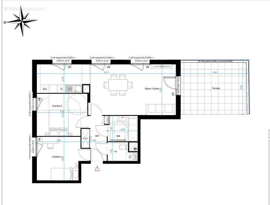
Appartement fontaines sur saone 2 pièce(s) 40 m2

— Fontaines-Sur-Saone 69270 —
234 000 €
39 m²
2 pièces
ascenseur

Nos partenaires locaux
Bel appartement T2 avec à Fontaines-sur-Saône

Tatiana SAUMET vous présente un superbe appartement de 40m² situé au 3er étage, avec un balcon de 6m2 , idéal pour un investissement locatif ou pour s'y installer confortablement.

A deux pas du centre de Fontaines-sur-Saône, commune dynamique et conviviale aux portes de Lyon, vous profiterez d'un cadre de vie agréable, proche de toutes les commodités et des transports.

L'appartement bénéficie de prestations de standing garantissant un excellent confort moderne, une isolation performante et de faibles charges de copropriété.
La résidence, à l'architecture élégante et harmonieuse, se compose de petits immeubles intimistes entourés d'un vaste jardin paysager invitant à la détente et à la sérénité.

Disponibilité : : fin 2027
DPE non soumis
Prix : 234000 euros Honoraires à la charge du vendeur
Frais de notaire réduits.

Pour plus d'informations ou pour vous accompagner dans votre projet, contactez Tatiana SAUMET

Selon l'article L.561.5 du Code Monétaire et Financier, pour l'organisation de la visite, la présentation d'une pièce d'identité vous sera demandée.
Cette présente annonce a été rédigée sous la responsabilité éditoriale de Tatiana SAUMET agissant sous le statut d'agent commercial, immatriculé au RSAC LYON 844 566 315 auprès de la SAS PROPRIETES PRIVEES, au capital de 40 000 euros, ZAC LE CHÊNE FERRÉ - 44 ALLÉE DES CINQ CONTINENTS 44120 VERTOU; SIRET 487 624 777 00040, RCS Nantes. Carte professionnelle Transactions sur immeubles et fonds de commerce (T) et Gestion immobilière (G) n° CPI 44[Coordonnées masquées]10 388 délivrée par la CCI Nantes - Saint Nazaire. Compte séquestre n°3[Coordonnées masquées] BPA SAINT-SEBASTIEN-SUR-LOIRE (44230) ; Garantie GALIAN - 89 rue de la Boétie, 75008 Paris - n°28137 J pour 2 000 000 euros pour T et 120 000 euros pour G. Assurance responsabilité civile professionnelle par MMA Entreprise n° de police 120.137.405
Mandat réf : 427066 - Le professionnel garantit et sécurise votre projet immobilier.

Tatiana SAUMET Agent Commercial - Numéro RSAC : LYON 844 566 315
Copropriété de 19 lots - dont 19 lots habitation. ().

Charges annuelles : 1000 euros.
Tatiana SAUMET (EI) Agent Commercial - Numéro RSAC : LYON 844 566 315 - .
Les informations sur les risques auxquels ce bien est exposé sont disponibles sur le site Géorisques : www. georisques. gouv. fr
Voir plus

Référence: 427066STT
Bien en copropriété. Nombre de lots : 19. Charges de copropriété : 83 €.
Honoraires à la charge du vendeur.

Prêt immobilier

Vous souhaitez connaître votre capacité d’emprunt et trouver le meilleur crédit immobilier ?
Réaliser une simulation gratuite

Appartement à FONTAINES-SUR-SAONE
Appartement à FONTAINES-SUR-SAONE
Appartement à FONTAINES-SUR-SAONE
Appartement à FONTAINES-SUR-SAONE
Appartement à FONTAINES-SUR-SAONE
Ce site est protégé par reCAPTCHA la Politique de confidentialité et les Conditions d’utilisation de Google s’appliquent.
Obtenir un prêt immobilier au meilleur taux ?

En poursuivant votre navigation sans modifier vos paramètres, vous acceptez l'utilisation de cookies susceptibles de réaliser des statistiques de visite. Cliquez ici pour plus d'informations