Bénéficiez des services de nos partenaires locaux soigneusement sélectionnés
pour vous accompagner dans votre parcours d'achat immobilier

Rare : fort potentiel – plateau d’avron

— Neuilly-Plaisance 93360 —
575 000 €
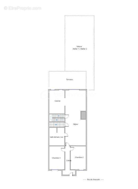
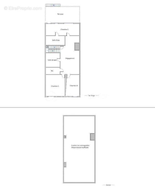
183 m² / 621 m²
7 pièces
parkingbalcon/terrasse

Nos partenaires locaux
FORT POTENTIEL – PLATEAU D'AVRON

Située dans un environnement résidentiel calme du Plateau d'Avron à Neuilly-Plaisance, cette propriété représente une opportunité idéale pour investisseurs, marchands de biens ou projet familial ambitieux.

Implantée sur un terrain de 621 m², la maison développe environ 360 m² au sol, offrant un potentiel de transformation, d'agrandissement et de valorisation particulièrement intéressant.

UN BIEN À RÉINVENTER ENTIÈREMENT

La maison nécessite une rénovation complète, permettant de repenser totalement les volumes et les usages :
• Création d'une grande maison contemporaine
• Division en plusieurs logements
• Projet mixte : résidence principale avec revenus locatifs
• Reconfiguration complète des espaces
• Aménagement d'espaces de vie modernes et haut de gamme

UN VÉRITABLE ATOUT : STUDIO INDÉPENDANT

Le bien dispose déjà d'un studio indépendant avec accès séparé au rez-de-chaussée, comprenant kitchenette et salle de douche avec WC.

Un avantage concret pour :
• générer des revenus locatifs
• loger un proche
• ou créer un espace professionnel indépendant

UN BIEN À FORT POTENTIEL DE VALORISATION
• Surface importante et exploitable
• Terrain de belle taille
• Nombreuses possibilités d'aménagement
• Configuration adaptée à différents projets

ENVIRONNEMENT

Quartier résidentiel calme, apprécié pour sa tranquillité, à proximité des écoles, commerces et espaces verts.

Accès aux transports :
Bus (114, 214, 303) accessibles à pied
RER A rapidement accessible → liaison directe avec Paris

UN BIEN POUR LES PROFILS AVERTIS

Ce bien s'adresse à des acquéreurs capables de se projeter dans un projet de rénovation et de valorisation.

Le potentiel est réel, à exploiter selon votre vision.

BIEN À FORT POTENTIEL – RARE SUR LE SECTEUR

Négociation possible selon projet

Cette annonce référence 314065 vous est présentée par votre agent commercial BSK Immobilier BEYANE ASSI (EI) immatriculé au RSAC de CRETEIL (94000) sous le numéro 82466752100028.

Prix du bien : 575 000,00 €
Les honoraires d'agence sont à la charge du vendeur.

A propos des performances énergétiques :
Date de réalisation du diagnostic énergétique : 01/12/2025
Score DPE : 395 kWhEP/m²/an
Score GES : 62 kgepCO2/m²/an
Montant estimé des dépenses annuelles d'énergie pour un usage standard : entre 5000.00 € et 6800.00 € par an. Prix moyens des énergies indexés sur l'année 2021 (abonnements compris).

Les informations sur les risques auxquels ce bien est exposé sont disponibles sur le site Géorisques : www.georisques.gouv.fr
Voir plus

Référence: 314065
Honoraires à la charge du vendeur.
DPE
A
B
C
D
E
F
G
GES
A
B
C
D
E
F
G
Maison à NEUILLY-PLAISANCE
Maison à NEUILLY-PLAISANCE
Maison à NEUILLY-PLAISANCE
Maison à NEUILLY-PLAISANCE
Maison à NEUILLY-PLAISANCE
Maison à NEUILLY-PLAISANCE
Maison à NEUILLY-PLAISANCE
Maison à NEUILLY-PLAISANCE
Maison à NEUILLY-PLAISANCE
Maison à NEUILLY-PLAISANCE
Maison à NEUILLY-PLAISANCE
Maison à NEUILLY-PLAISANCE
Maison à NEUILLY-PLAISANCE
Géorisques

Les informations sur les risques auxquels ce bien est exposé sont disponibles sur le site Géorisques : www.georisques.gouv.fr

Ce site est protégé par hCaptcha Politique de confidentialité et Conditions d’utilisation s’appliquent.

En poursuivant votre navigation sans modifier vos paramètres, vous acceptez l'utilisation de cookies susceptibles de réaliser des statistiques de visite. Cliquez ici pour plus d'informations