Dpt vosges (88), bains-les-bains - immeuble 9 appartements t2 avec balcon / terrain de 1000 m² environ

— Bains-Les-Bains 88240 —
320 000 €
353 m²
parking

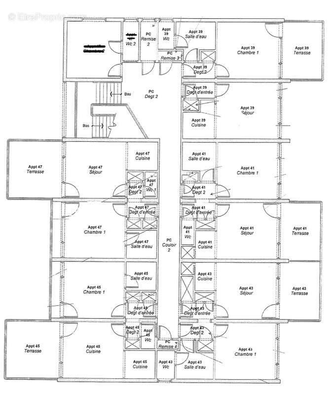
BAINS-LES-BAINS (88) IMMEUBLE composé de 9 APPARTEMENTS (d'environ 37 m2 chacun) entièrement meublés avec BALCON ou TERRASSE (idéal 'curistes') + annexe, à proximité de la Cure thermale 'Bains-les-bains' avec PARKING sur TERRAIN d'environ 2200 m2

IDEAL INVESTISSEUR ou MARCHAND DE BIENS - Excellente rentabilité.

Cet IMMEUBLE se compose de :
* 9 appartements T2 meublés et équipés avec balcon ou terrasse (+ 1 chambre)
Idéal pour investissement locatifs et curistes.

lLe planning de réservation 2025 est complet et tout le travail fait pour l'année 2025 par le propriétaire, vous est OFFERT (vous encaisserez les loyers aussitôt l'acte authentique signé et récupérez les arrhes déjà versés, ainsi que le fichier 'clients'. Le propriétaire se propose également de vous aider de bon coeur si vous le souhaitez, pour que la reprise se passe dans les meilleures conditions pour vous)

La situation privilégiée de la résidence avec un beau terrain de 1000 m² environ, à deux pas des termes, garantit à vos locataires curistes ou vacanciers, calme, détente et bien-être.

Les thermes de Bains les Bains, à moins de 5 mn à pied, sont spécialisés dans le traitement de la rhumatologie et des maladies cardio-artérielles. Les eaux sont hyperthermales, bicarbonatées sodiques, oligométalliques et riches en silice et calciques. La station thermale de Bains les Bains est ouverte de la mi-mars à la mi-novembre.

EPINAL à environ 20 mn

à 3 h 30 de PARIS et à 2h30 du LUXEMBOURG

Nous nous tenons à votre disposition également pour toute étude de financement de votre projet - A titre d'exemple, sur une durée de 20 ans, le remboursement d'emprunt serait d'environ 1.900 Eur /mois

CA 2022 et 2023 sur demande

Visite après prise de rendez-vous : 7 jours sur 7

(visite virtuelle disponible, ainsi que les chiffres 'dépenses et recettes' 2022 et 2023)

REMIREMONT (à environ 25 mn) VITTEL et CONTREXÉVILLE (à environ 30 mn)

Karine FARIGU
[Coordonnées masquées]
Tel & Whatsapp : [Coordonnées masquées]
[Coordonnées masquées]

En raison de mes engagements quotidiens, incluant les rendez-vous 'notaires' et 'clientèle', mes déplacements en voiture (téléphone au volant interdit), je vous remercie de privilégier l'envoi de vos demandes par E-MAIL ou SMS ou message WHATSAPP, je reviendrai vers vous au + vite. Merci de votre compréhension et à bientôt
Les honoraires sont à la charge du vendeur.
Le Diagnostic de Performance Énergétique(DPE) a été réalisé selon une méthode valable mais non fiable et non-opposable.
Les informations sur les risques auxquels ce bien est exposé sont disponibles sur le site Géorisques : www. georisques. gouv. fr.

Réseau Immobilier CAPIFRANCE - Votre agent commercial (RSAC N°519 916 233 - Greffe de EPINAL) Karine FARIGU Entrepreneur Individuel à Responsabilité Limitée [Coordonnées masquées] - Réf.933602
Voir plus

Référence: 340932168198
Honoraires à la charge du vendeur.
DPE
A
B
C
D
E
F
G
GES
A
B
C
D
E
F
G

Prêt immobilier

Vous souhaitez connaître votre capacité d’emprunt et trouver le meilleur crédit immobilier ?
Réaliser une simulation gratuite

Appartement à BAINS-LES-BAINS
Appartement à BAINS-LES-BAINS
Appartement à BAINS-LES-BAINS
Appartement à BAINS-LES-BAINS
Appartement à BAINS-LES-BAINS
Appartement à BAINS-LES-BAINS
Appartement à BAINS-LES-BAINS
Appartement à BAINS-LES-BAINS
Appartement à BAINS-LES-BAINS
Appartement à BAINS-LES-BAINS
Appartement à BAINS-LES-BAINS
Appartement à BAINS-LES-BAINS
Appartement à BAINS-LES-BAINS
Appartement à BAINS-LES-BAINS
Appartement à BAINS-LES-BAINS
Appartement à BAINS-LES-BAINS
Appartement à BAINS-LES-BAINS
Appartement à BAINS-LES-BAINS
Appartement à BAINS-LES-BAINS
Appartement à BAINS-LES-BAINS
Appartement à BAINS-LES-BAINS
Appartement à BAINS-LES-BAINS
Ce site est protégé par reCAPTCHA la Politique de confidentialité et les Conditions d’utilisation de Google s’appliquent.
Obtenir un prêt immobilier au meilleur taux ?

En poursuivant votre navigation sans modifier vos paramètres, vous acceptez l'utilisation de cookies susceptibles de réaliser des statistiques de visite. Cliquez ici pour plus d'informations