En exclusivité belle maison familiale 7 pièces avec piscine à hoerdt

— Hoerdt 67720 —
504 700 €
157 m² / 520 m²
7 pièces
parkingjardinpiscine



En exclusivité, à proximité de la gare des écoles et des commerces ,sur un magnifique terrain de 5,20 ares, belle maison de 7 pièces pour 157m2 au sol / 142m2 habitables, érigée en 1992 , avec piscine , sous-sol complet , garage double , parkings.

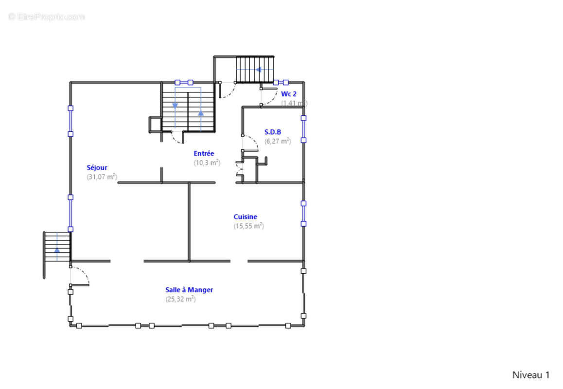
Au rez-de-chaussée :

- entrée avec placards.

- 1 cuisine entièrement équipée de 15,5m2 donnant sur la salle à manger entièrement vitrée de 25m2 et sur le jardin agrémenté d'une piscine .

- 1 grand salon-séjour de 31m2. ( possibilité de créer une chambre/bureau au rez-de-chaussée ).

- 1 salle d’eau avec douche à l’italienne , double vasque , fenêtre.
- 1 wc séparé.


À l'étage:
- 4 chambres de 13m2/14m2/14m2/14m2 offrant la possibilité d’y mettre un grand lit et une armoire dans chacune d’elles.
- 1 salle d’eau avec douche et wc.

Au sous-sol complet et carrelé d’environ 64m2 :
- 1 pièce aménagée en chambre.

- Espace chaufferie. ( chauffage au sol et radiateurs via une chaudière gaz récente).
- Espace buanderie avec point d’eau et de nombreux meubles de rangement .
- Garage double.
- Espaces atelier et rangements avec wc .


Extérieur :
- Piscine chauffée équipée d’une couverte amovible de 3,5m X 7,5m .

La maison est en bon état général ,est isolée, équipée de :
- d'un chauffage au gaz couplé à des panneaux solaires thermiques .
- climatisation au RDC .
- double vitrage.


Prix: 504 700 € HAI
Honoraires d'agence à la charge des acquéreurs.

Pour tout renseignement ou une visite , votre contact :
Patrice Otto
Tel: [Coordonnées masquées]
Négociateur B.A. Immobilier.

Hoerdt dispose de toutes les commodités nécessaires à la vie courante ( gare ,commerces ,écoles ,autoroutes ) se situe à 2mn de Weyersheim , 10mn Brumath , Wantzenau ,Kilstett ,15mn de Strasbourg.
Voir plus

Référence: POHF
Honoraires d'agence de 3% à la charge de l'acquéreur
DPE
A
B
C
D
E
F
G
GES
A
B
C
D
E
F
G

Prêt immobilier

Vous souhaitez connaître votre capacité d’emprunt et trouver le meilleur crédit immobilier ?
Réaliser une simulation gratuite

Maison à HOERDT
Maison à HOERDT
Maison à HOERDT
Maison à HOERDT
Maison à HOERDT
Maison à HOERDT
Maison à HOERDT
Maison à HOERDT
Maison à HOERDT
Maison à HOERDT
Maison à HOERDT
Maison à HOERDT
Maison à HOERDT
Maison à HOERDT
Maison à HOERDT
Maison à HOERDT
Ce site est protégé par reCAPTCHA la Politique de confidentialité et les Conditions d’utilisation de Google s’appliquent.
Obtenir un prêt immobilier au meilleur taux ?

En poursuivant votre navigation sans modifier vos paramètres, vous acceptez l'utilisation de cookies susceptibles de réaliser des statistiques de visite. Cliquez ici pour plus d'informations