Bénéficiez des services de nos partenaires locaux soigneusement sélectionnés
pour vous accompagner dans votre parcours d'achat immobilier

Voir tous les partenaires locaux

Dubouchage - Elégant 2 pièces à rénover avec terrasse 11m²

— Nice 06000 —
405 000 €
38 m²
2 pièces
balcon/terrasseascenseur

Nos partenaires locaux
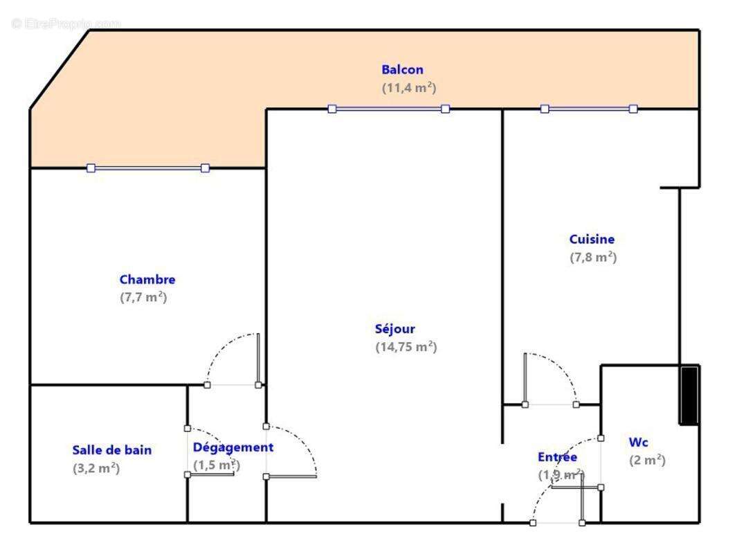
Situé au cinquième étage d'un immeuble bien entretenu du secteur Dubouchage, ce deux-pièces de 38 m² offre un beau potentiel de rénovation à quelques pas du centre-ville et du Vieux-Nice. L'appartement dispose d'un séjour ouvrant sur un large balcon, d'une chambre, d'une cuisine indépendante, d'une salle de bain et de toilettes séparées.

Sa configuration fonctionnelle et son emplacement privilégié en font une opportunité rare pour créer un pied-à-terre élégant ou réaliser un investissement idéalement situé. À proximité immédiate des commerces, des transports et de toutes les commodités, ce bien réunit emplacement stratégique et réelle possibilité de valorisation.
Voir plus

Référence: 2459
Bien en copropriété. Nombre de lots : 38.
Honoraires d'agence de 6% à la charge de l'acquéreur
DPE
A
B
C
D
E
F
G
GES
A
B
C
D
E
F
G
Appartement à NICE
Appartement à NICE
Appartement à NICE
Appartement à NICE
Appartement à NICE
Appartement à NICE
Appartement à NICE
Appartement à NICE
Appartement à NICE
Appartement à NICE
Appartement à NICE
Appartement à NICE
Appartement à NICE
Appartement à NICE
Appartement à NICE
Appartement à NICE
Appartement à NICE
Géorisques

Les informations sur les risques auxquels ce bien est exposé sont disponibles sur le site Géorisques : www.georisques.gouv.fr

Ce site est protégé par hCaptcha Politique de confidentialité et Conditions d’utilisation s’appliquent.

En poursuivant votre navigation sans modifier vos paramètres, vous acceptez l'utilisation de cookies susceptibles de réaliser des statistiques de visite. Cliquez ici pour plus d'informations