Bénéficiez des services de nos partenaires locaux soigneusement sélectionnés
pour vous accompagner dans votre parcours d'achat immobilier

Maison contemporaine de 2005

— Camaret-Sur-Mer 29570 —
288 000 €
96 m² / 729 m²
4 pièces
balcon/terrassejardin

Nos partenaires locaux
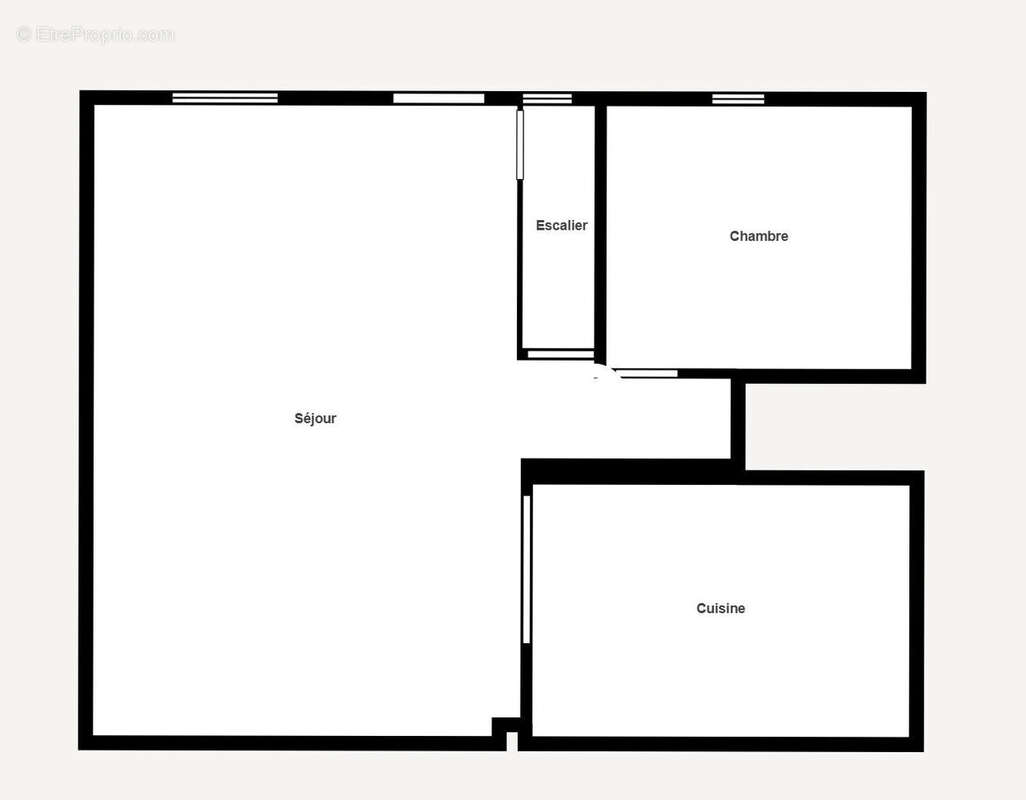
Camaret-sur-Mer : Maison de 96 m² sur parcelle de 729 m². Située dans un environnement calme, proche des commerces et de la mer, cette maison offre une pièce de vie traversante avec insert pour des soirées chaleureuses, ainsi qu'une cuisine aménagée et équipée ouvrant sur une terrasse exposée sud. Une chambre et un WC complètent le rez-de-chaussée. A l'étage, l'espace nuit comprend deux chambres, une salle d'eau avec WC et un débarras offrant un rangement supplémentaire. La maison dispose également d'un sous-sol complet, idéal pour stationner, bricoler ou stocker du matériel. Côté confort : double vitrage, tout-à-l'égout, fibre optique. Un bien rare sur le secteur, parfait pour une famille, un pied-à-terre en bord de mer ou un premier achat. A visiter sans tarder ! (2.86 % honoraires TTC à la charge de l'acquéreur.)
Voir plus

Honoraires d'agence de 2.86% à la charge de l'acquéreur
Barème des honoraires
DPE
A
B
C
D
E
F
G
GES
A
B
C
D
E
F
G
Maison à CAMARET-SUR-MER
Maison à CAMARET-SUR-MER
Maison à CAMARET-SUR-MER
Maison à CAMARET-SUR-MER
Maison à CAMARET-SUR-MER
Maison à CAMARET-SUR-MER
Maison à CAMARET-SUR-MER
Maison à CAMARET-SUR-MER
Maison à CAMARET-SUR-MER
Maison à CAMARET-SUR-MER
Maison à CAMARET-SUR-MER
Maison à CAMARET-SUR-MER
Maison à CAMARET-SUR-MER
Maison à CAMARET-SUR-MER
Maison à CAMARET-SUR-MER
Maison à CAMARET-SUR-MER
Maison à CAMARET-SUR-MER
Maison à CAMARET-SUR-MER
Maison à CAMARET-SUR-MER
Géorisques

Les informations sur les risques auxquels ce bien est exposé sont disponibles sur le site Géorisques : www.georisques.gouv.fr

Ce site est protégé par hCaptcha Politique de confidentialité et Conditions d’utilisation s’appliquent.

En poursuivant votre navigation sans modifier vos paramètres, vous acceptez l'utilisation de cookies susceptibles de réaliser des statistiques de visite. Cliquez ici pour plus d'informations