Maison la bernerie en retz 5 pièce(s) 94.5 m2

— La Bernerie-En-Retz 44760 —
384 800 €
95 m² / 300 m²
5 pièces
jardin

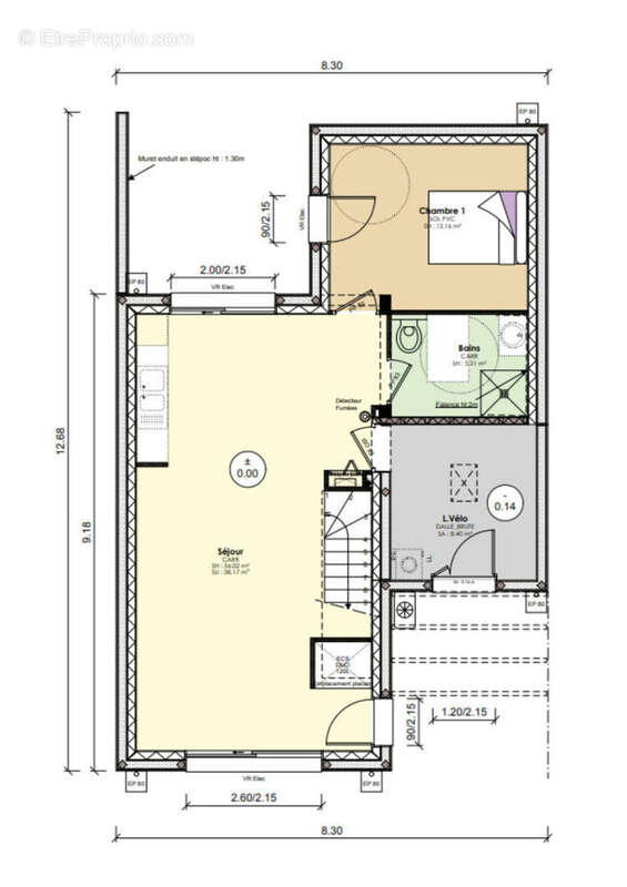
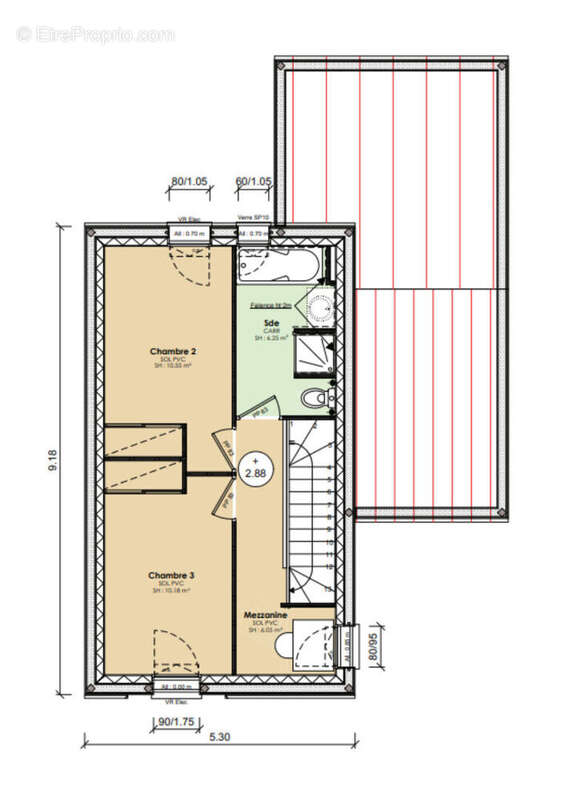
LA BERNERIE-EN-RETZ - Dans un environnement calme et recherché, à proximité immédiate du centre et de la grande plage, maison, construction 2017, de 94m2 implantée sur une parcelle d'environ 300m2. Ce bien offre au rez-de-chaussée, une pièce de vie traversante avec cuisine ouverte aménagée, un cellier, une chambre et une salle d'eau avec WC. A l'étage le palier dessert deux chambres avec placards et une salle de bains complète avec WC. L'extérieur comprend une terrasse (dalle béton), un chalet en PVC pour le stockage et un jardin. Stationnement sur la parcelle. Chauffage au sol par pompe à chaleur. Bail d'habitation en cours. Les informations sur les risques auxquels ce bien est exposé sont disponibles sur le site Géorisques https://www.georisques.gouv.fr (4.00 % honoraires TTC à la charge de l'acquéreur.)
Voir plus

Honoraires d'agence de 4% à la charge de l'acquéreur

Prêt immobilier

Vous souhaitez connaître votre capacité d’emprunt et trouver le meilleur crédit immobilier ?
Réaliser une simulation gratuite

Maison à LA BERNERIE-EN-RETZ
Maison à LA BERNERIE-EN-RETZ
Maison à LA BERNERIE-EN-RETZ
Maison à LA BERNERIE-EN-RETZ
Maison à LA BERNERIE-EN-RETZ
Maison à LA BERNERIE-EN-RETZ
Ce site est protégé par reCAPTCHA la Politique de confidentialité et les Conditions d’utilisation de Google s’appliquent.
Obtenir un prêt immobilier au meilleur taux ?

En poursuivant votre navigation sans modifier vos paramètres, vous acceptez l'utilisation de cookies susceptibles de réaliser des statistiques de visite. Cliquez ici pour plus d'informations