Bénéficiez des services de nos partenaires locaux soigneusement sélectionnés
pour vous accompagner dans votre parcours d'achat immobilier

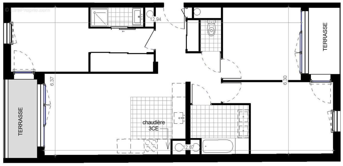
Appartement t4 secteur bvd pommery

— Reims 51100 —
321 000 €
80 m²
4 pièces

Nos partenaires locaux
L'Atelier Immo est fier de vous présenter ce magnifique appartement de type 4 NEUF avec terrasse, situé dans une petite copropriété Boulevard Pommery à REIMS Il se compose comme suit: - une entrée - un espace cuisine a aménager selon vos envies ouvert sur le salon/séjour - Trois chambres - une salle d'eau avec douche à l'italienne - WC indépendant - Deux terrasses privative Performance énergétique : DPE : C GES : C Charges env 110 euros/mois Chauffage individuel (gaz de ville), volets électriques, Résidence sécurisée : digicode + visiophone Norme RT 2012 Garantie décennale Frais de notaire réduit Prix identique promoteur Possibilité d'avoir une place de parking en sus D'autres appartements T3ou T4 sont disponibles à la vente dans cet immeuble. Le prix est exprimé honoraires d'agence inclus à la charge du vendeur. Les informations sur les risques auxquels ce bien est exposé sont disponibles sur le site Géorisques : www.georisques.gouv.fr Annonce immobilière a été rédigée par Mr CLEMENT RABET, agent commercial immatriculé au RSAC de Reims sous le numéro 910618032 Titulaire de la carte de démarchage immobilier pour le compte de la SAS ATELIER IMMO N° SIREN : 888 682 002. Copropriété de 20 lots ().
Voir plus

Référence: Apt_103
Honoraires à la charge du vendeur.
DPE
A
B
C
D
E
F
G
GES
A
B
C
D
E
F
G

Prêt immobilier

Vous souhaitez connaître votre capacité d’emprunt et trouver le meilleur crédit immobilier ?
Réaliser une simulation gratuite

Appartement à REIMS
Appartement à REIMS
Appartement à REIMS
Appartement à REIMS
Appartement à REIMS
Appartement à REIMS
Appartement à REIMS
Appartement à REIMS
Ce site est protégé par reCAPTCHA la Politique de confidentialité et les Conditions d’utilisation de Google s’appliquent.
Obtenir un prêt immobilier au meilleur taux ?

En poursuivant votre navigation sans modifier vos paramètres, vous acceptez l'utilisation de cookies susceptibles de réaliser des statistiques de visite. Cliquez ici pour plus d'informations