1. Accueil
  2. > Appartements à vendre
  3. > Marne (51)
  4. > Reims
  5. > Pommery

Appartement à vendre à Pommery

26 appartements en vente à Pommery

Recherche par type de bien :
maison à vendre reims achat appartement reims

Appartement à REIMS
Appartement 81m² à reims
REIMS
ascenseuraccès handicapé
Situé dans le secteur Pommery à Reims, cet appartement rez-de-chaussée, norme PMR, vous offre un cadre de vie idéal.
256 000 €
CENTURY 21 Espace Conseil
Appartement à REIMS
Appartement t4 secteur bvd pommery
REIMS
L'Atelier Immo est fier de vous présenter ce magnifique appartement de type 4 NEUF avec terrasse, situé dans une petite copropriété Boulevard Pommery à REIMS Il se compose comme suit: - une entrée - un espace cuisine a aménager selon vos envies ouvert sur le salon/séjour - Trois chambres - une salle d'eau avec douche à l'italienne - WC indépendant - Deux terrasses privative Performance énergétique : DPE : C GES : C Charges env 110 euros/mois Chauffage individuel (gaz de ville), volets électriques, ...
321 000 €
L'ATELIER IMMO Reims
Appartement à REIMS
Appartement reims 3 pièces d'environ 78 m2
REIMS
parkingbalcon/terrasseascenseur
Reims Secteur calme Cernay / Pommery Dans une résidence sécurisée et parfaitement entretenue, avec la présence d'un gardien, Laissez-vous séduire par ce charmant appartement de type 3, Situé au 2ème sur 4 étages avec ascenseur, il offre une belle surface d'environ 78 m² Vous y découvrirez : *Une entrée avec de nombreux rangements *Un séjour lumineux ouvrant sur un grand balcon.
156 600 €
LES CLEFS DE L'IMMOBILIER Gueux
Appartement à REIMS
Appartement t3 secteur bvd pommery
REIMS
L'Atelier Immo est fier de vous présenter ce magnifique appartement de type 3 NEUF avec terrasse, situé dans une petite copropriété Boulevard Pommery à REIMS Il se compose comme suit: - une entrée - un espace cuisine aménagée et équipée ouvert sur le salon/séjour - deux chambres - une salle d'eau avec douche à l'italienne - WC indépendant - Belle terrasse privative avec vue dégagée Performance énergétique : DPE : C GES : C Charges env 110 euros/mois Chauffage individuel (gaz de ville), volets élect ...
254 000 €
L'ATELIER IMMO Reims
  - Appartement à REIMS
Appartement 54m² à reims
REIMS
parking
A REIMS secteur HENRI VASNIER/POMMERY, à vendre EN EXCLUSIVITE un Appartement de type II dans une résidence bien entretenue .
129 600 €
Sefic Immobilier
Appartement à REIMS
Reims - type 5 avec balcon et box double secteur henry vasnier
REIMS
parkingbalcon/terrasse
Rue Ponsardin, secteur HENRY VASNIER / POMMERY / ST NICAISE, dans une résidence très bien entretenue de 2001, appartement de Type 5 de 96 m2.
274 000 €
Marcille Immobilier
Appartement à REIMS
T1 avec parking et cave
REIMS
parkingascenseur
Idéalement placé entre le boulevard Saint Marceau et le boulevard Pommery , vous accédez facilement à l'ensemble des commodités : commerces de proximité, marché, écoles .
108 000 €
Liberkeys
Appartement à REIMS
T2 avec balcon et parking
REIMS
parkingascenseur
Secteur Pommery, à proximité transports, commerces, voies rapides, dans une résidence de standing de 2010, bien entretenue, Foncia vous propose en exclusivité ce T2 comprenant : entrée avec placard, salle d'eau avec WC, une chambre avec placard, séjour avec cuisine ouverte donnant sur un balcon sans vis-à-vis.
155 000 €
Foncia Transaction Nord Picardie Champagne Ardennes
Photo 1 - Appartement à REIMS
Appartement 63m² à reims
REIMS
parkingbalcon/terrasseascenseur
Iad France - Claudie Gaasch vous propose : En EXCLUSIVITE APPARTEMENT d'EXCEPTION dans RESIDENCE de STANDING avec TERRASSE et PLACE DE STATIONNEMENT PRIVATIVE EN SOUS SOL - 4ème et DERNIER ETAGE - PRESTATIONS de QUALITE

En plein cOEur de Reims, à proximité du Centre Ville et du Domaine Vranken Pommery, découvrez ce magnifique appartement de type 4 de 63 m², partiellement meublé, situé au 4ème et dernier étage d'une résidence de standing de 2010 avec ascenseur.
263 000 €
iad France
Appartement à REIMS
Appartement t3 secteur bvd pommery
REIMS
L'Atelier Immo est fier de vous présenter ce magnifique appartement de type 3 NEUF avec terrasse, situé dans une petite copropriété Boulevard Pommery à REIMS Il se compose comme suit: - une entrée - un espace cuisine aménagée et équipée ouvert sur le salon/séjour - deux chambres - une salle d'eau avec douche à l'italienne - WC indépendant - Belle terrasse privative avec vue dégagée Performance énergétique : DPE : C GES : C Charges env 110 euros/mois Chauffage individuel (gaz de ville), volets électr ...
287 000 €
L'ATELIER IMMO Reims
Appartement à REIMS
Appartement 83m² à reims
REIMS
EXCLUSIVITÉ – BD POMMERY- Dans une copropriété entretenue, appartement de 5 pièces principales situé au 2ème étage sans ascenseur.
170 000 €
ÉTUDE CLOVIS
  - Appartement à REIMS
Appartement 86m² à reims
REIMS
parking
A REIMS secteur HENRI VASNIER/POMMERY, à vendre EN EXCLUSIVITE un Appartement de type IV dans une résidence bien entretenue .
235 400 €
Sefic Immobilier
Appartement à REIMS
Appartement t4 secteur bvd pommery
REIMS
jardin
L'Atelier Immo est fier de vous présenter ce magnifique appartement de type 4 NEUF avec terrasse, situé dans une petite copropriété Boulevard Pommery à REIMS Il se compose comme suit: - une entrée - un espace cuisine a aménager selon vos envies ouvert sur le salon/séjour - Trois chambres - une salle d'eau avec douche à l'italienne - WC indépendant - Deux terrasses privative Performance énergétique : DPE : C GES : C Charges env 110 euros/mois Chauffage individuel (gaz de ville), volets électriques, ...
315 000 €
L'ATELIER IMMO Reims
Appartement à REIMS
Appartement t3 secteur bvd pommery
REIMS
L'Atelier Immo est fier de vous présenter ce magnifique appartement de type 3 NEUF avec terrasse, situé dans une petite copropriété Boulevard Pommery à REIMS au PRIX PROMOTEUR.
297 000 €
L'ATELIER IMMO Reims
Appartement à REIMS
Appartement t3 secteur bvd pommery
REIMS
jardin
L'Atelier Immo est fier de vous présenter ce magnifique appartement de type 3 NEUF avec terrasse, situé dans une petite copropriété Boulevard Pommery à REIMS Il se compose comme suit: - une entrée - un espace cuisine aménagée et équipée ouvert sur le salon/séjour - deux chambres - une salle d'eau avec douche à l'italienne - WC indépendant - Belle terrasse privative avec vue dégagée Performance énergétique : DPE : C GES : C Charges env 110 euros/mois Chauffage individuel (gaz de ville), volets électr ...
279 000 €
L'ATELIER IMMO Reims
Appartement à REIMS
Reims - pommery
REIMS
parkingbalcon/terrasseascenseur
REIMS - POMMERY A VENDRE Dans une résidence sécurisée de très bon standing, Appartement de type 2 bis avec beaucoup de charme possédant un très grand balcon avec une vue imprenable et panoramique sur Reims.
199 800 €
L'Adresse - Dreux Immobilier
Appartement à REIMS
T5 recent avec jardin et parking
REIMS
parkingjardinascenseur
Secteur Pommery, à 2 pas des commerces (superette, pharmacie, boulangerie, etc.
252 000 €
Foncia Transaction Nord Picardie Champagne Ardennes
Appartement à REIMS
Appartement t3 dernier etage avec terrasse et parking double
REIMS
parkingbalcon/terrasseascenseur
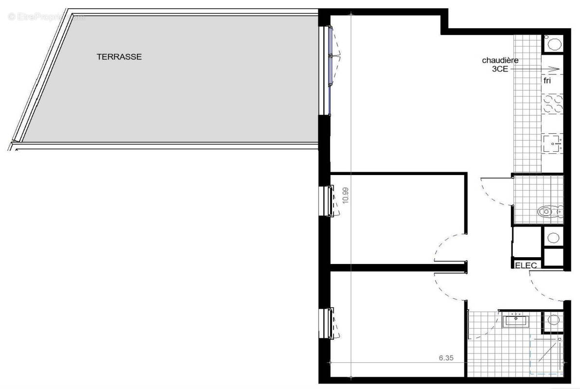
Secteur Pommery dans une résidence récente de 2011, FONCIA vous propose cet appartement de type 3 situé au dernier étage avec ascenseur, norme PMR, comprenant : une entrée, WC avec lave main, séjour lumineux donnant sur une terrasse de presque 20m2 bien exposée, cuisine équipée, salle de bains avec espace machine à laver, deux chambres.
230 000 €
Foncia Transaction Nord Picardie Champagne Ardennes
Appartement à REIMS
Appartement t3 66.30 m2 avec terrasse
REIMS
balcon/terrasse
À Reims, dans le quartier de Pommery, cet appartement T3 neuf de 66,30 m2 situé au sein de la résidence appelée ' Villa Louise', vous séduira par son cadre de vie moderne, calme et sécurisé.
279 000 €
Landrieux Luxury Immobilier
Appartement à REIMS
Appartement t3 63,21m2 avec terrasse
REIMS
balcon/terrasse
À Reims, dans le quartier recherché de Pommery, cet appartement T3 neuf de 63,21 m2 avec terrasse de 9.
254 000 €
Landrieux Luxury Immobilier
Appartement à REIMS
Appartement t3 73,4m2 avec terrasse
REIMS
balcon/terrasse
À Reims, dans le quartier recherché de Pommery, cet appartement T3 neuf.
297 000 €
Landrieux Luxury Immobilier
Photo 1 - Appartement à REIMS
Appartement 80m² à reims
REIMS
ascenseur
Iad France - Romain Ferreria vous propose : À Reims, secteur Pommery / Crayères : Venez visiter cet appartement lumineux avec une vue imprenable sur la ville des Sacres, au sein d'une superbe copropriété avec parc arboré.
178 500 €
iad France
Photo 1 - Appartement à REIMS
Appartement 72m² à reims
REIMS
ascenseur
À Reims, secteur Pommery, cet appartement situé dans une copropriété récente avec ascenseur offre un cadre de vie aussi confortable que pratique.
177 000 €
Safti
Photo 1 - Appartement à REIMS
Appartement 82m² à reims
REIMS
ascenseur
Iad France - Karin Pepin vous propose : EXCLUSIVITE

SECTEUR BLD DE LA PAIX / POMMERY, BLD PASTEUR
Dernier étage avec balcon.
170 000 €
iad France
Photo 1 - Appartement à REIMS
Appartement 67m² à reims
REIMS
parking
Appartement T3 – 67 m² – Boulevard Pommery, Reims
Calme, luminosité et prestations complètes

Dans le secteur recherché Boulevard Pommery, à Reims, découvrez ce superbe appartement T3 de 67 m², parfait pour un jeune couple, une petite famille ou un investissement de qualité.
165 000 €
Safti
Appartement à REIMS
Reims - pommery
REIMS
parkingbalcon/terrasseascenseur
REIMS - POMMERY A VENDRE Dans une résidence de standing avec gardien, un appartement de 154 m2 traversant et ensoleillé offrant une vue imprenable de Reims côté séjour .
455 800 €
L'Adresse - Dreux Immobilier
Obtenir un prêt immobilier au meilleur taux ?

En poursuivant votre navigation sans modifier vos paramètres, vous acceptez l'utilisation de cookies susceptibles de réaliser des statistiques de visite. Cliquez ici pour plus d'informations