1. Accueil
  2. > Commerces à vendre
  3. > Marne (51)
  4. > Reims

Commerces à vendre à REIMS (51)

Commerce à REIMS
Local commercial
REIMS
reims - secteur farman - local commercial a vendre se composant d'une grande salle - cuisine - chambre froide avec de nombreux emplacements de stationnement + pmr - grande cave de stockage et ...
780 000 €
Aux Clefs Des Sacres
Commerce à REIMS
A vendre bureaux reims gare centre environ 148,6m2
REIMS
parking
Idéalement situé à proximité immédiate de la gare centre de REIMS, ce plateau de bureaux d'environ 148,6 m² offre un emplacement stratégique pour une activité professionnelle, libérale ou ter ...
249 000 €
KELLER WILLIAMS GRAND CRU
Commerce à REIMS
Local commercial à vendre à Reims - Secteur Luton, emplacement de choix !
REIMS
Découvrez ce local commercial récent en bon état, idéalement situé au rez-de-chaussée dans le secteur dynamique de Luton à Reims. Avec une surface de 40,64 m² répartie en 3 pièces, ce bien offre ...
99 700 €
NESTENN REIMS LAON
Photo 1 - Commerce à REIMS
Commerce 117 m² à Reims
REIMS
Iad France - Karin Pepin vous propose : EXLUSIVITE Proche place LUTON FONDS DE COMMERCE Emplacement stratégique avec forte visibilité et flux important de passage. Très belle affaire offrant : ? ...
98 400 €
iad France
Commerce à REIMS
Local commercial
REIMS
Cession de droit de bail au prix de 165850 euros FAI, d'un local commercial situé en hypercentre de Reims. Loyer et charges de 2029,50 euros par trimestre, soit 676 euros par mois. Le local c ...
108 000 €
ERA AVENUE DE LAON
Photo 1 - Commerce à REIMS
Commerce 345 m² à Reims
REIMS
Ensemble commercial d'environ 345 m² situé au coeur du centre commercial de Murigny, à Reims, dans un secteur à forte densité de population et à trafic piéton quotidien soutenu.Le bien se com ...
215 000 €
Safti
Photo 1 - Commerce à REIMS
Commerce 118 m² à Reims
REIMS
Iad France - Karin Pepin vous propose : À vendre - Fonds de commerce Bar / Brasserie Situé en emplacement stratégique d'angle, au cOEur du quartier dynamique de Clairmarais, ce bar brasserie ...
118 760 €
iad France
Commerce à REIMS
Fonds de commerce Hôtel - Restaurant Hyper Centre
REIMS
À VENDRE – Fonds de commerce Hôtel / Restaurant / Bar idéalement situé en hyper centre Belle opportunité de reprise pour professionnel de l'hôtellerie-restauration ou investisseur souhaitant ...
321 600 €
KELLER WILLIAMS GRAND CRU
Commerce à REIMS
Secteur moissons - magnifique maison neuve type 7 de 120m2 usage mixte habitation - activite commerciale
REIMS
SECTEUR MOISSONS - MAGNIFIQUE MAISON NEUVE TYPE 7 DE 120m2 USAGE MIXTE HABITATION - ACTIVITE COMMERCIALE.Opportunité unique ! Ce bien est idéalement situé proche du centre ville de Reims proche de ...
365 000 €
Marne Agence
Photo 1 - Commerce à REIMS
Commerce 222 m² à Reims
REIMS
Iad France - Aymeric Derckel ([Coordonnées masquées]) vous propose : À Reims, idéalement situé dans le quartier des affaires à Clairmarais et derrière la gare, découvrez ces bureaux d'une sur ...
499 000 €
iad France
Commerce 202 m² à Reims
REIMS
accès handicapé
Découvrez cette Boutique d'Exception en Plein Coeur de Ville Imaginez-vous au coeur d'un quartier dynamique, où chaque passant est un client potentiel. Cette boutique, située en ...
290 000 €
Agence Vesta Immobilier
Commerce à REIMS
Commerce 468 m² à Reims
REIMS
parking
Entrepôt et local commercial d'exception à Reims Découvrez ce magnifique entrepôt et local commercial de 616 m² au total, situé au coeur de la ville de Reims (51100), à proximité de toutes le ...
530 000 €
Agence Vesta Immobilier
Commerce à REIMS
Bureaux à Reims
REIMS
Ensemble de bureaux tous loués + salle de conférence + salle de tirage + réfectoire. Cet ensemble se trouve à 2 pas des promenades et du centre ville de Reims. Accès PMR. Rentabilité nette de 8 ...
290 000 €
L'ATELIER IMMO Reims
Commerce à REIMS
Vente hotel bar restaurant 4 etoiles region champagne ardennes
REIMS
A 50 minutes en voiture de Reims, je vous propose d'acquérir mon Hôtel contemporain classé 4 étoiles en centre ville ; il comprend 26 chambres tout confort, un espace réception clients, un ba ...
2 350 000 €
Capifrance
Commerce à REIMS
À vendre, salon de coiffure clé en main d’environ 70 m2 à Reims
REIMS
Belle opportunité pour professionnel de la coiffure : salon clé en main prêt à travailler, avec clientèle existante et potentiel de développement.Le salon dispose de 8 postes de coiffure et de 3 b ...
89 000 €
Landrieux Luxury Immobilier
Commerce à REIMS
Secteur cathedrale centre ville - reims.- immeuble bourgeois de 462m2 + parkings + caves
REIMS
MARNE AGENCE IMMEUBLE BOURGEOIS - SECTEUR CATHEDRALE CENTRE VILLE - REIMS.Opportunité unique ! Situé en plein centre ville de Reims proche de la Cathédrale, ce magnifique immeuble bourgeois de sta ...
1 660 000 €
Marne Agence
Photo 1 - Commerce à REIMS
Commerce 300 m² à Reims
REIMS
Iad France - Julien Pepe ([Coordonnées masquées]) vous propose : Fonds de commerce d'un bar à tapas musical à ReimsSitué dans un emplacement à seulement 10 min du centre ville, ce fonds de co ...
151 000 €
iad France
Commerce à REIMS
Fonds de commerce – Bar Licence IV - PMU
REIMS
À céder fonds de commerce de bar - PMU avec Licence IV, exploité dans un cadre simple et efficace, idéal pour une reprise rapide. L'établissement propose une salle de 42 places assises sur e ...
69 900 €
KELLER WILLIAMS GRAND CRU
Commerce à REIMS
Investissement retail reims - enseignes nationales - 8% de rentabilité
REIMS
Opportunité à saisir : ensemble commercial d'environ 2 000 m² situé sur un emplacement stratégique à Reims. - Locataires nationaux en place - Revenus locatifs sécurisés - Actif clé en main – ...
4 000 000 €
Commerce à REIMS
Fonds de commerce Bar Restaurant hypercentre Reims
REIMS
Ce fonds de commerce d'environ 90m² bénéficie d'un emplacement stratégique dans un secteur dynamique proche Cathédrale de Reims - Affaire saine et renommée, bénéficiant d'une exce ...
209 000 €
LES CLEFS DE L'IMMOBILIER Gueux
Commerce à REIMS
Saint remi - esplanade flechambault
REIMS
SAINT REMI - ESPLANADE FLECHAMBAULT A VENDRE LOCAL COMMERCIAL de 69 m2 et avec un sous-sol de 47 m2 TRES BELLE VISIBILITE. Local lumineux, 2 entrées possibles, climatisation réversible, fibre. ...
172 000 €
L'Adresse - Dreux Immobilier
Photo 1 - Commerce à REIMS
Commerce 70 m² à Reims
REIMS
Venez découvrir ce salon de coiffure en Hyper centre de Reims.Possibilité de modification d'activité Ce salon moderne et épuré se compose de 5 postes de coiffure, 2 postes de shampooing, un l ...
73 000 €
Safti
Commerce à REIMS
Local d'activité Reims 638,25 m2
REIMS
A Vendre Local d'activité Reims 638,25 m2 à Reims Surface : 216,99m² loi carrez Surface total: 638,25m² Référence du bien : 2970 Taxe Foncière : 4300 euros Prix du bien : 530 000 euros Ho ...
530 000 €
L'ATELIER IMMO Reims
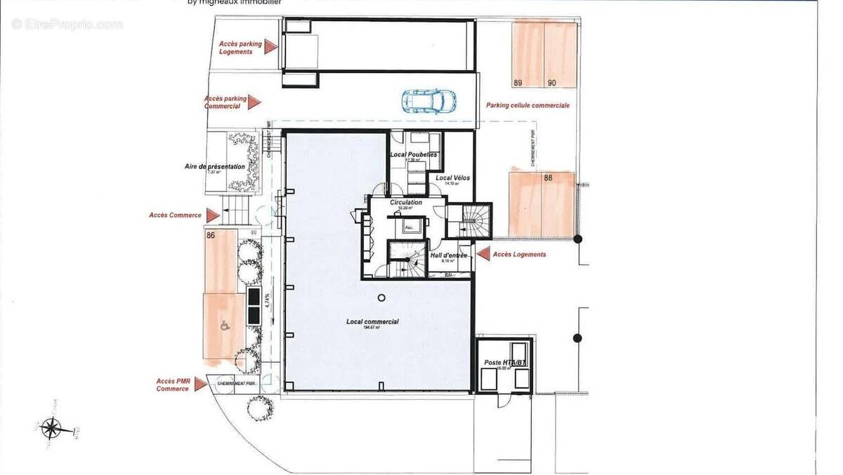
Photo 1 - Commerce à REIMS
Commerce 194 m² à Reims
REIMS
Iad France - Alexandra Mautrait ([Coordonnées masquées]) vous propose : À VENDRE - LOCAL COMMERCIAL - REIMS Idéalement situé sur un axe passant de Reims, avenue d'Épernay, découvrez ce local ...
600 000 €
iad France
Commerce à REIMS
À vendre - local professionnel à amenager en bureau - rue des moissons
REIMS
ascenseur
A VENDRE - LOCAL PROFESSIONNEL A AMENAGER EN BUREAU - RUE DES MOISSONS Emplacement recherché pour ce local professionnel vendu sous forme de plateau à aménager au sein d'un immeuble ancien ré ...
113 000 €
 LES CLEFS DE L'IMMOBILIER Reims Buirette
Commerce à REIMS
Proche de REIMS (51) - Très belle affaire de motoculture - Excellente notoriété
REIMS
parking
Créée il y a près de 40 ans, cette très belle affaire représente toutes les meilleures marques du secteur : Husqvarna, Stihl, Honda, ... Elle dispose d'un beau local commercial avec grandes v ...
145 600 €
Capifrance
Bar licence 4, PMU
REIMS
Au coeur du quartier Clairmarais, un magasin à usage de café bar PMU , une pièce, cuisine et cave. Licence 4. ,( possibilité petite restauration) loyer 1500 Euros. N'hésitez pas a me contac ...
69 900 €
L'ATELIER IMMO Reims
Commerce à REIMS
Café - Hotel - Restaurant
REIMS
Dans la région du Grand Est, en plein coeur de cette ville du champagne, pour sa belle Cathédrale reconnue pour le sacre des plus grands Rois de France. La vente d'un fonds de commer ...
143 000 €
Casarèse
Commerce à REIMS
Vente Bureau-local Reims(51100) 109 000ᅵ
REIMS
Local commercial tabac a vendre - fond de commerce + appartement prochainement rénové de type 3 à louer situé à 2 pas de l'hyper centre et des commerces, local commercial avec vitrine, ainsi ...
109 000 €
ARTHURIMMO.COM REIMS CENTRE
Commerce à REIMS
Local professionnel 79 m² PMR / ERP Saint-Remi
REIMS
parkingascenseur
Situé rue Simon, au coeur du quartier Saint-Remi à Reims, le local bénéficie d'un environnement urbain recherché, à proximité immédiate du centre-ville. Le secteur se caractérise par une fort ...
214 000 €
L'ATELIER IMMO Reims
Commerce à REIMS
Café - Hotel - Restaurant
REIMS
Dans le berceau de la capitale officieuse productrice de champagne de la région du Grand Est ,ville de la cité des sacres, où a été baptisé Clovis par St Rémi et un grand nombre de Rois Carolingie ...
220 000 €
Casarèse
Commerce à REIMS
Photo - Vidéo
REIMS
Dans la région du grand est, commune attenante à une grande ville du berceau du champagne, la vente d 'un fonds de commerce qui se caractérise essentiellement très renodans l'activité ...
50 000 €
Casarèse
Commerce à REIMS
Fonds de commerce local 200 m2
REIMS
Situé dans le secteur dynamique de Murigny, à Reims, ce fonds de commerce bénéficie d’un emplacement attractif au cœur d’une zone commerçante.Ce local commercial d’une surface d’environ 200 m2 se ...
263 000 €
Landrieux Luxury Immobilier
Commerce à REIMS
Local professionnel d 'environ 157 m2 en hyper centre de reims
REIMS
Idéalement situé dans un secteur très recherché en centre ville de Reims, au second étage d'un immeuble haussmanien de caractère avec ascenseur, ce plateau de 157 m2 actuellement occupé par d ...
561 750 €
DKER IMMOBILIER
Commerce à REIMS
REIMS - Local commercial 194 m2
REIMS
parking
A vendre, local commercial neuf d'environ 194 m², idéalement situé au 138B avenue d'Épernay, au sein de la résidence Auteuil, sur l'Hippodrome de Reims. Ce local bénéficie d'un ...
600 000 €
 LES CLEFS DE L'IMMOBILIER Reims Buirette
Commerce à REIMS
À vendre murs et fonds : hôtel bureau design – une adresse atypique aux portes de reims
REIMS
Localisation Premium : Accès direct aux flux autoroutiers majeurs et proximité immédiate du centre-ville de Reims (Cathédrale, Maisons de Champagne). Devenez le propriétaire d'un établissemen ...
3 024 000 €
Capifrance
Photo 1 - Commerce à REIMS
Commerce 638 m² à Reims
REIMS
Situé à 5 minutes du centre-ville de Reims, ce vaste local commercial bénéficie d'un emplacement stratégique sur une rue passante, offrant une excellente visibilité grâce à sa grande vitrine ...
534 000 €
Safti
Commerce à REIMS
Vente Bureau-local Reims(51100) 229 900ᅵ
REIMS
Local commercial prêt-à-porter reims saint rémi, sur l'esplanade fléchambault, un local commercial d'une superficie totale de 249m2, comprenant deux entrées, une coté esplanade l'au ...
229 900 €
ARTHURIMMO.COM REIMS CENTRE
Commerce à REIMS
Local commercial en rdc - centre ville
REIMS
Imaginez un lieu où votre activité professionnelle prend vie à proximité des quartiers prisés du centre-ville de Reims. Dès votre arrivée, vous serez séduit par ses multiples entrées et son accès ...
235 400 €
Commerce à REIMS
REIMS Local professionnel
REIMS
balcon/terrasse
Situé dans une rue calme du secteur Orgeval, RESET, est un local professionnel d’environ 200 m2 qui offre une opportunité rare : celle de concevoir un lieu entièrement à votre image. Volumes géné ...
118 800 €
Commerce à REIMS
Commerce 412 m² à Reims
REIMS
NOUVEAUTE IMMODEX/ EXCLUSIVITE/ FONDS DE COMMERCE/ HYPER CENTRE ( PLACE DE L'HOTEL DE VILLE)/ 412m². Rare opportunité: Fonds de commerce de restaurant situé à deux pas de la Mairie, emplacem ...
2 310 000 €
AGENCE IMMODEX
Commerce à REIMS
Fonds de commerce Pâtisserie - Chocolaterie
REIMS
Établissement reconnu bénéficiant d’une clientèle fidèle et d’une notoriété locale installée, situé sur un axe passant au sein d’un environnement commerçant dynamique avec stationnements à proximi ...
258 000 €
DKER IMMOBILIER
Photo 1 - Commerce à REIMS
Commerce 76 m² à Reims
REIMS
Restaurant clé en main, idéal première affaire. Vous rêvez de vous lancer à deux dans une première aventure entrepreneuriale, concrète, locale et porteuse de sens ? Ce restaurant est une base sain ...
89 600 €
Safti
Commerce à REIMS
Local commercial Reims 74 m2
REIMS
Local commercial à vendre Venez découvrir ce local de 63 m² composé d'un grand espace d'accueil avec vitrine, deux bureaux fermés, Wc et debarras. Situé sur un boulevard à fort passa ...
186 900 €
ORPI VENTEOULOCATION REIMS
51543106a.jpg - Commerce à REIMS
Commerce 75 m² à Reims
REIMS
LOCAL COMMERCIAL :Local commercial d'environ 75m² avec sanitaires, une réserve en sous-sol Un parking en sous-sol LOYER et CHARGES de IMMEUBLE/ENTREPOT :Pour l'ensemble : - Charges : ...
367 500 €
HAPPART IMMOBILIER
Commerce à REIMS
Vente murs et fonds hotel de renom 4 etoiles region champagne
REIMS
Belle affaire en constante progression depuis son rachat par les propriétaires actuels. Dossier sur demande après signature engagement de confidentialité. Les informations sur les risques auxquels ...
5 900 000 €
Capifrance
Commerce à REIMS
Reims - local commercial - 41 m2
REIMS
ascenseur
Situé au début de l'avenue de Laon, dans une résidence récente un local commercial comprenant un grand espace de bureau, un sanitaire complet et une belle vitrine. Faibles charges de copropr ...
132 500 €
ERA AVENUE DE LAON
Commerce à REIMS
À vendre - cabinet medical - centre ville de reims
REIMS
À vendre, cabinet médical sous forme de parts sociales. Le prix de vente correspond à l'achat de 22000 euros de parts sociales et de 44000 euros de compte courant d'associé. Les parts so ...
71 000 €
Signature L'agence Immobilière
Commerce à REIMS
Fonds de commerce - Boulangerie Pâtisserie
REIMS
DKER Business vous propose un fonds de commerce de boulangerie-pâtisserie à vendre situé dans un quartier dynamique et en pleine expansion de Reims. Ce commerce bénéficie d’une excellente réputati ...
145 800 €
DKER IMMOBILIER
Photo 1 - Commerce à REIMS
Commerce 15 m² à Reims
REIMS
Iad France - Julien Pepe ([Coordonnées masquées]) vous propose : À vendre - Kiosque à Pizzas en activité (fonds de commerce) Opportunité à saisir ! Vente d'un kiosque à pizzas idéalement situ ...
162 000 €
iad France
Commerce à REIMS
A vendre En exclusivité - Fonds de commerce COIFFURE REIMS 90 m2
REIMS
Vous êtes coiffeur/se ou dans le domaine de la beauté? Inutile de louer un local,de faire des travaux et d'équiper votre futur salon. Nous vous proposons de vous installer directement dans ce ...
40 000 €
KELLER WILLIAMS GRAND CRU
Commerce à REIMS
Centre ville 90 m2 et 90 m2 sous sol
REIMS
Quartier moissons. Local professionnel au rez de chaussée d'environ 90 m2 + sous sol de 90 m2 également.. Idéal profession libérale pour bureaux et local de stockage en dessous. Avocats , ...
205 000 €
BSK Immobilier
Commerce à REIMS
Salon de coiffure a vendre - secteur actif
REIMS
balcon/terrasse
Venez découvrir ce salon de coiffure secteur Avenue de Laon/St-Thomas entièrement refait et aux normes PMR. Ce salon comprend 6 postes de coiffage et 2 postes shampooing, un vestiaire, un laborat ...
30 000 €
NESTENN REIMS LAON
Commerce à REIMS
Local commercial Reims 3 pièces 65.03m2 - Salon de coiffure
REIMS
A vendre, local commercial de 65.03 m² situé au rez-de-chaussée d'une rue passante à REIMS. Ce bien comprend 3 pièces dont une cuisine indépendante aménagée et équipée. Il bénéficie d'u ...
178 000 €
NESTENN REIMS LAON
Commerce à REIMS
Restaurant multi-activités 974 m2 à fort potentiel Reims
REIMS
DKER Business vous propose en exclusivité ce fonds de commerce rare à fort potentiel, situé dans une commune dynamique de la métropole rémoise.Un concept en trois pôles :- Brasserie : cuisine mais ...
535 000 €
DKER IMMOBILIER
Photo 1 - Commerce à REIMS
Commerce 170 m² à Reims
REIMS
Iad France - Marie-Antoinette Itier-Nunes ([Coordonnées masquées]) vous propose : À VENDRE - MURS COMMERCIAUX + POTENTIEL HABITATION - REIMS, PLACE LUTON Emplacement de choix sur la très dynamique ...
405 000 €
iad France
Photo 1 - Commerce à REIMS
Commerce 1 m² à Reims
REIMS
Iad France - Claire Del Din ([Coordonnées masquées]) vous propose : À VENDRE - ENTREPRISE DE CHAUFFAGE & CLIMATISATION secteur REIMS et alentours. Zone géographique attractive avec forte deman ...
239 000 €
iad France
Photo 1 - Commerce à REIMS
Commerce 63 m² à Reims
REIMS
Iad France - Jonathan Déchoquet ([Coordonnées masquées]) vous propose : Fond de commerce de salon de coiffure de 63 m² environ, situé sur la commune de Taissy, sur un axe passant. Le salon est équ ...
54 500 €
iad France
Commerce à REIMS
Fonds de Commerce Restaurant - Centre Ville
REIMS
DKER Immobilier vous propose la vente d’un fonds de commerce de restaurant idéalement situé en plein cœur de Reims. Cet établissement bénéficie d’une solide réputation, d’une clientèle fidèle et d ...
321 000 €
DKER IMMOBILIER
Commerce à REIMS
Domaine hôtelier 21 chambres à vendre près de Reims (51)
REIMS
jardinpiscineaccès handicapé
Domaine hôtelier clé en main à 30 min de Reims, 21 chambres, restaurant 120 couverts, piscine couverte, spa, salles de réception. Prix négociable. DOMAINE HÔTELIER CLÉ EN MAIN — 30 MINUTES DE ...
1 130 000 €
Propriétés Clovis

Achat commerce dans les villes à proximité

Tinqueux Saint-Brice-Courcelles Betheny Cormontreuil Thillois Taissy Nogent-L'abbesse Muizon Chigny-Les-Roses Hermonville