Bénéficiez des services de nos partenaires locaux soigneusement sélectionnés
pour vous accompagner dans votre parcours d'achat immobilier

Appartement 69m² à paris 17e arrondissement

— Paris-17e 75017 —
945 000 €
69 m²
3 pièces

Nos partenaires locaux
Appartement coup de coeur doté de 16,39 m² de balcons filants et offrant une vue exceptionnelle sur les toits parisiens

Idéalement situé dans le très prisé quartier des Batignolles, rue Lemercier, au 8? et dernier étage d'un immeuble avec ascenseur, cet appartement unique, baigné de lumière, se distingue par ses trois balcons ouvrant sur un panorama remarquable des monuments emblématiques de Paris.
Grâce à ses deux accès indépendants, son agencement présente une grande souplesse et peut évoluer selon vos besoins.

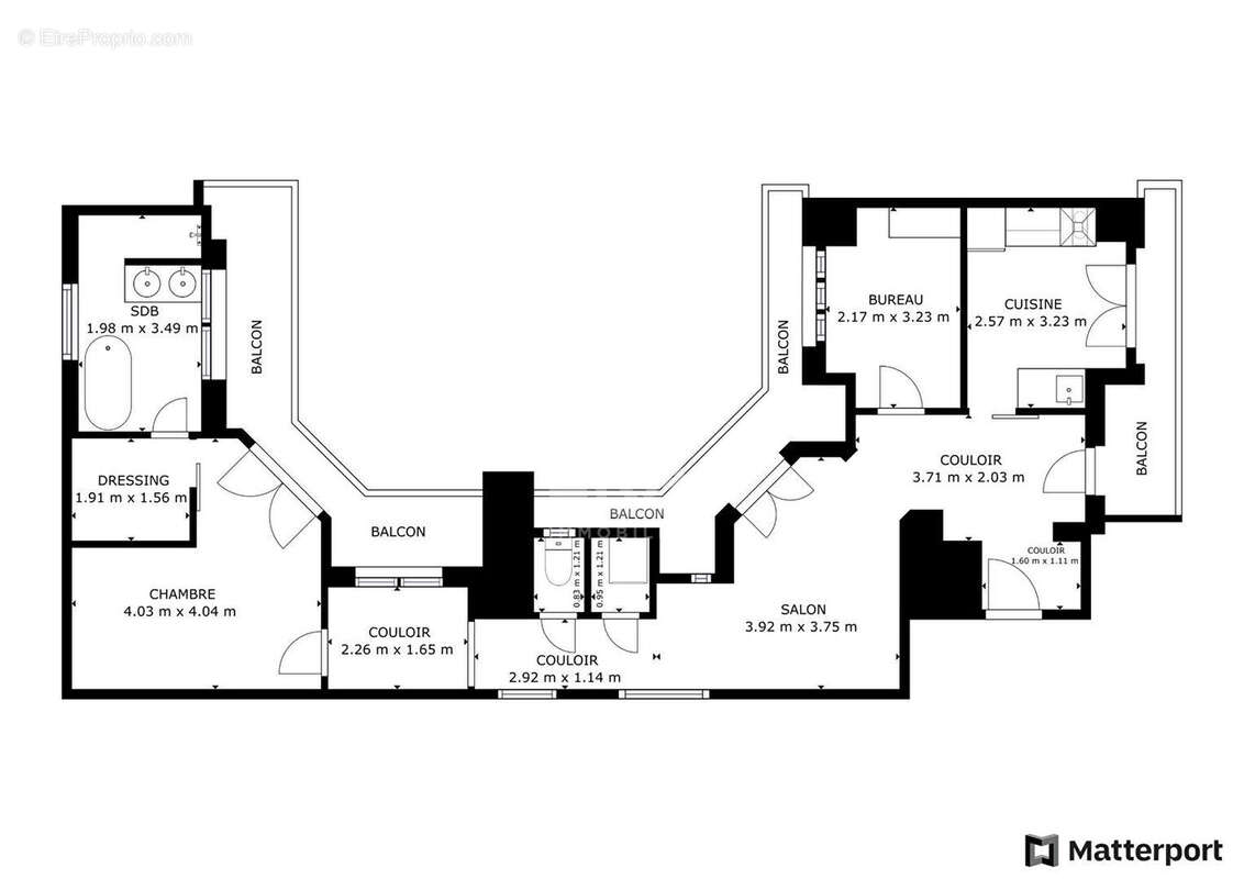
Le bien s'organise autour d'un séjour/entrée de 22,40 m² donnant directement sur les balcons, d'une cuisine indépendante aménagée et équipée de 7,63 m², d'un espace pouvant servir de coin nuit ou de bureau de 6,45 m², ainsi que d'une chambre de 11,75 m² dotée d'un dressing de 2,97 m² et bénéficiant elle aussi d'un accès au balcon.
Vous profiterez également d'une salle d'eau de 6,37 m² comprenant à la fois douche et baignoire, d'un WC indépendant et d'une buanderie avec emplacement pour machine à laver.
Les trois balcons ? 3,58 m², 5,18 m² et 7,63 m² ? accessibles depuis l'entrée, la cuisine, le séjour et la chambre, dévoilent un horizon entièrement dégagé et une vue à 180° sur les toits et les monuments parisiens.
Une cave en sous-sol vient parfaire l'ensemble et offre un espace de rangement supplémentaire.

Chauffage et eau chaude collectifs au gaz.
DPE : G, avec une consommation énergétique réelle faible.
Taxe foncière : 750 €
Charges de copropriété : 2 820 € / an

Profitant d'une triple exposition Ouest / Nord-Ouest / Nord-Est, l'appartement jouit d'une luminosité optimale du matin au soir, renforcée par ses vues totalement dégagées.

Dans ce secteur extrêmement recherché, ce bien aux prestations soignées séduit par la qualité des matériaux, ses trois balcons et son panorama spectaculaire sur les toits et les monuments de Paris.

Autant de caractéristiques qui font de cet appartement rare une véritable pépite au coeur du quartier emblématique des Batignolles.


Contactez nous ERA Batignolles 97bis rue Legendre. Tél [Coordonnées masquées] / [Coordonnées masquées] / mail: [Coordonnées masquées]
L'Etat des Risques et Pollution peut être consulté sur https://www.georisques.gouv.fr
Voir plus

Référence: 4508
DPE
A
B
C
D
E
F
G
GES
A
B
C
D
E
F
G

Prêt immobilier

Vous souhaitez connaître votre capacité d’emprunt et trouver le meilleur crédit immobilier ?
Réaliser une simulation gratuite

Appartement à PARIS-17E
Appartement à PARIS-17E
Appartement à PARIS-17E
Appartement à PARIS-17E
Appartement à PARIS-17E
Appartement à PARIS-17E
Appartement à PARIS-17E
Appartement à PARIS-17E
Appartement à PARIS-17E
Appartement à PARIS-17E
Appartement à PARIS-17E
Appartement à PARIS-17E
Appartement à PARIS-17E
Appartement à PARIS-17E
Appartement à PARIS-17E
Appartement à PARIS-17E
Appartement à PARIS-17E
Ce site est protégé par reCAPTCHA la Politique de confidentialité et les Conditions d’utilisation de Google s’appliquent.
Obtenir un prêt immobilier au meilleur taux ?

En poursuivant votre navigation sans modifier vos paramètres, vous acceptez l'utilisation de cookies susceptibles de réaliser des statistiques de visite. Cliquez ici pour plus d'informations