Appartement 3 chambres a 100 m de la plage

— Saint-Georges-De-Didonne 17110 —
288 750 €
68 m²
4 pièces
balcon/terrasse

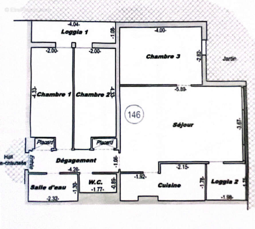
SAINT-GEORGES-DE-DIDONNE (17) - Emplacement privilégié ! Au rez-de-chaussée d'une résidence sécurisée, cet appartement de 68 m2 habitables offre un accès immédiat à la plage de Saint-Georges-de-Didonne. Il se situe à seulement quelques pas du marché et des commerces. Beau séjour, lumineux, avec accès sur une première loggia. Cuisine séparée. Trois chambres dont deux qui s'ouvrent sur une seconde loggia. Dégagement avec rangements intégrés. Salle d'eau et wc séparés. Atouts supplémentaires : une grande cave d'environ 22 m2. Solarium et espace commun en toit terrasse ainsi qu'un local à vélos dans la copropriété. Belle opportunité à découvrir sans tarder ! Un lot principal et un lot annexe pour la cave. Copropriét de 61 lots d'habitation au total, ne faisant l'objet d'aucune procédure en cours. Charges d'environ 117 € par mois.
Les informations sur les risques auxquels ce bien est exposé sont disponibles sur le site Géorisques : www.georisques.gouv.fr
Voir plus

Référence: 6421
Bien en copropriété. Nombre de lots : 61.
Barème des honoraires
DPE
A
B
C
D
E
F
G
GES
A
B
C
D
E
F
G

Prêt immobilier

Vous souhaitez connaître votre capacité d’emprunt et trouver le meilleur crédit immobilier ?
Réaliser une simulation gratuite

Appartement à SAINT-GEORGES-DE-DIDONNE
Appartement à SAINT-GEORGES-DE-DIDONNE
Appartement à SAINT-GEORGES-DE-DIDONNE
Appartement à SAINT-GEORGES-DE-DIDONNE
Appartement à SAINT-GEORGES-DE-DIDONNE
Appartement à SAINT-GEORGES-DE-DIDONNE
Appartement à SAINT-GEORGES-DE-DIDONNE
Appartement à SAINT-GEORGES-DE-DIDONNE
Appartement à SAINT-GEORGES-DE-DIDONNE
Appartement à SAINT-GEORGES-DE-DIDONNE
Appartement à SAINT-GEORGES-DE-DIDONNE
Appartement à SAINT-GEORGES-DE-DIDONNE
Appartement à SAINT-GEORGES-DE-DIDONNE
Appartement à SAINT-GEORGES-DE-DIDONNE
Appartement à SAINT-GEORGES-DE-DIDONNE
Appartement à SAINT-GEORGES-DE-DIDONNE
Appartement à SAINT-GEORGES-DE-DIDONNE
Appartement à SAINT-GEORGES-DE-DIDONNE
Appartement à SAINT-GEORGES-DE-DIDONNE
Appartement à SAINT-GEORGES-DE-DIDONNE
Appartement à SAINT-GEORGES-DE-DIDONNE
Appartement à SAINT-GEORGES-DE-DIDONNE
Appartement à SAINT-GEORGES-DE-DIDONNE
Appartement à SAINT-GEORGES-DE-DIDONNE
Appartement à SAINT-GEORGES-DE-DIDONNE
Ce site est protégé par reCAPTCHA la Politique de confidentialité et les Conditions d’utilisation de Google s’appliquent.
Obtenir un prêt immobilier au meilleur taux ?

En poursuivant votre navigation sans modifier vos paramètres, vous acceptez l'utilisation de cookies susceptibles de réaliser des statistiques de visite. Cliquez ici pour plus d'informations