Bénéficiez des services de nos partenaires locaux soigneusement sélectionnés
pour vous accompagner dans votre parcours d'achat immobilier

Chartres (28) - vente local commercial

— Chartres 28000 —
1 434 069 €
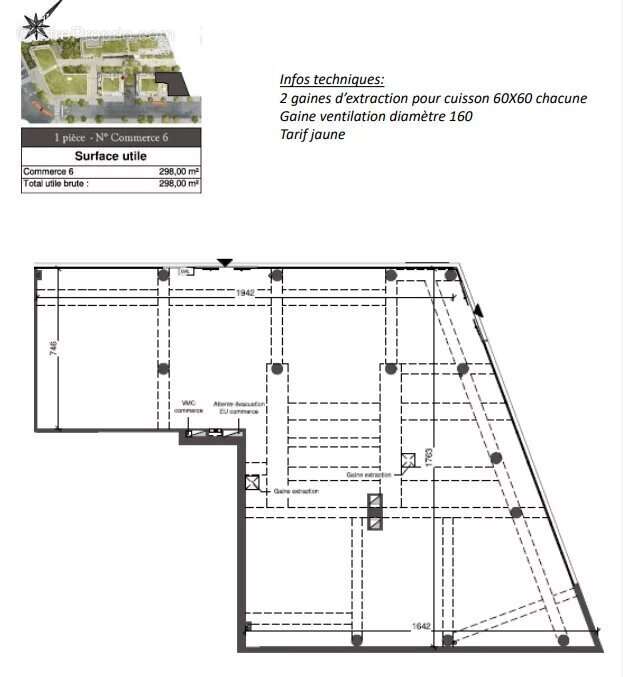
298 m²

Nos partenaires locaux
Situé à Chartres, au sein de la résidence Le Parvis des Lumières, ce spacieux local commercial de 298 m² bénéficie d’un emplacement stratégique au cœur d’un programme neuf comprenant 70 logements, 99 chambres d’hôtel, 2 000 m² de bureaux, ainsi que des commerces déjà occupés par une maison médicale et un cabinet dentaire.

Le local, implanté en rez-de-chaussée, bénéficie d’une large façade, garantissant une excellente visibilité auprès du flux piétonnier et des usagers du quartier. Grâce à sa configuration et à son positionnement, il constitue un emplacement idéal pour une enseigne souhaitant s’implanter durablement dans un secteur en plein essor.

Particulièrement adapté aux activités de restauration ou aux métiers de bouche, il est déjà équipé de deux gaines d’extraction pour cuisson (60 × 60) ainsi que d’une gaine de ventilation de 160 de diamètre, permettant une installation technique facilitée et conforme aux exigences de ce type d’activités.

La livraison est prévue pour le 2ᵉ trimestre 2026.
Voir plus

Référence: 86505414

Prêt immobilier

Vous souhaitez connaître votre capacité d’emprunt et trouver le meilleur crédit immobilier ?
Réaliser une simulation gratuite

Commerce à CHARTRES
Commerce à CHARTRES
Commerce à CHARTRES
Commerce à CHARTRES
Ce site est protégé par reCAPTCHA la Politique de confidentialité et les Conditions d’utilisation de Google s’appliquent.
Obtenir un prêt immobilier au meilleur taux ?

En poursuivant votre navigation sans modifier vos paramètres, vous acceptez l'utilisation de cookies susceptibles de réaliser des statistiques de visite. Cliquez ici pour plus d'informations