Bénéficiez des services de nos partenaires locaux soigneusement sélectionnés
pour vous accompagner dans votre parcours d'achat immobilier

Ravissante Villa provençale dans le Domaine de Saint Pierre à Tourtour

— Tourtour 83690 —
495 000 €
110 m² / 2 610 m²
4 pièces
parkingbalcon/terrassejardinpiscine

Nos partenaires locaux
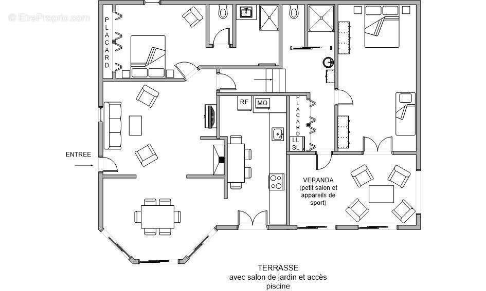
Construite en 2003 et entièrement rénovée en 2024, cette charmante villa nichée dans la fôret du Domaine de Saint Pierre à Tourtour allie le caractère provençale à des prestations modernes et des finitions contemporaines. C'est un lieu idéal pour se ressourcer, offrant calme, confort et de beaux espaces extérieurs pour profiter du climat du Sud de la France.
Cette villa, d'une superfie de 110m2 sur un terrain arboré de 2600m2, comprend deux chambres, chacune avec sa propre salle d'eau et WC privatifs. Le salon et la salle à manger sont lumineux et accueillants, tandis que la cuisine indépendante est entièrement équipée. Elle bénéficie également de la climatisation et d'une cheminée pour un confort optimal en toute saison. Vous pourrez profiter d'une piscine chauffée au sel de 10 x 4 mètres avec une belle plage de piscine et d'une terrasse d'été couverte pour des repas et moments de détente à l'ombre.
Vous pourrez également profiter des équipements communs au domaine tel que la piscine et les terrains de Tennis. De plus, une fosse septique aux normes garantit votre tranquilité.
Ce bien est un véritable havre de paix, parfait comme résidence secondaire pour des séjours familiaux ou en investissement locatifs. Pour plus d'informations ou pour organiser une visite, n'hésitez pas à nous contacter !
Voir plus

Référence: 2092
Bien en copropriété. Nombre de lots : 3. Charges de copropriété : 1200 €.
Honoraires à la charge du vendeur.
Barème des honoraires
DPE
A
B
C
D
E
F
G
GES
A
B
C
D
E
F
G
Maison à TOURTOUR
Maison à TOURTOUR
Maison à TOURTOUR
Maison à TOURTOUR
Maison à TOURTOUR
Maison à TOURTOUR
Maison à TOURTOUR
Maison à TOURTOUR
Maison à TOURTOUR
Maison à TOURTOUR
Maison à TOURTOUR
Maison à TOURTOUR
Maison à TOURTOUR
Maison à TOURTOUR
Maison à TOURTOUR
Maison à TOURTOUR
Maison à TOURTOUR
Maison à TOURTOUR
Maison à TOURTOUR
Maison à TOURTOUR
Maison à TOURTOUR
Maison à TOURTOUR
Géorisques

Les informations sur les risques auxquels ce bien est exposé sont disponibles sur le site Géorisques : www.georisques.gouv.fr

Ce site est protégé par hCaptcha Politique de confidentialité et Conditions d’utilisation s’appliquent.

En poursuivant votre navigation sans modifier vos paramètres, vous acceptez l'utilisation de cookies susceptibles de réaliser des statistiques de visite. Cliquez ici pour plus d'informations