Bénéficiez des services de nos partenaires locaux soigneusement sélectionnés
pour vous accompagner dans votre parcours d'achat immobilier

Paris xvii - 2 pièces 31.56 m²

— Paris-17e 75017 —
299 999 €
32 m²
2 pièces

Nos partenaires locaux
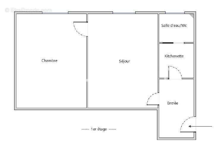
Rue Lantiez Paris XVII - 2 pièces 31.56 m² au sol, 31,01m² carrez est composé d'une entrée, une cuisine pouvant s'ouvrir sur un séjour ensoleillé, une chambre, une salle d'eau avec WC. Tous les travaux dans la copropriété on été votés et payés, (ravalement, parties communes, toiture...)L'appartement se situe dans une rue calme très bien desservie, aux pieds des commerces. Une cave complète ce bien. Copropriété de 24 lots (Pas de procédure en cours). Charges annuelles : 1520 euros.
Voir plus

Référence: 99999
Bien en copropriété. Nombre de lots : 24. Charges de copropriété : 1520 €.
Honoraires à la charge du vendeur.
Barème des honoraires
DPE
A
B
C
D
E
F
G
GES
A
B
C
D
E
F
G

Prêt immobilier

Vous souhaitez connaître votre capacité d’emprunt et trouver le meilleur crédit immobilier ?
Réaliser une simulation gratuite

Appartement à PARIS-17E
Appartement à PARIS-17E
Appartement à PARIS-17E
Appartement à PARIS-17E
Appartement à PARIS-17E
Appartement à PARIS-17E
Appartement à PARIS-17E
Appartement à PARIS-17E
Ce site est protégé par reCAPTCHA la Politique de confidentialité et les Conditions d’utilisation de Google s’appliquent.
Obtenir un prêt immobilier au meilleur taux ?

En poursuivant votre navigation sans modifier vos paramètres, vous acceptez l'utilisation de cookies susceptibles de réaliser des statistiques de visite. Cliquez ici pour plus d'informations