Bénéficiez des services de nos partenaires locaux soigneusement sélectionnés
pour vous accompagner dans votre parcours d'achat immobilier

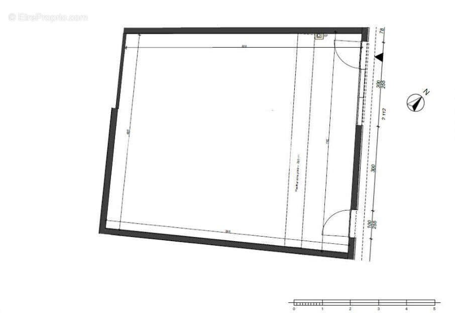
Local commercial ou professionnel 63 m² - avrille

— Avrille 49240 —
149 750 €
63 m²
parking

Nos partenaires locaux
A VENDRE : Local commercial ou professionnel d'environ 63 m², idéalement situé à Avrillé sur l'axe principal et commerçant. Stationnement gratuit. Desservi par le tramway, arrêt à seulement 100 mètres. Environnement varié et dynamique : lycée professionnel de plus de 600 élèves, école primaire, résidence étudiante, quartier résidentiel et locatif... Les plus du local : - Surface : 63 m² livré brut de béton, fluides en attente - 4 mètres de linéaires vitrines en verre sécurité - 8 mètres de devanture - Accès PMR - Un parking privatif en sous-sol Toutes activités possibles, sauf nuisances. Idéal pour toute profession libérale : orthophoniste, pédicure-podologue, diététicien, psychologue... Ou activité tertiaire : assurance, courtier, agence intérim... Conditions financières : - Prix de vente net vendeur : 141.000 euros HT (+ TVA à 20%), correspondant à 2.238 euros HT /m² (parking inclus) - Prix de vente HAI : 149.750 euros HT (+ TVA à 20%) Honoraires à la charge de l'acquéreur : 8.750 euros HT soit 10.500 euros TTC Depuis 2010, Laforêt Angers élue n° 1 de la confiance des Français est votre agence immobilière référente pour la vente, l'achat, l'estimation, la location et la gestion locative de maisons, appartements, terrains et immeubles sur Angers et sa région. Où intervenons-nous ? Angers intra-muros : Centre-Ville, Lafayette-Éblé, Madeleine-Saint-Léonard, Roseraie, Deux-Croix Banchais, Montplaisir, Saint-Serge-Ney-Chalouère, Doutre, Hauts-de-Saint-Aubin, Camus, Belle-Beille, Saint-Jacques-Nazareth, Lac de Maine. Première couronne : Beaucouzé, Bouchemaine, Saint-Léger-de-Linières, Avrillé, Montreuil-Juigné, Écouflant, Saint-Sylvain-d'Anjou, Saint-Barthélemy-d'Anjou, Trélazé, Les Ponts-de-Cé. Communes voisines : Briollay, Feneu, Le Lion-d'Angers, Tiercé, Seiches-sur-le-Loir, Durtal, Le Plessis-Grammoire, Loire-Authion, Mûrs-Érigné, Sainte-Melaine-sur-Aubance, Brissac-Loire-Aubance, Saint-Martin-du-Fouilloux, Saint-Lambert-la-Potherie. Pourquoi choisir Laforêt ? Réseau national de +700 agences, visibilité maximale sur plus de 50 portails immobiliers. Outils exclusifs Favoriz, estimation en ligne, visites virtuelles 360°, home-staging virtuel, signature électronique et suivi en temps réel. Une équipe locale formée en transaction, location et gestion, prête à booster votre projet immobilier et votre patrimoine locatif en toute sécurité et sérénité. Contactez-nous dès aujourd'hui pour profiter de notre expertise locale et concrétiser votre projet immobilier sur l'Anjou ! (6.21 % honoraires TTC à la charge de l'acquéreur.) Nicolas ROLAND (EI) Agent Commercial - Numéro RSAC : 808811848 - ANGERS.
Voir plus

Référence: 1440
Honoraires d'agence de 6.21% à la charge de l'acquéreur
Barème des honoraires

Prêt immobilier

Vous souhaitez connaître votre capacité d’emprunt et trouver le meilleur crédit immobilier ?
Réaliser une simulation gratuite

Commerce à AVRILLE
Commerce à AVRILLE
Commerce à AVRILLE
Commerce à AVRILLE
Commerce à AVRILLE
Ce site est protégé par reCAPTCHA la Politique de confidentialité et les Conditions d’utilisation de Google s’appliquent.
Obtenir un prêt immobilier au meilleur taux ?

En poursuivant votre navigation sans modifier vos paramètres, vous acceptez l'utilisation de cookies susceptibles de réaliser des statistiques de visite. Cliquez ici pour plus d'informations