T2 neuf chenove 37,50 m2 séjour + cuis. équipée / balcon pkg s/sol - libre * frais de notaires offerts *

— Chenove 21300 —
160 000 €
37 m²
2 pièces
parkingbalcon/terrasse

# Rare, LIVRAISON IMMEDIATE # # Idéal 1er Achat ou Investisseur (meublé) #
89, Avenue Roland CARRAZ 21300 CHENOVE.
Appartement T2 Neuf sur CHENOVE / Carraz dotés de BELLES PRESTATIONS avec une cuisine équipée + un balcon + un Parking en sous-sol.
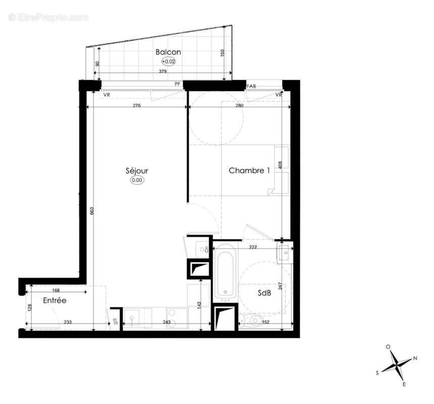
Appartement T2 NEUF de 37,43 m2 au 4ème étage dans une Résidence fermée avec ascenseur comprenant :
Une entrée carrelée (tableau électrique) 2,15 m2, Un séjour carrelé (programmation et fibre) avec une cuisine équipée neuve (meubles + plaque de cuisson induction, four électrique, hotte d'aspiration + emplacement lave vaisselle) de 19 m2 (placard chaudière individuelle gaz) avec une porte fenêtre (volet électrique) donnant sur un balcon OUEST de 5 m2 (dalles sur plots, point lumineux, robinet d'eau et prise électrique),
Une chambre parquet stratifié de 11,42 m2 OUEST (grande fenêtre, volet électrique, fibre), une salle de bains avec w-c carrelée faïencée de 4,94 m2 (baignoire, sèche serviettes gaz + meuble sous vasque et glace), un emplacement lave linge ;
Ainsi qu'un Parking privatif au sous-sol. (accès avec Bip)
Classe énergie C : - classe climat : C (en date du 30/06/2025). Montant estimé des dépenses annuelles d'énergie pour un usage standard : entre 400 € et 600 € par an - Prix moyens des énergies indexés au (abonnements compris) (copropriété de 89 lots principaux) (pas de procédure en cours)
Charges annuelles : 800 €
* Garanties Légales incluses, liées à l'acquisition de ce logement = de Parfait Achèvement, Biennale de fonctionnement et Décennale de structure) *
Les informations sur les risques auxquels ce bien est exposé sont disponibles sur le site Géorisques
# FRAIS DE NOTAIRE = OFFERTS Financement = par P.T.Z (suivant conditions éligibilité)
Exonération partielle 2 ans de Taxe Foncière (environ 765 €)
* Chauffage individuelle gaz (thermostat), volets électriques (télécommandes), menuiseries PVC double vitrages *
PRIX : 160 000 € t.t.c. (frais de Notaire offerts)
- pour tout renseignement, prendre rendez-vous, pour visiter - * LIBRE *
Philippe AUBERT
Agent immobilier
[Coordonnées masquées]
www.accession-immo.com
Voir plus

Barème des honoraires
DPE
A
B
C
D
E
F
G
GES
A
B
C
D
E
F
G

Prêt immobilier

Vous souhaitez connaître votre capacité d’emprunt et trouver le meilleur crédit immobilier ?
Réaliser une simulation gratuite

Appartement à CHENOVE
Appartement à CHENOVE
Appartement à CHENOVE
Appartement à CHENOVE
Appartement à CHENOVE
Appartement à CHENOVE
Appartement à CHENOVE
Appartement à CHENOVE
Appartement à CHENOVE
Appartement à CHENOVE
Appartement à CHENOVE
Appartement à CHENOVE
Ce site est protégé par reCAPTCHA la Politique de confidentialité et les Conditions d’utilisation de Google s’appliquent.
Obtenir un prêt immobilier au meilleur taux ?

En poursuivant votre navigation sans modifier vos paramètres, vous acceptez l'utilisation de cookies susceptibles de réaliser des statistiques de visite. Cliquez ici pour plus d'informations