Bénéficiez des services de nos partenaires locaux soigneusement sélectionnés
pour vous accompagner dans votre parcours d'achat immobilier

Investissement locatif – verrieres en anjou – résidence affaires cap west verrières-en-anjou – 6.3% de rentabilité

— Pellouailles-Les-Vignes 49112 —
95 000 €
40 m²
2 pièces
parking

Nos partenaires locaux
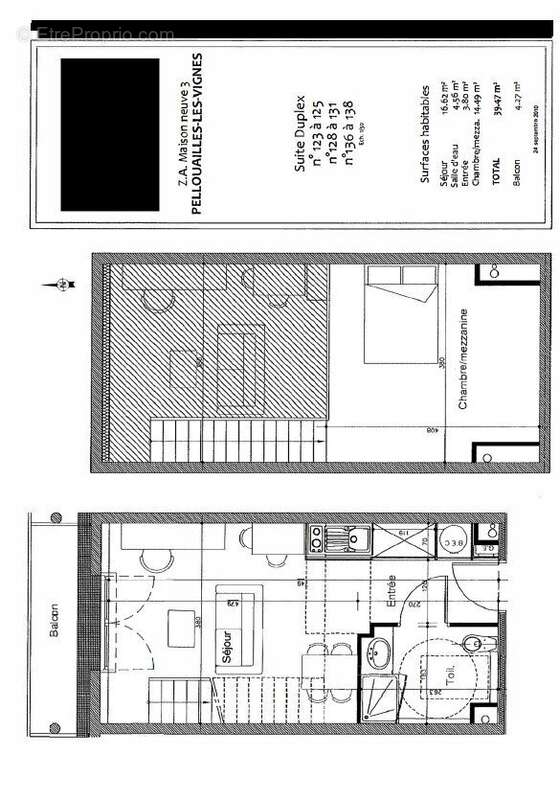
Réalisez un investissement locatif sécurisé en résidence d'Affaires sans souci de gestion : le produit idéal pour vous constituer un patrimoine immobilier tout en bénéficiant d'une rentabilité sécurisée par des loyers stables, dès l'acquisition. • Loyer annuel HT : 5 988 € • Rentabilité : 6.3 % • Gestionnaire : Cap West Vous bénéficiez du statut fiscal LMNP amortissable, permettant une exonération d'impôt sur vos revenus locatifs. Le bien est exploité par un gestionnaire professionnel (CAP WEST), engagé par un bail commercial, vous assurant le versement des loyers dès l'acquisition, que le logement soit loué ou non. Description du bien : Cet appartement T2 en duplex situé au 1er étage offre une disposition optimisée : une entrée avec placards et kitchenette, un séjour, une salle d'eau avec wc, une chambre en mezzanine, ainsi que la jouissance privative et exclusive d'un balcon. Un emplacement de stationnement situé à l'extérieur. À propos de la résidence : La résidence CAP WEST Verrières-en-Anjou est une résidence d'Affaires, idéalement située à Verrières-en-Anjou (Pellouailles-les-Vignes), à moins de 15 minutes du centre-ville d'Angers et à 5 minutes du Parc Expo, proche de la sortie A11 et de la halte TER du Vieux-Briollay, ce qui constitue un atout majeur. Elle accueille une clientèle de professionnels et propose des hébergements meublés avec services para-hôteliers. Implantée dans un cadre verdoyant, la résidence propose un ensemble de services complets : accueil, connexion Wi-Fi, blanchisserie/laverie, salle de remise en forme, parking extérieur sécurisé, sécurité 24h/24. Elle comprend environ 90 logements en copropriété. À propos du gestionnaire occupant : CAP WEST, filiale du groupe West Finance, gestionnaire de plus de 40 résidences de tourisme et d'affaires en France, bénéficie de 25 ans d'expérience et d'une expertise reconnue dans la gestion de résidences de services. Le coin du LMNP - Clément Courant agent basé à NEUILLY SUR SEINE - [Coordonnées masquées] - Plus d'informations sur [Coordonnées masquées] réf. 26346 Bien soumis au statut juridique de la Copropriété. Charges annuelles de copropriété (Montant moyen annuel quote-part du budget prévisionnel vendeur) : 908 €. Pas de procédure en cours. Prix TTC et Honoraires à charge vendeur TTC
Voir plus

Référence: 26346
Bien en copropriété. Charges de copropriété : 908 €.
Honoraires à la charge du vendeur.
Barème des honoraires

Prêt immobilier

Vous souhaitez connaître votre capacité d’emprunt et trouver le meilleur crédit immobilier ?
Réaliser une simulation gratuite

Appartement à PELLOUAILLES-LES-VIGNES
Appartement à PELLOUAILLES-LES-VIGNES
Ce site est protégé par reCAPTCHA la Politique de confidentialité et les Conditions d’utilisation de Google s’appliquent.
Obtenir un prêt immobilier au meilleur taux ?

En poursuivant votre navigation sans modifier vos paramètres, vous acceptez l'utilisation de cookies susceptibles de réaliser des statistiques de visite. Cliquez ici pour plus d'informations