Bénéficiez des services de nos partenaires locaux soigneusement sélectionnés
pour vous accompagner dans votre parcours d'achat immobilier

Bobigny (93) - coeur de ville - appartement 2 pieces - 52m2 - etage eleve - lumineux - construction 1970 -

— Bobigny 93000 —
169 500 €
52 m²
2 pièces
ascenseur

Nos partenaires locaux
BOBIGNY (93) - COEUR DE VILLE - APPARTEMENT 2 PIECES - 52M2 - ETAGE ELEVE - LUMINEUX - CONSTRUCTION 1970 -

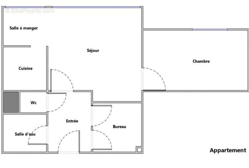
Appartement 52 m² à Bobigny – Très bien desservi par les transports

Situé au cœur de Bobigny, à proximité immédiate des commerces, des écoles et des transports, cet appartement de 52 m² (Loi Carrez) dans une construction de 1970 offre un cadre de vie pratique et confortable. Aucun travaux n'est à prévoir : vous pourrez emménager ou le mettre en location immédiatement.

Au 9ᵉ étage d'une résidence de 18 étages, il bénéficie d'une belle luminosité. L'entrée dessert une pièce de vie agréable avec cuisine ouverte, idéale pour partager des moments conviviaux. L'appartement comprend également une chambre, un bureau, une salle d'eau fonctionnelle et un WC séparé, offrant tout le confort nécessaire pour une vie quotidienne sereine.

Sa situation géographique privilégiée permet un accès très facile aux transports : Bobigny – Pablo Picasso, grand pôle de transport, est à seulement 200 m, avec le métro ligne 5 et le tram T1, facilitant tous vos déplacements.

Vous pourrez profiter de tous les services de proximité tout en restant au calme au sein d'un immeuble sécurisé. Ce bien
constitue une excellente opportunité pour un premier achat ou un investissement sûr, alliant confort, praticité et luminosité.

"Certaines photos sont des projections d'aménagement (home staging virtuel) et sont non contractuelles."

Nombre de lots de la copropriété: 1, Montant moyen de la quote-part annuelle de charges (budget prévisionnel) (Chauffage collectif, eau chaude et droide, deux ascenseurs, entretien des parties communes) : 2400€ soit 200€ par mois. Les honoraires sont à la charge du vendeur.
Les informations sur les risques auxquels ce bien est exposé sont disponibles sur le site Géorisques : www. georisques. gouv. fr.

Contactez Christel BERNARDINI Entrepreneur Individuel, Agent commercial OptimHome (RSAC N°891 820 615 Greffe de NANTERRE) [Coordonnées masquées] (réf. 598449 )
Voir plus

Référence: 830038272785
Bien en copropriété. Charges de copropriété : 200 €.
Honoraires à la charge du vendeur.
DPE
A
B
C
D
E
F
G
GES
A
B
C
D
E
F
G
Appartement à BOBIGNY
Appartement à BOBIGNY
Appartement à BOBIGNY
Appartement à BOBIGNY
Appartement à BOBIGNY
Appartement à BOBIGNY
Appartement à BOBIGNY
Appartement à BOBIGNY
Appartement à BOBIGNY
Appartement à BOBIGNY
Géorisques

Les informations sur les risques auxquels ce bien est exposé sont disponibles sur le site Géorisques : www.georisques.gouv.fr

Ce site est protégé par hCaptcha Politique de confidentialité et Conditions d’utilisation s’appliquent.

En poursuivant votre navigation sans modifier vos paramètres, vous acceptez l'utilisation de cookies susceptibles de réaliser des statistiques de visite. Cliquez ici pour plus d'informations