Maison provençale au coeur de la nature

— La Garde-Freinet 83680 —
790 000 €
264 m² / 2 807 m²
7 pièces
parkingjardinpiscine

Découvrez cette charmante maison provençale en pierre, dotée de belles terrasses. La propriété comprend également une maison d'amis, un carport, une piscine, un jardin d'herbes aromatiques et même un poulailler.

Nichée dans un joli hameau à seulement 8 minutes de Grimaud, sur la commune de La Garde Freinet, cette maison est entourée par la nature, au cœur des superbes forêts des Maures.

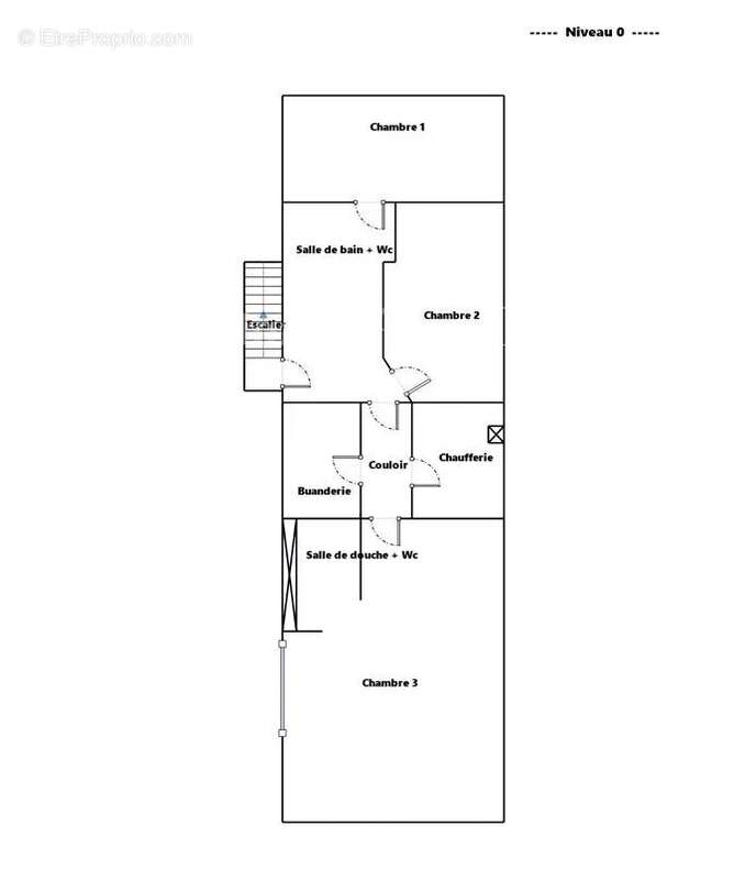
La maison principale dispose d'une entrée accueillante, d'un vaste salon avec cheminée qui s'ouvre sur une terrasse en bois, et d'une cuisine ouverte, neuve et entièrement équipée. Elle comprend aussi une suite parentale avec salle de bain, une seconde chambre et des toilettes séparées. À l'arrière, accessible depuis la cuisine, une deuxième terrasse conviviale avec un coin barbecue vous attend.

Au rez-de-jardin, vous trouverez une grande chambre avec sa salle de douche, une autre chambre, un bureau et une buanderie avec une petite cuisine.

Devant la maison, une piscine entourée de plages vous invite à la détente, ainsi qu'un abri voiture pour deux véhicules.

La maison d'amis récente se situe sur une seconde parcelle partiellement boisée, entourée d'un vaste terrain avec un poulailler et un jardin d'herbes. Elle se compose d'un espace de vie avec coin cuisine, ouvrant sur une belle terrasse, d'une chambre et d'une salle de bain.

Cette propriété est un véritable havre de paix en pleine nature, à seulement 4 km de Grimaud. Un bien unique offrant de nombreuses possibilités d'aménagement, dans un cadre idyllique.
Voir plus

Référence: 86134244
Barème des honoraires
DPE
A
B
C
D
E
F
G
GES
A
B
C
D
E
F
G

Prêt immobilier

Vous souhaitez connaître votre capacité d’emprunt et trouver le meilleur crédit immobilier ?
Réaliser une simulation gratuite

Maison à LA GARDE-FREINET
Maison à LA GARDE-FREINET
Maison à LA GARDE-FREINET
Maison à LA GARDE-FREINET
Maison à LA GARDE-FREINET
Maison à LA GARDE-FREINET
Maison à LA GARDE-FREINET
Maison à LA GARDE-FREINET
Maison à LA GARDE-FREINET
Maison à LA GARDE-FREINET
Ce site est protégé par reCAPTCHA la Politique de confidentialité et les Conditions d’utilisation de Google s’appliquent.
Obtenir un prêt immobilier au meilleur taux ?

En poursuivant votre navigation sans modifier vos paramètres, vous acceptez l'utilisation de cookies susceptibles de réaliser des statistiques de visite. Cliquez ici pour plus d'informations