Bénéficiez des services de nos partenaires locaux soigneusement sélectionnés
pour vous accompagner dans votre parcours d'achat immobilier

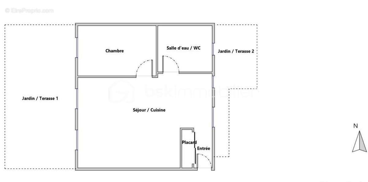
Superbe f2 (possibilité f3) 49m2 en rez de jardin sans vis a vis et tres lumineux constr. 2009

— Rosny-Sous-Bois 93110 —
200 000 €
49 m²
2 pièces
parkingbalcon/terrasse

Nos partenaires locaux
OPPORTUNITE!

A Rosny-sous-Bois, accès direct à l'autoroute et également à 15 minutes (1,1km) à pieds du Métro 11 Rosny-Bois Perrier, dans une résidence de 2009, découvrez cet appartement type F2 de 49m2 sans aucune perte d'espace, lumineux et avec deux places de parking! >>> Gros point fort, l'agencement permet de créer une deuxième chambre pour en faire un ap^partement de type F3!

Appartement en rez-de-jardin d'une petite copropriété au calme et à taille humaine, jardin sans vis-à-vis, appartement traversant conférant une excellente luminosité.
Une entrée avec placard, une pièce de vie spacieuse de 28m2 avec cuisine ouverte (qui restera équipée), une chambre de 11.5m2 et une salle d'eau spacieuse de 6m2.
La pièce de vie s'ouvre sur une terrasse de 15m2 et un jardinet de 57m2.

Points forts:
Luminosité
Calme
Petite copropriété
DPE D
Aucune perte d'espace
Possibilité de faire un F3

Deux places de parking complètent ce bien.

Charges de copropriétés: 1912 euros
Chauffage individuel électrique

Cette annonce référence 315247 vous est présentée par votre agent commercial BSK Immobilier CYRILLE MADAVANE (EI) immatriculé au RSAC de NANTEUIL-LES-MEAUX (77100) sous le numéro 88174449400033.

Prix du bien : 200 000,00 €
Les honoraires d'agence sont à la charge du vendeur.

A propos de la copropriété :
Pas de procédure en cours.
Nombre de lots : 3
Charges prévisionnelles annuelles : 1 756,00 €

A propos des performances énergétiques :
Date de réalisation du diagnostic énergétique : 15/12/2025
Score DPE : 239 kWhEP/m²/an
Score GES : 9 kgepCO2/m²/an
Montant estimé des dépenses annuelles d'énergie pour un usage standard : entre 1130.00 € et 1580.00 € par an. Prix moyens des énergies indexés sur l'année 2021 (abonnements compris).

Les informations sur les risques auxquels ce bien est exposé sont disponibles sur le site Géorisques : www.georisques.gouv.fr
Voir plus

Référence: 315247
Bien en copropriété. Nombre de lots : 3. Charges de copropriété : 146 €.
Honoraires à la charge du vendeur.
DPE
A
B
C
D
E
F
G
GES
A
B
C
D
E
F
G
Appartement à ROSNY-SOUS-BOIS
Appartement à ROSNY-SOUS-BOIS
Appartement à ROSNY-SOUS-BOIS
Appartement à ROSNY-SOUS-BOIS
Appartement à ROSNY-SOUS-BOIS
Appartement à ROSNY-SOUS-BOIS
Appartement à ROSNY-SOUS-BOIS
Appartement à ROSNY-SOUS-BOIS
Appartement à ROSNY-SOUS-BOIS
Appartement à ROSNY-SOUS-BOIS
Appartement à ROSNY-SOUS-BOIS
Appartement à ROSNY-SOUS-BOIS
Géorisques

Les informations sur les risques auxquels ce bien est exposé sont disponibles sur le site Géorisques : www.georisques.gouv.fr

Ce site est protégé par hCaptcha Politique de confidentialité et Conditions d’utilisation s’appliquent.

En poursuivant votre navigation sans modifier vos paramètres, vous acceptez l'utilisation de cookies susceptibles de réaliser des statistiques de visite. Cliquez ici pour plus d'informations