Bénéficiez des services de nos partenaires locaux soigneusement sélectionnés
pour vous accompagner dans votre parcours d'achat immobilier

Maison 187m² à beaucouze

— Beaucouze 49070 —
785 000 €
187 m² / 631 m²
9 pièces
parkingbalcon/terrassejardinpiscine

Nos partenaires locaux
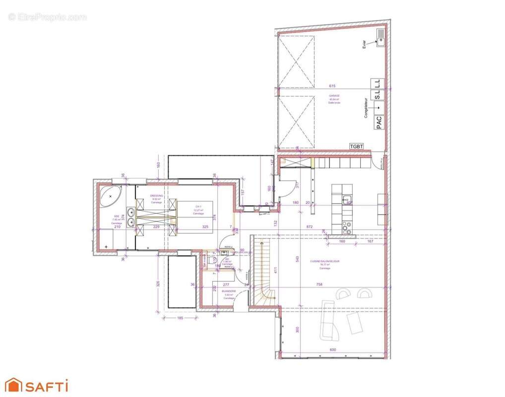
À 10 minutes D'Angers, ce bien contemporain de 187 m², incarne une réalisation d'exception aux prestations premium. L'entrée avec placard donne le ton et mène à une pièce de vie de plus de 75 m², exposée plein sud, baignée de lumière et ouverte sur une cuisine aménagée et entièrement équipée. le RDC accueille aussi une superbe suite parentale de plus de 28 m², comprenant baignoire, douche et dressings, ainsi qu'une buanderie et un double garage de 45 m².
À l'étage, trois chambres, un bureau, une salle d'eau communicante et une seconde salle de bains assurent un confort optimal.
Située sur un terrain clos et arboré de 631 m², la propriété bénéficie de huisseries TECKNAL, d'une PAC d'une climatisation, d'une aspiration centralisée et d'un ballon d'eau chaude alimenté par panneaux photovoltaïques. Une pergola bioclimatique récente vient sublimer la terrasse.
Située à Beaucouzé, secteur où il fait bon vivre pour la qualité de ses commerces, transports, infrastructures sportives.

Les informations sur les risques auxquels ce bien est exposé sont disponibles sur le site Géorisques : www.georisques.gouv.fr
Prix de vente honoraires d'agence inclus : 785 000 ¤
Prix de vente hors honoraires d'agence : 760 000 ¤
Honoraires charge acquéreur : 25 000 ¤ soit 3,29 % TTC de la valeur du bien hors honoraires

Contactez votre conseiller SAFTI : Quentin LE CAM, Tél. : [Coordonnées masquées], E-mail : [Coordonnées masquées] - EI - Agent commercial immatriculé au RSAC de ANGERS sous le numéro 835 406 059.
Informations LOI ALUR :
Honoraires : 3.29 % TTC charge acquéreur.
Prix hors honoraires : 760 000 ¤. (gedeon_26118_32358736)
Voir plus

Référence: 1578893
Honoraires d'agence de 3.29% à la charge de l'acquéreur
Barème des honoraires
DPE
A
B
C
D
E
F
G
GES
A
B
C
D
E
F
G

Prêt immobilier

Vous souhaitez connaître votre capacité d’emprunt et trouver le meilleur crédit immobilier ?
Réaliser une simulation gratuite

Photo 1 - Maison à BEAUCOUZE
Photo 1
Photo 2 - Maison à BEAUCOUZE
Photo 2
Photo 3 - Maison à BEAUCOUZE
Photo 3
Photo 4 - Maison à BEAUCOUZE
Photo 4
Photo 5 - Maison à BEAUCOUZE
Photo 5
Photo 6 - Maison à BEAUCOUZE
Photo 6
Photo 7 - Maison à BEAUCOUZE
Photo 7
Photo 8 - Maison à BEAUCOUZE
Photo 8
Photo 9 - Maison à BEAUCOUZE
Photo 9
Ce site est protégé par reCAPTCHA la Politique de confidentialité et les Conditions d’utilisation de Google s’appliquent.
Obtenir un prêt immobilier au meilleur taux ?

En poursuivant votre navigation sans modifier vos paramètres, vous acceptez l'utilisation de cookies susceptibles de réaliser des statistiques de visite. Cliquez ici pour plus d'informations