Bénéficiez des services de nos partenaires locaux soigneusement sélectionnés
pour vous accompagner dans votre parcours d'achat immobilier

Appartement NEUF T3 au Rez-de-chaussée à Pont-Aven

— Pont-Aven 29930 —
262 500 €
73 m²
3 pièces
parkingbalcon/terrasse

Nos partenaires locaux
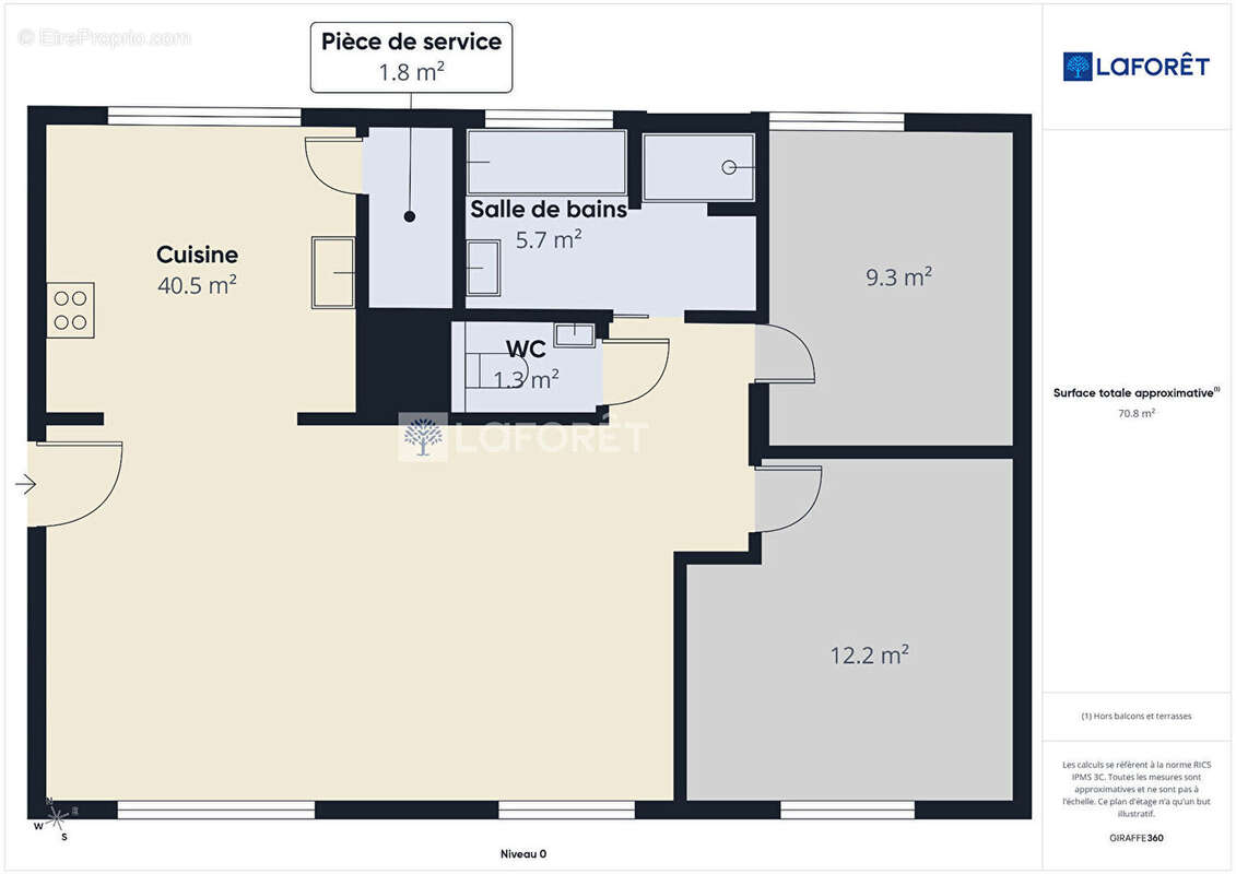
PONT-AVEN - Au sein d'une résidence entièrement réhabilitée, découvrez cet appartement T3 de 73,77m2 en rez-de-chaussée aux volumes généreux et à la distribution fonctionnelle, offrant un excellent confort de vie. Il se compose d'un vaste salon-séjour-cuisine de près de 33 m², lumineux grâce à ses ouvertures et son exposition, de deux chambres, d'une salle de bains avec baignoire et douche à l'italienne, d'un WC séparé, ainsi que d'un cellier apportant un espace de rangement appréciable. L'ensemble des sols est en carrelage, garantissant durabilité et facilité d'entretien. L'appartement dispose d'une cuisine aménagée et équipée ( four, hotte, plaque à induction). Une terrasse de 101m2 partagée entre 4 appartements avec une vue à 180 degrés est également à disposition. Le bien bénéficie aussi d'une cave, idéale pour le stockage. Le bâtiment a fait l'objet d'une rénovation complète : -couverture -menuiseries -isolation -sols et équipements Aucun travaux à prévoir, prestations actuelles et soignées. Stationnement et équipements : 2 places de parking privatives Pré-équipement pour borne de recharge de véhicule électrique (installation possible) Garage en supplément, une option rare et recherchée. Résidence sécurisée. Environnement calme. Un bien idéal pour une résidence principale, un investissement patrimonial, ou un projet de vie recherchant espace, luminosité et confort moderne. Situation agréable à Pont-Aven, dans un secteur recherché. Visite virtuelle sur demande Copropriété de 24 lots - dont 14 lots habitation. Charges annuelles : 600 euros. Grégory Janssens (EI) Agent Commercial - Numéro RSAC : 508 424 066 - Quimper.
Voir plus

Référence: 14180
Bien en copropriété. Nombre de lots : 24. Charges de copropriété : 600 €.
Honoraires d'agence de 5% à la charge de l'acquéreur
Barème des honoraires
DPE
A
B
C
D
E
F
G
GES
A
B
C
D
E
F
G
Appartement à PONT-AVEN
Appartement à PONT-AVEN
Appartement à PONT-AVEN
Appartement à PONT-AVEN
Appartement à PONT-AVEN
Appartement à PONT-AVEN
Appartement à PONT-AVEN
Appartement à PONT-AVEN
Appartement à PONT-AVEN
Appartement à PONT-AVEN
Appartement à PONT-AVEN
Appartement à PONT-AVEN
Géorisques

Les informations sur les risques auxquels ce bien est exposé sont disponibles sur le site Géorisques : www.georisques.gouv.fr

Ce site est protégé par hCaptcha Politique de confidentialité et Conditions d’utilisation s’appliquent.