Bénéficiez des services de nos partenaires locaux soigneusement sélectionnés
pour vous accompagner dans votre parcours d'achat immobilier

Immeuble de rapport / 8 appartements / ultra centre valence

— Valence 26000 —
699 000 €
329 m² / 172 m²
jardin

Nos partenaires locaux
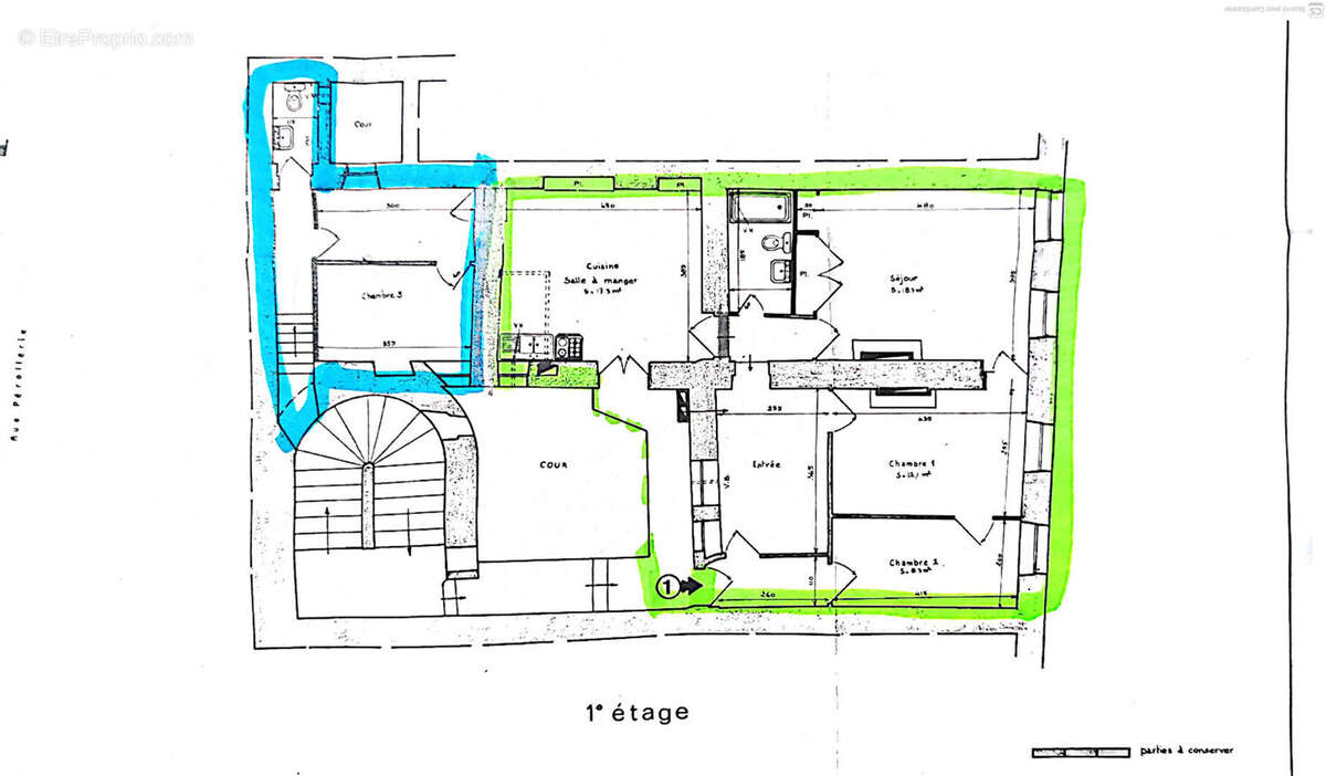
Vos agences "La Carte immobilière" à Saint-Péray et Valence ont plaisir de vous présenter en EXCLUSIVITÉ ce charmant immeuble de rapport dans le centre historique de Valence. Rare à la vente ! Au coeur du centre historique de Valence, dans la vieille ville, immeuble de rapport de caractère datant de la Renaissance (vers 1550), alliant charme de l'ancien et potentiel locatif solide. L'immeuble se compose de 8 logements : - Typologies allant du studio au T3 - 5 logements actuellement loués - 3 logements libres, offrant une opportunité immédiate d'optimisation - 2 logements refaits à neuf très récemment L'ensemble est bien entretenu et présente une belle rentabilité, idéale pour un investisseur souhaitant un actif patrimonial de qualité. - Revenus locatifs : 46 920 euros par an - Emplacement recherché en centre-ville : Immeuble ancien de caractère Mix locatif intéressant Potentiel d'augmentation des loyers sur les lots libres Idéal pour investissement locatif, patrimonial ou optimisation fiscale. Dossier complet, visites et informations complémentaires sur demande. --> Estimez GRATUITEMENT et en quelques minutes votre bien en lige sur notre site internet : https://www.la-carte-immobiliere.fr/content/9/estimation_en_ligne.html Présenté par Ezéchiel NODIN
Voir plus

Référence: 0210
Honoraires à la charge du vendeur.
Barème des honoraires
DPE
A
B
C
D
E
F
G
GES
A
B
C
D
E
F
G

Prêt immobilier

Vous souhaitez connaître votre capacité d’emprunt et trouver le meilleur crédit immobilier ?
Réaliser une simulation gratuite

Appartement à VALENCE
Appartement à VALENCE
Appartement à VALENCE
Appartement à VALENCE
Appartement à VALENCE
Appartement à VALENCE
Appartement à VALENCE
Appartement à VALENCE
Appartement à VALENCE
Appartement à VALENCE
Appartement à VALENCE
Appartement à VALENCE
Appartement à VALENCE
Appartement à VALENCE
Appartement à VALENCE
Appartement à VALENCE
Appartement à VALENCE
Appartement à VALENCE
Ce site est protégé par reCAPTCHA la Politique de confidentialité et les Conditions d’utilisation de Google s’appliquent.
Obtenir un prêt immobilier au meilleur taux ?

En poursuivant votre navigation sans modifier vos paramètres, vous acceptez l'utilisation de cookies susceptibles de réaliser des statistiques de visite. Cliquez ici pour plus d'informations