Bénéficiez des services de nos partenaires locaux soigneusement sélectionnés
pour vous accompagner dans votre parcours d'achat immobilier

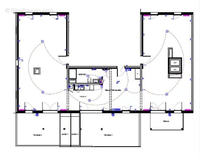
Viilejuif (94) - vente local commercial 171,21 m²

— Villejuif 94800 —
800 000 €
171 m² / 5 m²
parkingbalcon/terrassejardin

Nos partenaires locaux
À Villejuif, commune dynamique et en plein développement aux portes de Paris, le programme Côté Jardin s’inscrit dans un environnement résidentiel qualitatif, alliant modernité, accessibilité et cadre de vie agréable.

Au sein de ce programme récent, ce local professionnel de 171,21 m² offre une belle opportunité d’implantation. Il est livré brut de béton, avec réseaux en attente et vitrines posées, laissant une totale liberté d’aménagement pour des bureaux, des professions libérales ou des activités tertiaires selon la destination autorisée. Les volumes généreux permettent une organisation fonctionnelle et évolutive des espaces.

Deux places de parking privatives en sous-sol sont incluses, apportant un confort appréciable dans ce secteur recherché. Ce local constitue une solution idéale pour une activité souhaitant s’installer durablement dans un programme moderne et attractif à Villejuif.
Voir plus

Référence: 86518776

Prêt immobilier

Vous souhaitez connaître votre capacité d’emprunt et trouver le meilleur crédit immobilier ?
Réaliser une simulation gratuite

Commerce à VILLEJUIF
Commerce à VILLEJUIF
Commerce à VILLEJUIF
Commerce à VILLEJUIF
Ce site est protégé par reCAPTCHA la Politique de confidentialité et les Conditions d’utilisation de Google s’appliquent.
Obtenir un prêt immobilier au meilleur taux ?

En poursuivant votre navigation sans modifier vos paramètres, vous acceptez l'utilisation de cookies susceptibles de réaliser des statistiques de visite. Cliquez ici pour plus d'informations