Bénéficiez des services de nos partenaires locaux soigneusement sélectionnés
pour vous accompagner dans votre parcours d'achat immobilier

Maison à rénover fort potentiel fixem (57570) 234 m2 habitables

— Fixem 57570 —
256 000 €
234 m² / 596 m²
10 pièces
jardin

Nos partenaires locaux
Située dans la commune recherchée de Fixem, à proximité immédiate de la frontière luxembourgeoise, Open Immobilier vous propose cette maison de campagne à rénover, offrant un fort potentiel et de très beaux volumes.
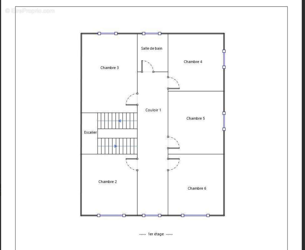
Implantée sur une parcelle de 596 m2, cette propriété développe une surface habitable de 234 m2 et se compose comme suit :
Au rez-de-chaussée et étages :


Une entrée


Une cuisine indépendante


Un salon / salle à manger parqueté


6 chambres parquetées


Une salle de bains


Un WC séparé



Annexes et dépendances :


Grand garage pouvant accueillir 3 véhicules, dépendances à l'arrière


Plusieurs caves


Combles aménageables d’environ 70 m2, offrant un potentiel supplémentaire
Charpente, Tuile, Double vitrage PVC : Trés bon état.


Les atouts du bien :
Environnement calme et verdoyant Volumes généreux Idéal grande famille ou projet de rénovation ambitieux École maternelle et élémentaire à proximité immédiate (environ 100 m) Nombreuses possibilités d’aménagement
Ce bien représente une opportunité rare pour les amateurs de rénovation souhaitant créer une maison unique et personnalisée, dans un cadre de vie paisible.
Prix de vente : 256 000 € - Honoraires à la charge du vendeur.
Les informations sur les risques auxquels ce bien est exposé sont disponibles sur le site :www.georisques.gouv.fr
Renseignements & visites :
Dossier no6995-EC Mandat no6995
Erkut CENGIZ Open Immobilier
06 63 05 54 [Coordonnées masquées]
Voir plus

Référence: 6995
DPE
A
B
C
D
E
F
G
GES
A
B
C
D
E
F
G

Prêt immobilier

Vous souhaitez connaître votre capacité d’emprunt et trouver le meilleur crédit immobilier ?
Réaliser une simulation gratuite

Maison à FIXEM
Maison à FIXEM
Maison à FIXEM
Maison à FIXEM
Maison à FIXEM
Maison à FIXEM
Maison à FIXEM
Maison à FIXEM
Maison à FIXEM
Maison à FIXEM
Ce site est protégé par reCAPTCHA la Politique de confidentialité et les Conditions d’utilisation de Google s’appliquent.
Obtenir un prêt immobilier au meilleur taux ?

En poursuivant votre navigation sans modifier vos paramètres, vous acceptez l'utilisation de cookies susceptibles de réaliser des statistiques de visite. Cliquez ici pour plus d'informations