Bénéficiez des services de nos partenaires locaux soigneusement sélectionnés
pour vous accompagner dans votre parcours d'achat immobilier

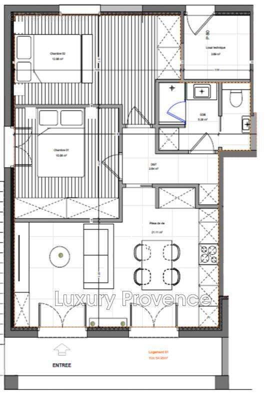
Vente appartement 3 pièce(s)

— Simiane-Collongue 13109 —
250 000 €
60 m²
3 pièces
balcon/terrasse

Nos partenaires locaux
Simiane collongue 13109
Venez découvrir ce charmant T3 de 60m2 au 1er et dernier étage d'une petite copropriété de 4 lots.
Vous y trouverez un vaste séjour ouvert sur la terrasse avec cuisine ouverte, 2 chambres, salle d'eau et un jardin non attenant de 152m2.
Quelques rénovations sont à prévoir. Laissez vous tenter par le potentiel de ce bien coup de coeur.
2 places de parking complètent le bien.
À visiter sans tarder !

Pour plus de renseignement :
Marie Budanic - [Coordonnées masquées]
[Coordonnées masquées]
La présente annonce immobilière a été rédigée sous la responsabilité éditoriale de Marie BUDANIC EI, agent commercial de la SAS Luxury Provence,  immatriculé(e) au RSAC de Marseille sous le numéro 920 957 180, titulaire de la carte de collaborateur pour le compte de la société Luxury Provence CPI131[Coordonnées masquées]0677 délivrée par la CCI de Marseille.
Voir plus

Référence: 889V697A
Honoraires à la charge du vendeur.
DPE
A
B
C
D
E
F
G
GES
A
B
C
D
E
F
G

Prêt immobilier

Vous souhaitez connaître votre capacité d’emprunt et trouver le meilleur crédit immobilier ?
Réaliser une simulation gratuite

Appartement à SIMIANE-COLLONGUE
Appartement à SIMIANE-COLLONGUE
Ce site est protégé par reCAPTCHA la Politique de confidentialité et les Conditions d’utilisation de Google s’appliquent.
Obtenir un prêt immobilier au meilleur taux ?

En poursuivant votre navigation sans modifier vos paramètres, vous acceptez l'utilisation de cookies susceptibles de réaliser des statistiques de visite. Cliquez ici pour plus d'informations