Bénéficiez des services de nos partenaires locaux soigneusement sélectionnés
pour vous accompagner dans votre parcours d'achat immobilier

Maison 193 m² à Ballan-Mire

— Ballan-Mire 37510 —
319 000 €
193 m² / 2 109 m²
8 pièces

Nos partenaires locaux
37510 Ballan-Miré - Grande maison 151 m2 habitables - 193 m2 au sol - Terrain clôturé de 2109 m2 - Sous-sol & garage 120 m2

Louis del Marmol vous propose cette maison composée de la manière suivante :

Au rez-de-chaussée :

- Salon / salle à manger avec cheminée de 48 m²
- Cuisine équipée 15 m2
- Terrasse de 30 m2
- Grand balcon filant faisant l'angle de la maison & exposé Sud- Salle d'eau
- Chambre 1 - 12 m2
- Chambre 2 - 10 m2
- Chambre 3 - 9,50 m2
- Chambre 4 / Bureau - 9,36 m2

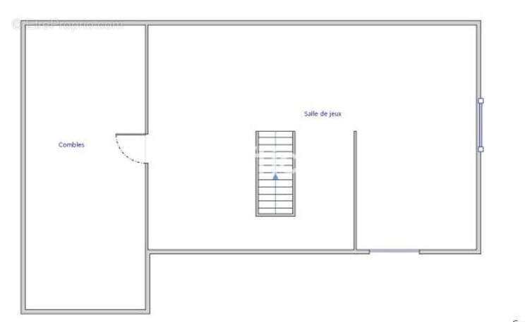
Au 1er étage :

- Une grande chambre / salle de jeux de 62 m2 rénovée avec poutres apparentes & velux

Au sous-sol : Gros potentiel avec surface totale 120 m2

- Une pièce de 12 m² chauffée
- Une 2ème pièce de 8 m2 chauffée
- Une 3ème pièce de 25 m2
- Une 4ème pièce de 21 m2
- Un garage de 60 m²
- WC

Informations complémentaires :

- Arrêt de bus devant la maison : ramassage car scolaire reliant au centre de Ballan (Primaire & Collège). Navettes le matin et le soir.
- Menuiseries récentes, porte d'entrée et baies vitrées remplacées, portail motorisé changé il y a 1 an
- Volets roulants solaires
- Pompe à chaleur Air - Eau (Chauffage de tout le bas) - En haut radiateur à inertie
- Isolation thermique par l'extérieure
- Assainissement individuel aux normes - Fosse sceptique toutes eaux - 3000 L - 44 m2 (8x5,5 m)
- Présence d'un puit (Raccordement à faire avec la pompe déjà existante)
- Ancienne cuve à fuel : dégazage & neutralisation effectués
- Cave de 21 m2
- Fibre a été raccordée dans la maison
- Taxe foncière : 1713 euros

Idéalement situé à Ballan-Miré. A visiter rapidement.
Contactez Louis del Marmol
Les informations sur les risques auxquels ce bien est exposé sont disponibles sur le site Georisque : georisques. gouv. fr
Louis del Marmol - EI - est Agent Commercial mandataire en immobilier, immatriculé au Registre Spécial des Agents Commerciaux du Tribunal de Commerce de Tours sous le n°978474716.
Siège social du mandant : effiCity, 48 avenue de Villiers - 75017 PARIS - Société par Actions Simplifiée, société au capital de 132 373,05 euros, immatriculée au RCS Paris 497 617 746 et titulaire de la Carte professionnelle CPI 75[Coordonnées masquées]02 025 - CCI Paris IDF - Caisse de Garantie : GALIAN Assurances 89 rue de la Boétie 75008 Paris
Voir plus

Référence: 195994
Honoraires d'agence de 4.59% à la charge de l'acquéreur
Barème des honoraires
DPE
A
B
C
D
E
F
G
GES
A
B
C
D
E
F
G
Maison à BALLAN-MIRE
Maison à BALLAN-MIRE
Maison à BALLAN-MIRE
Maison à BALLAN-MIRE
Maison à BALLAN-MIRE
Maison à BALLAN-MIRE
Maison à BALLAN-MIRE
Maison à BALLAN-MIRE
Maison à BALLAN-MIRE
Maison à BALLAN-MIRE
Maison à BALLAN-MIRE
Maison à BALLAN-MIRE
Maison à BALLAN-MIRE
Maison à BALLAN-MIRE
Maison à BALLAN-MIRE
Maison à BALLAN-MIRE
Maison à BALLAN-MIRE
Maison à BALLAN-MIRE
Maison à BALLAN-MIRE
Géorisques

Les informations sur les risques auxquels ce bien est exposé sont disponibles sur le site Géorisques : www.georisques.gouv.fr

Ce site est protégé par hCaptcha Politique de confidentialité et Conditions d’utilisation s’appliquent.

En poursuivant votre navigation sans modifier vos paramètres, vous acceptez l'utilisation de cookies susceptibles de réaliser des statistiques de visite. Cliquez ici pour plus d'informations