Bénéficiez des services de nos partenaires locaux soigneusement sélectionnés
pour vous accompagner dans votre parcours d'achat immobilier

Voir tous les partenaires locaux

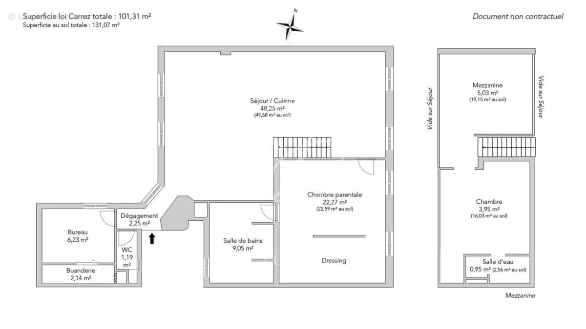
Paris 7e - GROS CAILLOU - Duplex à vendre - 4/5 pièces - 101,31m² Carrez - 131,07m² au sol - 2 chambres - 1 bureau - dernier éta

— Paris-7e 75007 —
1 990 000 €
101 m²
5 pièces
ascenseur

Nos partenaires locaux
Ce magnifique duplex de 101,31m² loi Carrez et 131,07m² au sol, véritable havre de paix, offre un cadre de vie privilégié avec un bel ensoleillement et une vue dégagée sur la tour Eiffel et sur le ciel.

Au dernier étage d'un petit immeuble ancien, très bien entretenu, ce bien comprend une entrée, un séjour traversant est-ouest de 48m², une cuisine ouverte aménagée avec un îlot central et des matériaux nobles, et équipée d’électroménagers Miele, une chambre master avec un vaste dressing, une salle de bains avec douche à l’italienne, baignoire et toilettes. Ce premier niveau comporte également un bureau pouvant devenir une chambre d'amis, une buanderie et des toilettes invités.

Un élégant escalier mène au niveau supérieur pourvu d'une mezzanine ouverte aménagée en bureau agrémenté d'un espace de lecture, une chambre sous les toits avec placard et une salle de douche avec des toilettes.

Ce duplex, situé dans une rue au calme, est accessible par ascenseur jusqu'au quatrième étage puis par un escalier privatif.

Il a bénéficié d’une rénovation par architecte au goût contemporain avec des placards sur mesure et la climatisation dans toutes les pièces.

Une cave complète cette offre à l'emplacement privilégié, tout proche des jardins du Champ de Mars, des quais de Seine et des commerces du quartier Gros Caillou, avec notamment la rue Cler à cinq minutes à pied.

Idéal pied-à-terre ou résidence principale de caractère.
Voir plus

Référence: 3021GREBOL
Barème des honoraires
DPE
A
B
C
D
E
F
G
GES
A
B
C
D
E
F
G
Appartement à PARIS-7E
Appartement à PARIS-7E
Appartement à PARIS-7E
Appartement à PARIS-7E
Appartement à PARIS-7E
Appartement à PARIS-7E
Appartement à PARIS-7E
Appartement à PARIS-7E
Appartement à PARIS-7E
Appartement à PARIS-7E
Appartement à PARIS-7E
Appartement à PARIS-7E
Appartement à PARIS-7E
Géorisques

Les informations sur les risques auxquels ce bien est exposé sont disponibles sur le site Géorisques : www.georisques.gouv.fr

Ce site est protégé par hCaptcha Politique de confidentialité et Conditions d’utilisation s’appliquent.

En poursuivant votre navigation sans modifier vos paramètres, vous acceptez l'utilisation de cookies susceptibles de réaliser des statistiques de visite. Cliquez ici pour plus d'informations