Bénéficiez des services de nos partenaires locaux soigneusement sélectionnés
pour vous accompagner dans votre parcours d'achat immobilier

Corps de Ferme /Quartier LAMBERT

— Castres 81100 —
198 000 €
139 m² / 4 831 m²
7 pièces
parkingjardin

Nos partenaires locaux
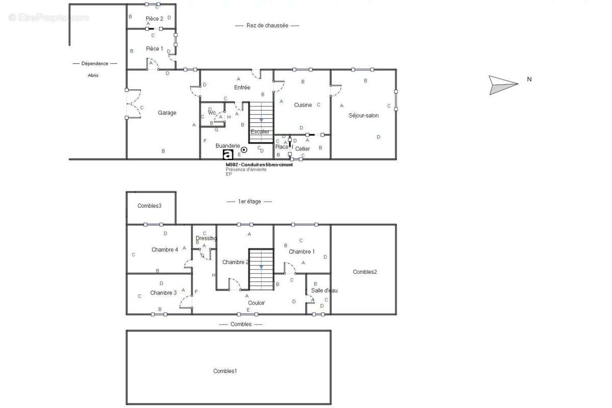
PACFA Immobilier vous propose à la vente en exclusivité un ensemble immobilier rare sur le secteur, idéal pour un artisan, grande famille.

Cet ancien corps de ferme développe environ 140 m² habitables et s’accompagne d’un vaste ensemble de dépendances, constituant un véritable outil de travail ou une opportunité de valorisation.

La partie habitation se compose d’une cuisine indépendante, de 4 chambres et d’une cave, avec la possibilité d’en faire une résidence principale, un logement de fonction ou un bien destiné à la location.

Côté exploitation, vous bénéficiez de volumes particulièrement recherchés avec un hangar de 400 m², un préau ouvert de 100 m² ainsi que deux garages, parfaitement adaptés à une activité artisanale, au stockage de matériel ou de véhicules, voire à un projet de transformation.

L’ensemble est implanté sur un terrain de 4 831 m², offrant une organisation des espaces facilitant l’exploitation, avec une position dominante et une vue dégagée sur Castres, dans un environnement calme tout en restant proche des axes et des commodités.

Ce bien présente un potentiel multiple : activité professionnelle, investissement locatif avec valorisation, ou encore aménagement des dépendances selon votre projet. Des travaux sont à prévoir, constituant un véritable levier de valorisation.

Visite virtuelle disponible sur notre site.
Voir plus

Référence: 4060
Barème des honoraires
DPE
A
B
C
D
E
F
G
Maison à CASTRES
Maison à CASTRES
Maison à CASTRES
Maison à CASTRES
Maison à CASTRES
Maison à CASTRES
Maison à CASTRES
Maison à CASTRES
Maison à CASTRES
Maison à CASTRES
Maison à CASTRES
Maison à CASTRES
Maison à CASTRES
Géorisques

Les informations sur les risques auxquels ce bien est exposé sont disponibles sur le site Géorisques : www.georisques.gouv.fr

Ce site est protégé par hCaptcha Politique de confidentialité et Conditions d’utilisation s’appliquent.

En poursuivant votre navigation sans modifier vos paramètres, vous acceptez l'utilisation de cookies susceptibles de réaliser des statistiques de visite. Cliquez ici pour plus d'informations