Bénéficiez des services de nos partenaires locaux soigneusement sélectionnés
pour vous accompagner dans votre parcours d'achat immobilier

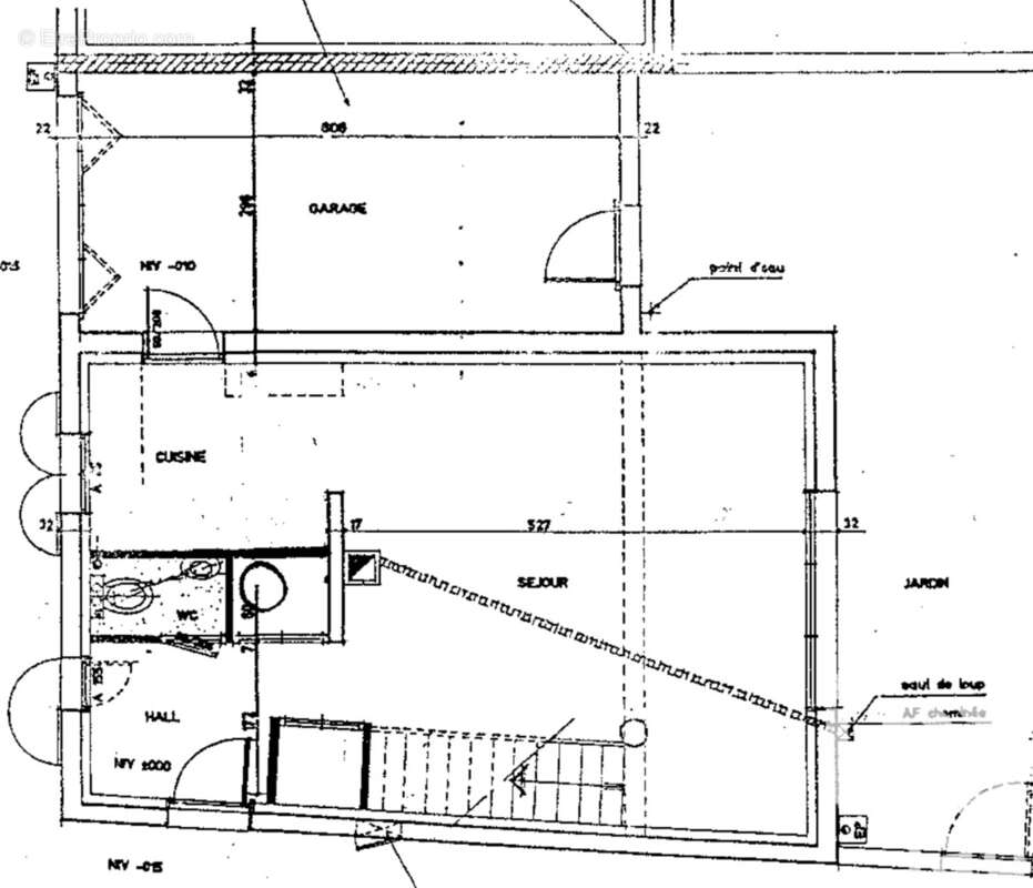
Maison 85 m² à Saint-Martin-De-Re

— Saint-Martin-De-Re 17410 —
772 000 €
85 m² / 122 m²
4 pièces
parkingbalcon/terrassejardin

Nos partenaires locaux
Iad France - Lionel Bercier vous propose : Au cOEur de Saint-Martin-de-Ré Intra-muros ! Cette ravissante maison située dans un quartier prisé de Saint-Martin-de-Ré offre un cadre de vie exceptionnel. Construite en l'an 2000, elle incarne le charme de l'architecture locale. La pièce de vie principale, lumineuse, se compose d'un séjour de 26 m² ouvert sur une cuisine a équipée. Cette configuration moderne et conviviale est parfaite pour partager des moments en famille ou entre amis. La maison dispose de deux chambres (dont une grande chambre double divisible), chacune offrant un espace de vie confortable et intime. Avec 1 salle de bains et 2 toilettes, le confort et l'intimité de chacun sont assurés. Une terrasse de 15 m², orientée plein sud, est idéale pour profiter des journées ensoleillées et des douces soirées d'été. Le jardin arboré de 51 m² apporte une touche de verdure et de tranquillité à cet espace de vie. Pour vos véhicules, un garage individuel est à votre disposition, ainsi qu'une place de parking privative. Idéalement située à seulement 500 mètres du port de Saint-Martin, cette maison bénéficie d'un emplacement privilégié, proche des commerces, des restaurants et des plages. Ne manquez pas l'opportunité de devenir propriétaire à Saint-Martin-de-Ré. Contactez-nous pour organiser une visite dès maintenant ! Honoraires d'agence à la charge du vendeur. Information d'affichage énergétique sur ce bien : classe ENERGIE D indice 231 et classe CLIMAT B indice 7. Les informations sur les risques auxquels ce bien est exposé, y compris l'obligation légale de débroussaillement, sont disponibles sur le site Géorisques : http://www.georisques.gouv.fr.La présente annonce immobilière a été rédigée sous la responsabilité éditoriale de M Lionel Bercier mandataire indépendant en immobilier (sans détention de fonds), agent commercial de la SAS I@D France immatriculé au RSAC de LE ROCHELLE sous le numéro 339189482, titulaire de la carte de démarchage immobilier pour le compte de la société I@D France SAS.Informations LOI ALUR : Honoraires charge vendeur. (gedeon_6727_32393444)
Voir plus

Référence: 1766261
Honoraires à la charge du vendeur.
Barème des honoraires
DPE
A
B
C
D
E
F
G
GES
A
B
C
D
E
F
G
Photo 1 - Maison à SAINT-MARTIN-DE-RE
Photo 1
Photo 2 - Maison à SAINT-MARTIN-DE-RE
Photo 2
Photo 3 - Maison à SAINT-MARTIN-DE-RE
Photo 3
Photo 4 - Maison à SAINT-MARTIN-DE-RE
Photo 4
Géorisques

Les informations sur les risques auxquels ce bien est exposé sont disponibles sur le site Géorisques : www.georisques.gouv.fr

Ce site est protégé par hCaptcha Politique de confidentialité et Conditions d’utilisation s’appliquent.

En poursuivant votre navigation sans modifier vos paramètres, vous acceptez l'utilisation de cookies susceptibles de réaliser des statistiques de visite. Cliquez ici pour plus d'informations