Bénéficiez des services de nos partenaires locaux soigneusement sélectionnés
pour vous accompagner dans votre parcours d'achat immobilier

Maison de Ville 200m² Oraison Centre

— Oraison 04700 —
310 000 €
200 m² / 91 m²
6 pièces
parkingbalcon/terrasse

Nos partenaires locaux
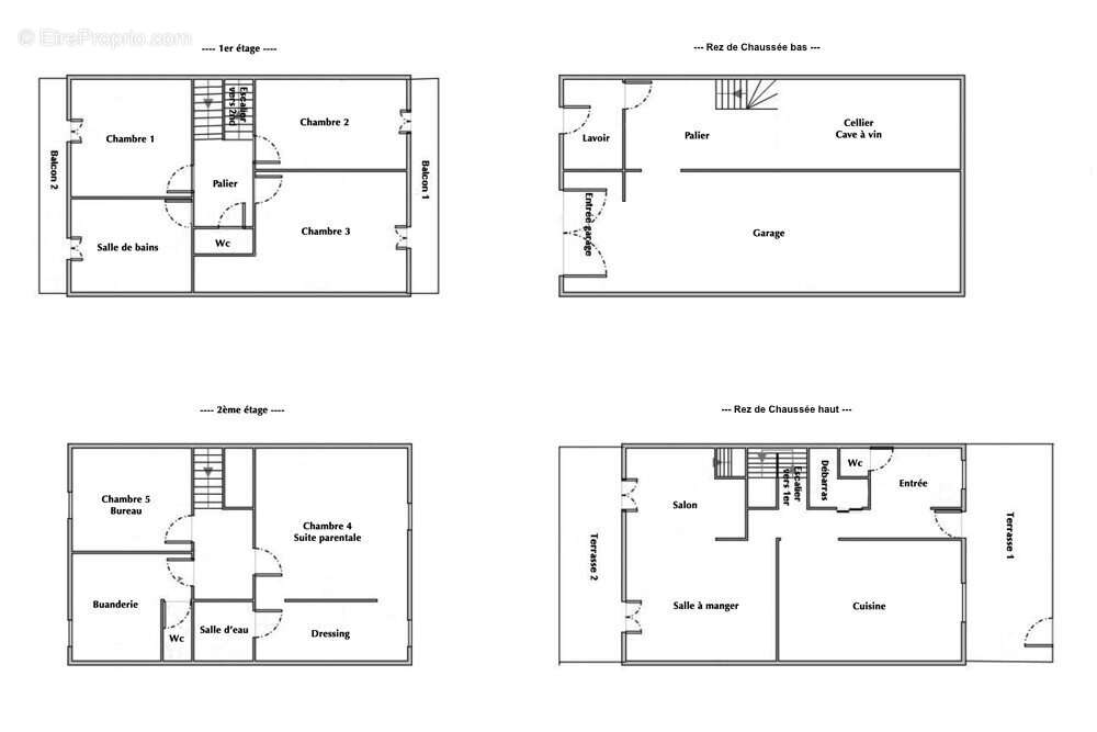
Oraison centre, magnifique maison de village, 6 pièces, de 200 m², avec terrasses et garage. Répartie sur trois niveaux, cette maison de caractère séduit par son charme, ses volumes et son confort moderne, offrant un cadre de vie rare et privilégié. Au rez-de-chaussée (haut), une terrasse exposée plein Sud (25 m²) vous accueille et mène à un chaleureux hall d'entrée. Vous découvrirez une grande cuisine contemporaine (env. 15 m²), sublimée par une verrière de style industriel, et une élégante pièce de vie de 31 m², composée d'un espace salle à manger avec cheminée et d'un salon cosy avec poêle à bois, ouvrant sur une deuxième terrasse (14 m²). Un wc et un débarras complètent ce niveau. Au 1er étage, un palier en carreaux de terre cuite distribue trois grandes chambres parquetées ouvertes sur deux balcons. Vous y trouverez également une superbe salle de bains en marbre avec baignoire et douche à l'italienne, ainsi qu'un wc indépendant. Au 2e étage, un second palier mène à une somptueuse suite parentale de 35 m² avec cheminée, dressing et salle d'eau. Ce niveau propose également un bureau (pouvant faire office de 5e chambre), une buanderie et un troisième wc. En rez-de-chaussée bas, vous profiterez d'un vaste garage, d'un lavoir et d'un cellier/cave à vin, accessibles directement depuis le séjour. Entièrement rénovée en 2021, cette maison conjugue prestations de qualité et confort moderne : grands volumes, poutres apparentes, carreaux de ciment et de terre cuite, parquet chaleureux, poêle à bois, climatisation réversible et chauffage central électrique viennent sublimer son cachet unique. Havre de paix au cœur de la Provence, idéalement située à 45mn d'Aix-en-Provence, au carrefour du Lubéron et des Gorges du Verdon, à proximité de Manosque et de Forcalquier, du plateau de Valensole et de la montagne de Lure, cette maison d'exception et pleine de charme est une invitation à vivre pleinement la douceur de vivre provençale.
Voir plus

Référence: 673
Honoraires à la charge du vendeur.
Barème des honoraires
DPE
A
B
C
D
E
F
G
GES
A
B
C
D
E
F
G
Maison à ORAISON
Maison à ORAISON
Maison à ORAISON
Maison à ORAISON
Maison à ORAISON
Maison à ORAISON
Maison à ORAISON
Maison à ORAISON
Maison à ORAISON
Maison à ORAISON
Maison à ORAISON
Maison à ORAISON
Maison à ORAISON
Maison à ORAISON
Maison à ORAISON
Maison à ORAISON
Maison à ORAISON
Maison à ORAISON
Géorisques

Les informations sur les risques auxquels ce bien est exposé sont disponibles sur le site Géorisques : www.georisques.gouv.fr

Ce site est protégé par hCaptcha Politique de confidentialité et Conditions d’utilisation s’appliquent.

En poursuivant votre navigation sans modifier vos paramètres, vous acceptez l'utilisation de cookies susceptibles de réaliser des statistiques de visite. Cliquez ici pour plus d'informations