Bénéficiez des services de nos partenaires locaux soigneusement sélectionnés
pour vous accompagner dans votre parcours d'achat immobilier

Terrain viabilise libre choix du constructeur

— Avenay 14210 —
71 000 €
404 m²
jardin

Nos partenaires locaux
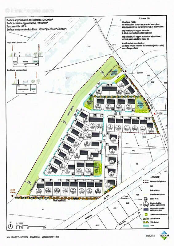
Axe caen Villers-Bocage dans un village avec tous les services LE CABINET FAUDAIS vous propose ce terrain viablisé de 404 m2 formant le lot 42 de ce lotissement de 44 parcelles;
 Le terrain est en accès  direct depuis la sortie Noyers-Bocage de l'A84, à 15 minutes du périphérique caennais pour des trajets domicile-travail simplifiés Commune complète et autonome : tous commerces et services sur place pour un confort de vie au quotidien sans dépendance à l'agglomération Large offre de parcelles avec 44 terrains viabilisés pour un choix optimal selon vos besoins et votre budget Permis de construire déposables immédiatement
Voir plus

Référence: 60491
Honoraires à la charge du vendeur.
Barème des honoraires
Terrain à AVENAY
Terrain à AVENAY
Terrain à AVENAY
Terrain à AVENAY
Terrain à AVENAY
Géorisques

Les informations sur les risques auxquels ce bien est exposé sont disponibles sur le site Géorisques : www.georisques.gouv.fr

Ce site est protégé par hCaptcha Politique de confidentialité et Conditions d’utilisation s’appliquent.