Maison 206 m² à Le Thor

— Le Thor 84250 —
392 500 €
206 m² / 2 250 m²
7 pièces
balcon/terrassejardin

Située en campagne du Thor, cette maison de 206 m² propose des espaces généreux sur un terrain plat de 2250 m², arboré de nombreux fruitiers et bordé par la Sorgue. Parfaite pour une famille ou un investisseur, elle offre la possibilité d'aménager deux logements indépendants, l'un au rez-de-chaussée et l'autre à l'étage.

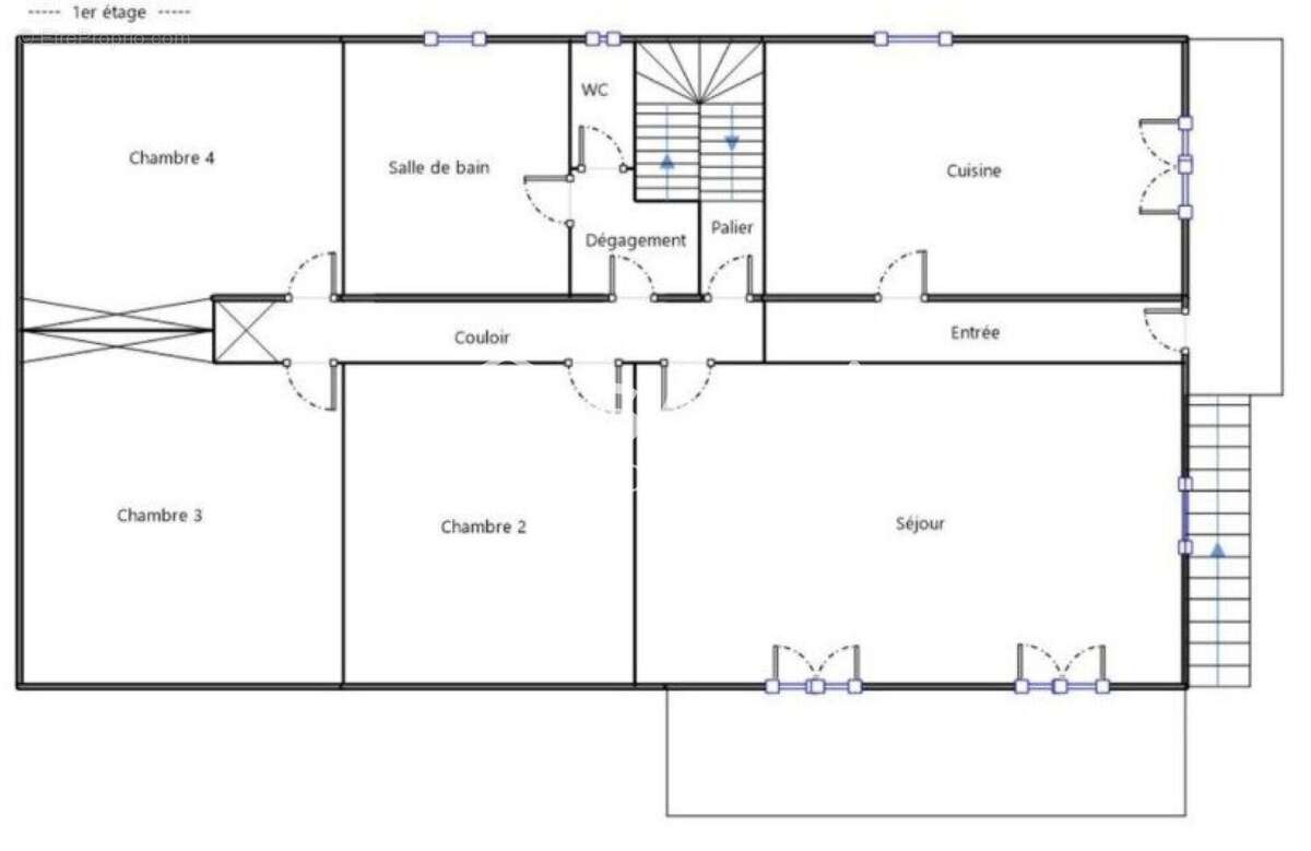
Intérieur
Le rez-de-chaussée comprend un garage de 40 m², un séjour de 40 m² avec cheminée, deux chambres de 11 m², une buanderie et un WC.
À l'étage, un second séjour climatisé de plus de 30 m², une cuisine de 18 m², trois chambres (13 m², 15 m² et 16 m²), une salle de bain de près de 10 m² et deux terrasses complètent cet ensemble baigné de lumière.
La maison, à rafraîchir côté décoration, nécessite également quelques travaux pour améliorer son confort.

Extérieur
Le terrain plat, arboré et en bord de Sorgue, invite à la détente et à l'aménagement selon vos envies. Le jardin, à rafraîchir, représente un atout supplémentaire pour les amateurs d'espace extérieur.
Atouts
– Possibilité de créer deux logements indépendants.
– Terrain plat et arboré, propice aux projets familiaux ou d'extension.
– Cadre paisible et naturel en campagne du Thor.
Visitez cette maison pour découvrir ses volumes généreux et son potentiel.

Les informations sur les risques auxquels ce bien est exposé sont disponibles sur le site Géorisques : www.georisques.gouv.fr
Prix de vente honoraires d'agence inclus : 392 500 ¤
Prix de vente hors honoraires d'agence : 368 950 ¤
Honoraires charge acquéreur : 23 550 ¤ soit 6,38 % TTC de la valeur du bien hors honoraires

Contactez votre conseiller SAFTI : Audrey BOURGUIGNON, Tél. : [Coordonnées masquées], E-mail : [Coordonnées masquées] - EI - Agent commercial immatriculé au RSAC de Avignon sous le numéro 841314339.Informations LOI ALUR : Honoraires : 6.38 % TTC charge acquéreur. Prix hors honoraires : 368 950 ¤. (gedeon_26118_32402486)
Voir plus

Référence: 1560890
Honoraires d'agence de 6.38% à la charge de l'acquéreur
Barème des honoraires
DPE
A
B
C
D
E
F
G
GES
A
B
C
D
E
F
G
Photo 1 - Maison à LE THOR
Photo 1
Photo 2 - Maison à LE THOR
Photo 2
Photo 3 - Maison à LE THOR
Photo 3
Photo 4 - Maison à LE THOR
Photo 4
Photo 5 - Maison à LE THOR
Photo 5
Photo 6 - Maison à LE THOR
Photo 6
Photo 7 - Maison à LE THOR
Photo 7
Photo 8 - Maison à LE THOR
Photo 8
Photo 9 - Maison à LE THOR
Photo 9
Géorisques

Les informations sur les risques auxquels ce bien est exposé sont disponibles sur le site Géorisques : www.georisques.gouv.fr

Ce site est protégé par hCaptcha Politique de confidentialité et Conditions d’utilisation s’appliquent.

En poursuivant votre navigation sans modifier vos paramètres, vous acceptez l'utilisation de cookies susceptibles de réaliser des statistiques de visite. Cliquez ici pour plus d'informations