Bénéficiez des services de nos partenaires locaux soigneusement sélectionnés
pour vous accompagner dans votre parcours d'achat immobilier

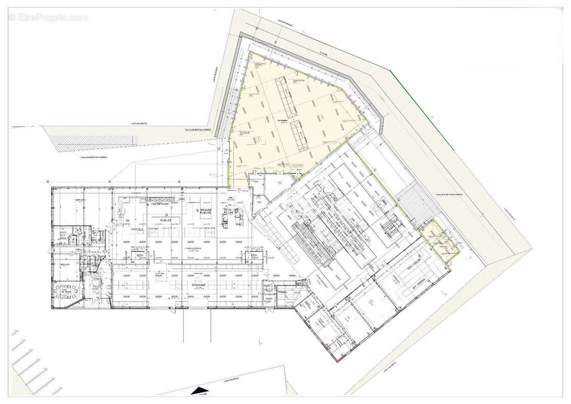
Local Industriel 3000 m2 env. Berd'Huis

— Nogent-Le-Rotrou 28400 —
1 626 000 €
3 000 m² / 7 500 m²
14 pièces
jardin

Nos partenaires locaux
Réf 13698 A Vendre un bâtiment à usage industriel de 3 000 m² environ situé sur la commune de Berd'Huis comprenant : -Au rez-de-chaussée : un hall d'accueil, une salle de réunion, un réfectoire, un vestiaire homme, un vestiaire femme, quatre sanitaires, une circulation pour l'accès du personnel, un atelier. -A l'étage : six bureaux, salle de réunion, un local archive et comptabilité, un local archive, deux sanitaires. Le tout sur un terrain de 7 500 m² environ. Année de construction : 2013.
Voir plus

Référence: 5453
Honoraires à la charge du vendeur.
Barème des honoraires
Commerce à NOGENT-LE-ROTROU
Commerce à NOGENT-LE-ROTROU
Commerce à NOGENT-LE-ROTROU
Commerce à NOGENT-LE-ROTROU
Commerce à NOGENT-LE-ROTROU
Commerce à NOGENT-LE-ROTROU
Commerce à NOGENT-LE-ROTROU
Géorisques

Les informations sur les risques auxquels ce bien est exposé sont disponibles sur le site Géorisques : www.georisques.gouv.fr

Ce site est protégé par hCaptcha Politique de confidentialité et Conditions d’utilisation s’appliquent.

En poursuivant votre navigation sans modifier vos paramètres, vous acceptez l'utilisation de cookies susceptibles de réaliser des statistiques de visite. Cliquez ici pour plus d'informations