Bénéficiez des services de nos partenaires locaux soigneusement sélectionnés
pour vous accompagner dans votre parcours d'achat immobilier

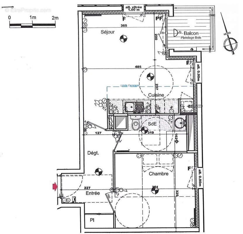
Appartement 42 m² à Saint-Ave

— Saint-Ave 56890 —
167 000 €
42 m²
2 pièces
balcon/terrasseascenseuraccès handicapé

Nos partenaires locaux
En plein coeur du bourg de Saint-Avé, découvrez ce charmant T2 de 42.41 m² situé au 2e étage d'une résidence récente avec ascenseur.
L'appartement offre un séjour avec cuisine ouverte, une belle chambre de 11.35 m², une salle d'eau avec douche à l'italienne, ainsi qu'un agréable balcon de 3.15 m² donnant sur un environnement verdoyant.
Son vrai point fort : une situation privilégiée, avec les commerces et services accessibles à pied, tout en restant proche de Vannes, de la gare et de l'hôpital.
Fonctionnel, lumineux et facile à vivre, ce bien conviendra aussi bien pour un premier achat, un investissement locatif que pour une personne recherchant confort et accessibilité au quotidien.
Résidence récente, ascenseur, emplacement recherché, balcon, vue dégagée : un bien particulièrement intéressant sur le secteur.

Honoraires à la charge du vendeur. Dans une copropriété de 44 lots. Quote-part moyenne du budget prévisionnel 740 €/an. Aucune procédure n'est en cours. Classe énergie C, Classe climat C. Les informations sur les risques auxquels ce bien est exposé sont disponibles sur le site Géorisques : georisques.gouv.fr.

Votre conseiller eXp Realty : Rémy LAGADEC
Agent commercial (Entreprise individuelle)
RSAC 511 856 221 BOURG-EN-BRESSE
Voir plus

Référence: VA10298-EXPFRANCE
Bien en copropriété. Nombre de lots : 44. Charges de copropriété : 740 €.
Honoraires à la charge du vendeur.
Barème des honoraires
DPE
A
B
C
D
E
F
G
GES
A
B
C
D
E
F
G
Appartement à SAINT-AVE
Appartement à SAINT-AVE
Appartement à SAINT-AVE
Appartement à SAINT-AVE
Appartement à SAINT-AVE
Appartement à SAINT-AVE
Appartement à SAINT-AVE
Géorisques

Les informations sur les risques auxquels ce bien est exposé sont disponibles sur le site Géorisques : www.georisques.gouv.fr

Ce site est protégé par hCaptcha Politique de confidentialité et Conditions d’utilisation s’appliquent.

En poursuivant votre navigation sans modifier vos paramètres, vous acceptez l'utilisation de cookies susceptibles de réaliser des statistiques de visite. Cliquez ici pour plus d'informations