Bénéficiez des services de nos partenaires locaux soigneusement sélectionnés
pour vous accompagner dans votre parcours d'achat immobilier

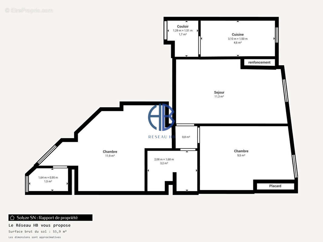
Appartement 3 pièces 45,43 m² i rue crèvecoeur 93300 aubervilliers

— Aubervilliers 93300 —
173 600 €
45 m²
3 pièces

Nos partenaires locaux
T3 - 45,43 m² - Rez-de-chaussée - Deux chambres- Lumineux Cave - Aubervilliers Le Réseau HB vous propose en exclusivité, au rez-de-chaussée d'un immeuble ancien datant de 1949, cet appartement de type 3 pièces développant environ 45,43 m², idéalement situé rue de Crèvecoeur à Aubervilliers. Il s'agit d'un bien sain, fonctionnel et lumineux, offrant une base solide et équilibrée, adaptée aussi bien à une résidence principale qu'à un projet d'investissement locatif, au sein d'un secteur urbain dynamique et en pleine évolution. L'appartement: Dès l'entrée, l'appartement révèle une distribution rationnelle et bien pensée, sans perte d'espace, permettant une circulation fluide entre les différentes pièces et une lecture immédiate des volumes. La pièce de vie, agréable et lumineuse, bénéficie d'un volume confortable permettant d'aménager distinctement un espace salon et un espace salle à manger. Son ouverture sur la cuisine apporte une sensation de convivialité tout en conservant une séparation fonctionnelle. La cuisine, actuellement nue, bénéficie d'un éclairage naturel et d'un volume permettant une reconfiguration complète selon les envies et le mode de vie des futurs acquéreurs. Cet espace a été volontairement laissé libre afin de permettre à chacun d'y apporter sa touche personnelle, que ce soit dans un esprit contemporain, fonctionnel ou plus chaleureux, et de créer une cuisine parfaitement adaptée à ses usages du quotidien. L'espace nuit se compose de deux chambres distinctes, chacune offrant des volumes confortables et exploitables. Cette configuration conviendra parfaitement : - à un couple avec enfant, - à une famille, - ou à un usage mixte avec chambre et bureau. La salle d'eau, fonctionnelle, est équipée d'un bac à douche. Les WC sont séparés par un muret, apportant un confort d'usage appréciable au quotidien tout en conservant une cohérence de l'espace. Les sols en parquet, présents dans les pièces de vie et les chambres, renforcent la luminosité naturelle et la sensation de chaleur. Les pièces d'eau sont carrelées, assurant praticité et facilité d'entretien. Annexe et copropriété : Le bien est vendu avec une cave, offrant un espace de stockage complémentaire toujours apprécié en appartement. L'appartement se situe dans une copropriété de 22 lots, composée de 11 lots d'habitation et 11 lots de caves. L'immeuble s'élève sur 4 étages sans ascenseur. Les parties communes sont entretenues et conformes à l'époque de construction, et la copropriété offre un cadre de vie calme et résidentiel. Informations complémentaires : -Les charges de copropriété s'élèvent à 176,40 euros par mois. -La copropriété est gérée par un syndic. -La taxe foncière est de 987 euros par an. -Le bien est vendu avec une cave. Équipements : -Chauffage au gaz par radiateurs -Eau chaude produite par chaudière -Fenêtres en double vitrage -Volets métalliques DPE réalisé le 23/12/2025 , classe énergétique E Localisation et environnement : Situé rue de Crèvecoeur, l'appartement bénéficie d'un emplacement pratique et recherché, au coeur d'un secteur urbain vivant d'Aubervilliers. Les commerces de proximité (boulangeries, supérettes, pharmacies, services du quotidien) sont accessibles en quelques minutes à pied, facilitant une vie de quartier agréable et fonctionnelle. Le secteur dispose de plusieurs écoles maternelles et élémentaires à moins de 10 minutes à pied, ainsi que de collèges facilement accessibles, faisant de ce bien une option pertinente pour une vie familiale. Côté transports, le quartier est bien desservi grâce aux lignes de bus à proximité immédiate et à un accès rapide aux stations de métro et RER environnantes, permettant de rejoindre Paris et les principaux pôles économiques en un temps maîtrisé. Aubervilliers s'inscrit pleinement dans la dynamique du Grand Paris, offrant des perspectives d'évolution intéressantes tant en matière d'urbanisme que de valorisation patrimoniale. Réunissant emplacement stratégique, distribution fonctionnelle et potentiel d'aménagement, ce bien constitue une opportunité cohérente et durable sur le secteur. Cet appartement est idéal pour un premier achat ou pour un investissement locatif à fort potentiel. Ce bien vous intéresse ? Explorez-le en 3D sur le site du RÉSEAU HB et contactez-nous dès aujourd'hui pour organiser une visite et découvrir tout le potentiel de ce bien. RÉSEAU HB, votre agence humaine et réactive. Honoraires à la charge du vendeur. Risques disponibles sur : www.georisques.gouv.fr Copropriété de 11 lots - dont 11 lots habitation. (Procédure en cours). Charges annuelles : 79.41 euros. Vincent CAMILLERI (EI) Agent Commercial - Numéro RSAC : 910 332 899 - PARIS.
Voir plus

Référence: 3200
Bien en copropriété. Nombre de lots : 11. Charges de copropriété : 79 €. Procédure en cours : Procédure en cours.
Honoraires à la charge du vendeur.
Barème des honoraires
DPE
A
B
C
D
E
F
G
GES
A
B
C
D
E
F
G
Appartement à AUBERVILLIERS
Appartement à AUBERVILLIERS
Appartement à AUBERVILLIERS
Appartement à AUBERVILLIERS
Appartement à AUBERVILLIERS
Appartement à AUBERVILLIERS
Appartement à AUBERVILLIERS
Appartement à AUBERVILLIERS
Appartement à AUBERVILLIERS
Appartement à AUBERVILLIERS
Appartement à AUBERVILLIERS
Appartement à AUBERVILLIERS
Appartement à AUBERVILLIERS
Appartement à AUBERVILLIERS
Géorisques

Les informations sur les risques auxquels ce bien est exposé sont disponibles sur le site Géorisques : www.georisques.gouv.fr

Ce site est protégé par hCaptcha Politique de confidentialité et Conditions d’utilisation s’appliquent.

En poursuivant votre navigation sans modifier vos paramètres, vous acceptez l'utilisation de cookies susceptibles de réaliser des statistiques de visite. Cliquez ici pour plus d'informations