Bénéficiez des services de nos partenaires locaux soigneusement sélectionnés
pour vous accompagner dans votre parcours d'achat immobilier

Appartement 86 m² à Carrieres-Sous-Poissy

— Carrieres-Sous-Poissy 78955 —
249 000 €
86 m²
4 pièces

Nos partenaires locaux
Iad France - Nadège Demoersman vous propose : Opportunité Investisseur - Appartement T3 avec studio indépendant à Carrières-sous-Poissy

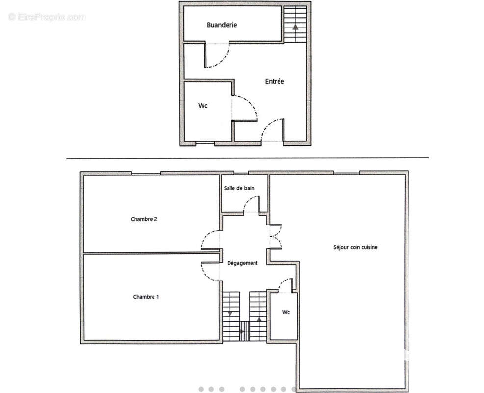
Situé dans la charmante ville de Carrières-sous-Poissy, cet appartement vendu loué offre un potentiel incroyable pour un investisseur. D'une surface de 66 m², ce bien se compose d'une entrée en RDC avec toilettes et buanderie et à l'étage un palier donnant sur un salon salle à manger d'une cuisine ouverte, une salle de bains et de 2 chambres. Les combles (30 m² au sol) peuvent être exploitables. Un studio indépendant complète ce bien qui peut être loué séparément. Chaque appartement a une place de parking extérieur. Loyer à 1500 euros / mois pour l'ensemble des biens.

Ce bien, situé dans une résidence sécurisée, présente les avantages d'une petite copropriété. De plus, la proximité des commodités locales, des écoles et des transports en commun à 10 minutes en bus de la gare de Poissy et ligne 1 pour St Germain en Laye (RER A).

Contactez-nous pour organiser une visite. Ne tardez pas.

La presente annonce immobiliere vise 2 lots situés dans une copropriété de 12 lots au total et ne faisant l'objet d'aucune procédure en cours citée à l'article L. 721-1 du code de la construction et de l'habitation. Montant moyen mensuel de charges déclaré par le vendeur : 25¤ par mois (soit 300 ¤ annuel). Honoraires d'agence à la charge du vendeur.
Information d'affichage énergétique sur ce bien : classe ENERGIE D indice 244 et classe CLIMAT B indice 7. Les informations sur les risques auxquels ce bien est exposé, y compris l'obligation légale de débroussaillement, sont disponibles sur le site Géorisques : http://www.georisques.gouv.fr.
La présente annonce immobilière a été rédigée sous la responsabilité éditoriale de Mme Nadège Demoersman mandataire indépendant en immobilier (sans détention de fonds), agent commercial de la SAS I@D France immatriculé au RSAC de Pontoise sous le numéro 889176590, titulaire de la carte de démarchage immobilier pour le compte de la société I@D France SAS.Informations LOI ALUR : Soumis au régime de copropriété. Nombre de lots : 12. Quote part annuelle(moyenne) : 300 euros. Honoraires charge vendeur. (gedeon_6727_32006559)
Voir plus

Référence: 1864298
Bien en copropriété. Nombre de lots : 12. Charges de copropriété : 300 €.
Honoraires à la charge du vendeur.
Barème des honoraires
DPE
A
B
C
D
E
F
G
GES
A
B
C
D
E
F
G
Photo 1 - Appartement à CARRIERES-SOUS-POISSY
Photo 1
Photo 2 - Appartement à CARRIERES-SOUS-POISSY
Photo 2
Photo 3 - Appartement à CARRIERES-SOUS-POISSY
Photo 3
Photo 4 - Appartement à CARRIERES-SOUS-POISSY
Photo 4
Photo 5 - Appartement à CARRIERES-SOUS-POISSY
Photo 5
Photo 6 - Appartement à CARRIERES-SOUS-POISSY
Photo 6
Géorisques

Les informations sur les risques auxquels ce bien est exposé sont disponibles sur le site Géorisques : www.georisques.gouv.fr

Ce site est protégé par hCaptcha Politique de confidentialité et Conditions d’utilisation s’appliquent.

En poursuivant votre navigation sans modifier vos paramètres, vous acceptez l'utilisation de cookies susceptibles de réaliser des statistiques de visite. Cliquez ici pour plus d'informations